プレサンスグラン福島

外観画像

大阪府大阪市福島区鷺洲2丁目5-30

  • 福島駅 徒歩7分
  • 新福島駅 徒歩8分
AI

この物件についてAIに相談できます

AIホームズくんに、物件の見方や住まい探しの条件を相談できます。

この物件をもとにAIに相談する無料

このページの情報は広告情報ではありません。過去から現在までにLIFULL HOME'Sに掲載された不動産情報と提携先の地図情報を元に生成した参考情報です。情報更新日: 2026/4/16

部屋情報(1件)

代表参考価格
6,982万円〜8,930万円(70.16m²)
代表参考賃料
22.9万円〜24.5万円(70.16m²)
参考価格
参考賃料
専有面積
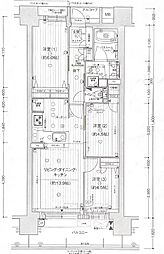
間取り
主要採光面
13階
参考価格6,982万円〜8,930万円
参考賃料22.9万円〜24.5万円
専有面積70.16m²
間取り2SLDK
主要採光面
すべて表示 (1件)表示を省略

※この価格はあくまでも参考情報であり、取引価格として適正であることを保証するものではありません。
また、販売情報とは異なります。詳しくは参考価格算出ロジックをご確認ください。

売買掲載履歴 (4件)

掲載履歴とは、過去LIFULL HOME'Sに掲載された時点の情報を履歴として一覧にまとめたものです。
※最終的な成約価格とは異なる場合があります。また、将来の売出し価格を保証するものではありません。

年月価格専有面積
間取り
所在階
2026年4月7,980万円70.16m²
2SLDK
13階
2026年3月7,980万円70.16m²
2SLDK
13階
2026年2月7,980万円70.16m²
2SLDK
13階
2026年1月7,980万円70.16m²
2SLDK
13階

大阪市福島区の中古マンション価格の推移

一般的なファミリー向けの中古マンション価格(※)の3ヶ月ごとの推移です。

価格(万円)

大阪市福島区の価格推移

大阪府の価格推移

※以下の条件でAI査定した参考価格
  • 築10年/専有面積70m²

直近3年間の推移

大阪市福島区の標準的な物件の価格は直近の3年間で32.52%程度上昇しています。

これは大阪市福島区のある大阪府の変動の13.7%に比べて高めの水準です。

この3年間の価格上昇率を内訳でみると、初年度が4.63%、2年目が11.15%、3年目が16.74%となっています。

大阪市福島区の賃貸マンションの賃料推移

一般的なファミリー向けの賃貸マンションの賃料(※)の3ヶ月ごとの推移です。

賃料(万円)

大阪市福島区の賃料推移

大阪府の賃料推移

※以下の条件でAI査定した参考価格
  • 築10年/専有面積70m²

直近3年間の推移

大阪市福島区の標準的な物件の賃料は直近の3年間で13.96%程度上昇しています。

これは大阪市福島区のある大阪府の変動の11.05%に比べてやや高めの水準です。

この3年間の価格上昇率を内訳でみると、初年度が4.12%、2年目が2.53%、3年目が7.31%となっています。

固定資産税シミュレータ

この周辺地域のマンションにかかる固定資産税の概算をシミュレーションすることができます。

下記項目を入力して年間の固定資産税額を確かめましょう。

物件スペックについて
敷地全体の面積
広さを直接入力する場合:m²程度
敷地に対する建物割合
%程度
専有面積
建物階数
階建て
地下
築年数
構造
建材費
減免・優遇措置

大阪市福島区の新着募集あり物件

LIFULL HOME’Sで7日以内に掲載が開始された物件です。

プレサンスグラン福島 建物概要

物件種別
マンション
築年月(築年数)
2023年3月 (築4年)
建物構造
RC
建物階建
地上17階
総戸数
112戸
用途地域
第二種住居

よくある質問

  1. おうち予算シミュレーションでは年収や年齢、家族構成などを入力するだけで無理なく購入できる住まいの予算が算出できます。プレサンスグラン福島への住み替え前にチェックすることをおすすめします。
  2. プレサンスグラン福島のある大阪市福島区で暮らす世帯の年収は階級別にみると年収300万円未満の世帯が一番多く12901世帯34.4%)となりました。詳しくは大阪市福島区の家計情報をご覧ください。
  3. プレサンスグラン福島のある大阪市福島区の総人口は7万2484人で、前回の調査から7.7%程度増加しています。大阪市福島区のある大阪府全体の人口増加率-0.3%8.0ポイント上回っています。詳しくは大阪市福島区の住まいと暮らしやすさをご覧ください。
  4. プレサンスグラン福島周辺で価格相場が近い物件は地図で地域の相場を知るをご覧ください。

不動産会社に査定を依頼する

所有している物件の売却をお考えの方は、ホームズマンション売却不動産売却査定サービスから複数の会社に一括で売却査定を依頼することができます。

不動産の所在地
現況

掲載情報に誤りや問題がある場合

LIFULL HOME'Sは「不動産会社」ではなく「情報掲載サイト」です

  • ※管理会社の情報はLIFULL HOME'Sでは保持していないためお答えできません。お問合せはお控えください
  • ※最新の募集状況は掲載中の不動産会社があれば、不動産会社へ直接お問合せください

電話での訂正依頼 専用ダイヤル

0120-987-243

受付時間:10:00〜18:00※土日・祝日、臨時休業日は除く