募集中
売買1

新宿7丁目ハイライズ

外観画像

東京都新宿区新宿7丁目26-19

  • 新宿三丁目駅 徒歩11分
  • 東新宿駅 徒歩2分
AI

この物件についてAIに相談できます

AIホームズくんに、物件の見方や住まい探しの条件を相談できます。

この物件をもとにAIに相談する無料

このページの情報は広告情報ではありません。過去から現在までにLIFULL HOME'Sに掲載された不動産情報と提携先の地図情報を元に生成した参考情報です。情報更新日: 2026/5/15

募集中の部屋 (売買1件)

売買1

11,980万円

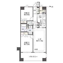
間取り
2LDK
占有面積
62.24m²
所在階
4階
主要採光面
西向き

詳細を見る

売買掲載履歴 (2件)

掲載履歴とは、過去LIFULL HOME'Sに掲載された時点の情報を履歴として一覧にまとめたものです。
※最終的な成約価格とは異なる場合があります。また、将来の売出し価格を保証するものではありません。

年月価格専有面積
間取り
所在階
2026年4月11,980万円62.24m²
2LDK
4階
2026年3月11,980万円62.24m²
2LDK
4階

賃貸掲載履歴 (30件)

掲載履歴とは、過去LIFULL HOME'Sに掲載された時点の情報を履歴として一覧にまとめたものです。
※最終的な成約賃料とは異なる場合があります。また、将来の募集賃料を保証するものではありません。

年月賃料専有面積
間取り
所在階
2024年4月26.0万円71.0m²
3LDK
2階
2024年3月26.0万円71.0m²
3LDK
2階
2022年12月26.0万円71.0m²
3LDK
3階
2022年11月26.0万円71.0m²
3LDK
3階
2021年10月19.5万円62.24m²
2LDK
4階
2021年9月19.5万円62.24m²
2LDK
4階
2021年8月18.5万円62.78m²
2LDK
3階
2021年8月19.5万円62.24m²
2LDK
4階
2021年7月19.5万円62.24m²
2LDK
4階
2020年7月18.5万円62.78m²
2LDK
3階
2020年6月18.5万円62.78m²
2LDK
3階
2020年5月18.5万円62.78m²
2LDK
3階
2020年4月18.5万円62.78m²
2LDK
3階
2020年3月18.5万円62.78m²
2LDK
3階
2018年12月18.5万円62.78m²
2LDK
3階
2018年1月18.5万円62.78m²
2LDK
3階
2017年12月18.5万円62.78m²
2LDK
3階
2017年9月21.5万円71.45m²
3LDK
1階
2017年8月21.5万円71.45m²
3LDK
1階
2017年7月21.5万円71.45m²
3LDK
1階
2014年8月21.5万円71.45m²
3LDK
1階
2014年7月23.5万円71.45m²
3LDK
1階
2014年6月23.5万円71.45m²
3LDK
1階
2014年5月23.5万円71.45m²
3LDK
1階
2014年5月23.0万円74.0m²
3LDK
3階
2014年4月23.0万円74.0m²
3LDK
3階
2010年4月20.0万円71.45m²
3LDK
1階
2010年3月20.0万円71.45m²
3LDK
1階
2010年3月20.0万円71.45m²
3LDK
1階
2010年2月20.0万円71.45m²
3LDK
1階
全て表示 (30件)表示を省略

新宿区の中古マンション価格の推移

一般的なファミリー向けの中古マンション価格(※)の3ヶ月ごとの推移です。

価格(万円)

新宿区の価格推移

東京都の価格推移

※以下の条件でAI査定した参考価格
  • 築10年/専有面積70m²

直近3年間の推移

新宿区の標準的な物件の価格は直近の3年間で17.01%程度上昇しています。

これは新宿区のある東京都の変動の18.59%に比べて同程度の水準です。

この3年間の価格上昇率を内訳でみると、初年度が2.40%、2年目が7.14%、3年目が7.48%となっています。

新宿区の賃貸マンションの賃料推移

一般的なファミリー向けの賃貸マンションの賃料(※)の3ヶ月ごとの推移です。

賃料(万円)

新宿区の賃料推移

東京都の賃料推移

※以下の条件でAI査定した参考価格
  • 築10年/専有面積70m²

直近3年間の推移

新宿区の標準的な物件の賃料は直近の3年間で16.29%程度上昇しています。

これは新宿区のある東京都の変動の15.2%に比べて同程度の水準です。

この3年間の価格上昇率を内訳でみると、初年度が3.97%、2年目が4.89%、3年目が7.43%となっています。

固定資産税シミュレータ

この周辺地域のマンションにかかる固定資産税の概算をシミュレーションすることができます。

下記項目を入力して年間の固定資産税額を確かめましょう。

物件スペックについて
敷地全体の面積
広さを直接入力する場合:m²程度
敷地に対する建物割合
%程度
専有面積
建物階数
階建て
地下
築年数
構造
建材費
減免・優遇措置

新宿区の新着募集あり物件

LIFULL HOME’Sで7日以内に掲載が開始された物件です。

新宿7丁目ハイライズ 建物概要

物件種別
マンション
築年月(築年数)
1999年8月 (築27年)
建物構造
RC
建物階建
地上7階
総戸数
36戸
用途地域
第一種住居
都市計画
市街化区域
地目
宅地
施工会社
熊谷組

よくある質問

  1. おうち予算シミュレーションでは年収や年齢、家族構成などを入力するだけで無理なく購入できる住まいの予算が算出できます。新宿7丁目ハイライズへの住み替え前にチェックすることをおすすめします。
  2. 新宿7丁目ハイライズのある新宿区で暮らす世帯の年収は階級別にみると年収300万円未満の世帯が一番多く78751世帯38.5%)となりました。詳しくは新宿区の家計情報をご覧ください。
  3. 新宿7丁目ハイライズのある新宿区の総人口は33万3560人で、前回の調査から2.2%程度増加しています。新宿区のある東京都全体の人口増加率2.7%0.5ポイント下回っています。詳しくは新宿区の住まいと暮らしやすさをご覧ください。
  4. 新宿7丁目ハイライズ周辺で価格相場が近い物件は地図で地域の相場を知るをご覧ください。

不動産会社に査定を依頼する

所有している物件の売却をお考えの方は、ホームズマンション売却不動産売却査定サービスから複数の会社に一括で売却査定を依頼することができます。

不動産の所在地
現況

掲載情報に誤りや問題がある場合

LIFULL HOME'Sは「不動産会社」ではなく「情報掲載サイト」です

  • ※管理会社の情報はLIFULL HOME'Sでは保持していないためお答えできません。お問合せはお控えください
  • ※最新の募集状況は掲載中の不動産会社があれば、不動産会社へ直接お問合せください

電話での訂正依頼 専用ダイヤル

0120-987-243

受付時間:10:00〜18:00※土日・祝日、臨時休業日は除く