募集中
賃貸1

Reve Court

外観画像

大阪府大阪市東淀川区柴島2丁目7-11

  • 崇禅寺駅 徒歩9分
  • 柴島駅 徒歩4分
AI

この物件についてAIに相談できます

AIホームズくんに、物件の見方や住まい探しの条件を相談できます。

この物件をもとにAIに相談する無料

このページの情報は広告情報ではありません。過去から現在までにLIFULL HOME'Sに掲載された不動産情報と提携先の地図情報を元に生成した参考情報です。情報更新日: 2026/4/29

募集中の部屋 (賃貸1件)

賃貸1

5.8万円

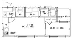
間取り
1K
占有面積
20.38m²
所在階
1階
主要採光面
北向き

詳細を見る

大阪市東淀川区の中古マンション価格の推移

一般的なファミリー向けの中古マンション価格(※)の3ヶ月ごとの推移です。

価格(万円)

大阪市東淀川区の価格推移

大阪府の価格推移

※以下の条件でAI査定した参考価格
  • 築10年/専有面積70m²

直近3年間の推移

大阪市東淀川区の標準的な物件の価格は直近の3年間で8.45%程度上昇しています。

これは大阪市東淀川区のある大阪府の変動の13.7%に比べてやや低めの水準です。

この3年間の価格上昇率を内訳でみると、初年度が1.34%、2年目が0.35%、3年目が6.76%となっています。

大阪市東淀川区の賃貸マンションの賃料推移

一般的なファミリー向けの賃貸マンションの賃料(※)の3ヶ月ごとの推移です。

賃料(万円)

大阪市東淀川区の賃料推移

大阪府の賃料推移

※以下の条件でAI査定した参考価格
  • 築10年/専有面積70m²

直近3年間の推移

大阪市東淀川区の標準的な物件の賃料は直近の3年間で7.40%程度上昇しています。

これは大阪市東淀川区のある大阪府の変動の10.24%に比べてやや低めの水準です。

この3年間の価格上昇率を内訳でみると、初年度が0.87%、2年目が2.14%、3年目が4.41%となっています。

固定資産税シミュレータ

この周辺地域のマンションにかかる固定資産税の概算をシミュレーションすることができます。

下記項目を入力して年間の固定資産税額を確かめましょう。

物件スペックについて
敷地全体の面積
広さを直接入力する場合:m²程度
敷地に対する建物割合
%程度
専有面積
建物階数
階建て
地下
築年数
構造
建材費
減免・優遇措置

大阪市東淀川区の新着募集あり物件

LIFULL HOME’Sで7日以内に掲載が開始された物件です。

Reve Court 建物概要

築年月(築年数)
2025年12月 (築1年)
建物構造
木造
建物階建
地上3階

よくある質問

  1. おうち予算シミュレーションでは年収や年齢、家族構成などを入力するだけで無理なく購入できる住まいの予算が算出できます。Reve Courtへの住み替え前にチェックすることをおすすめします。
  2. Reve Courtのある大阪市東淀川区で暮らす世帯の年収は階級別にみると年収300万円未満の世帯が一番多く49714世帯53.8%)となりました。詳しくは大阪市東淀川区の家計情報をご覧ください。
  3. Reve Courtのある大阪市東淀川区の総人口は17万5530人で、前回の調査から0.6%程度減少しています。大阪市東淀川区のある大阪府全体の人口増加率-0.3%0.3ポイント下回っています。詳しくは大阪市東淀川区の住まいと暮らしやすさをご覧ください。

不動産会社に査定を依頼する

所有している物件の売却をお考えの方は、ホームズマンション売却不動産売却査定サービスから複数の会社に一括で売却査定を依頼することができます。

不動産の所在地
現況

掲載情報に誤りや問題がある場合

LIFULL HOME'Sは「不動産会社」ではなく「情報掲載サイト」です

  • ※管理会社の情報はLIFULL HOME'Sでは保持していないためお答えできません。お問合せはお控えください
  • ※最新の募集状況は掲載中の不動産会社があれば、不動産会社へ直接お問合せください

電話での訂正依頼 専用ダイヤル

0120-987-243

受付時間:10:00〜18:00※土日・祝日、臨時休業日は除く