直近3年間の推移
新宿区の標準的な物件の価格は直近の3年間で16.35%程度上昇しています。
これは新宿区のある東京都の変動の16.72%に比べて同程度の水準です。
この3年間の価格上昇率を内訳でみると、初年度が2.02%、2年目が5.29%、3年目が9.05%となっています。

東京都新宿区市谷甲良町2-24
このページの情報は広告情報ではありません。過去から現在までにLIFULL HOME'Sに掲載された不動産情報と提携先の地図情報を元に生成した参考情報です。情報更新日: 2026/4/15
掲載履歴とは、過去LIFULL HOME'Sに掲載された時点の情報を履歴として一覧にまとめたものです。
※最終的な成約価格とは異なる場合があります。また、将来の売出し価格を保証するものではありません。
| 年月 | 価格 | 専有面積 間取り | 所在階 |
|---|---|---|---|
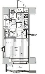
| 2020年7月 | 3,400万円 | 25.2m² 1K | 3階 |
| 2020年6月 | 3,400万円 | 25.2m² 1K | 3階 |
| 2020年5月 | 3,400万円 | 25.2m² 1K | 3階 |
| 2020年4月 | 3,400万円 | 25.2m² 1K | 3階 |
掲載履歴とは、過去LIFULL HOME'Sに掲載された時点の情報を履歴として一覧にまとめたものです。
※最終的な成約賃料とは異なる場合があります。また、将来の募集賃料を保証するものではありません。
| 年月 | 賃料 | 専有面積 間取り | 所在階 |
|---|---|---|---|
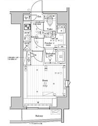
| 2026年3月 | 13.9万円 | 25.2m² 1K | 6階 |
| 2026年3月 | 14.4万円 | 25.2m² 1K | 11階 |
| 2026年2月 | 14.0万円 | 25.2m² 1K | 11階 |
| 2026年1月 | 14.0万円 | 25.2m² 1K | 9階 |
| 2026年1月 | 14.0万円 | 25.2m² 1K | 11階 |
| 2025年12月 | 14.0万円 | 25.2m² 1K | 9階 |
| 2025年11月 | 14.0万円 | 25.2m² 1K | 9階 |
| 2025年10月 | 13.8万円 | 25.2m² 1K | 8階 |
| 2025年9月 | 13.8万円 | 25.2m² 1K | 8階 |
| 2025年8月 | 11.5万円 | 25.2m² 1K | 1階 |
| 2025年8月 | 12.5万円 | 25.2m² 1K | 5階 |
| 2025年7月 | 11.5万円 | 25.56m² 1K | 1階 |
| 2025年7月 | 12.2万円 | 25.2m² 1K | 1階 |
| 2025年7月 | 12.3万円 | 25.2m² 1K | 4階 |
| 2025年7月 | 12.5万円 | 25.2m² 1K | 5階 |
| 2025年7月 | 13.5万円 | 25.2m² 1K | 11階 |
| 2025年7月 | 19.0万円 | 40.99m² 1LDK | 12階 |
| 2025年6月 | 12.2万円 | 25.56m² 1K | 1階 |
| 2025年6月 | 12.2万円 | 25.2m² 1K | 1階 |
| 2025年6月 | 12.3万円 | 25.2m² 1K | 4階 |
| 2025年6月 | 13.2万円 | 25.2m² 1K | 4階 |
| 2025年6月 | 13.5万円 | 25.2m² 1K | 11階 |
| 2025年6月 | 19.9万円 | 40.99m² 1LDK | 12階 |
| 2025年5月 | 12.9万円 | 25.56m² 1K | 1階 |
| 2025年5月 | 12.9万円 | 25.2m² 1K | 1階 |
| 2025年5月 | 13.4万円 | 25.2m² 1K | 4階 |
| 2025年5月 | 13.4万円 | 25.2m² 1K | 4階 |
| 2025年5月 | 13.6万円 | 25.2m² 1K | 8階 |
| 2025年5月 | 13.9万円 | 25.2m² 1K | 14階 |
| 2025年4月 | 13.6万円 | 25.2m² 1K | 8階 |
| 2025年4月 | 13.9万円 | 25.2m² 1K | 14階 |
| 2025年3月 | 13.5万円 | 25.2m² 1K | 5階 |
| 2025年3月 | 12.2万円 | 25.2m² 1K | 5階 |
| 2025年3月 | 13.5万円 | 25.2m² 1K | 6階 |
| 2025年3月 | 13.6万円 | 25.2m² 1K | 8階 |
| 2025年3月 | 13.9万円 | 25.2m² 1K | 14階 |
| 2025年2月 | 12.0万円 | 25.2m² 1K | 3階 |
| 2025年2月 | 13.5万円 | 25.2m² 1K | 5階 |
| 2025年2月 | 12.2万円 | 25.2m² 1K | 5階 |
| 2025年2月 | 13.5万円 | 25.2m² 1K | 6階 |
| 2025年1月 | 12.0万円 | 25.2m² 1K | 3階 |
| 2024年11月 | 12.1万円 | 25.2m² 1K | 6階 |
| 2024年11月 | 13.4万円 | 25.2m² 1K | 11階 |
| 2024年10月 | 12.1万円 | 25.2m² 1K | 6階 |
| 2024年9月 | 12.4万円 | 25.2m² 1K | 9階 |
| 2024年8月 | 12.4万円 | 25.0m² 1K | 9階 |
| 2024年6月 | 13.0万円 | 25.0m² 1K | 4階 |
| 2024年6月 | 12.1万円 | 25.0m² 1K | 10階 |
| 2024年5月 | 13.0万円 | 25.0m² 1K | 4階 |
| 2024年5月 | 12.5万円 | 25.0m² 1K | 5階 |
| 2024年5月 | 12.1万円 | 25.0m² 1K | 10階 |
| 2024年4月 | 13.2万円 | 25.0m² 1K | 4階 |
| 2024年4月 | 12.5万円 | 25.0m² 1K | 5階 |
| 2024年4月 | 12.6万円 | 25.0m² 1K | 10階 |
| 2024年3月 | 12.5万円 | 25.0m² 1K | 5階 |
| 2024年3月 | 12.6万円 | 25.0m² 1K | 10階 |
| 2024年3月 | 12.2万円 | 25.0m² 1K | 11階 |
| 2024年3月 | 12.2万円 | 25.0m² 1K | 11階 |
| 2024年3月 | 12.5万円 | 25.0m² 1K | 13階 |
| 2024年2月 | 12.2万円 | 25.0m² 1K | 11階 |
| 2024年2月 | 12.2万円 | 25.0m² 1K | 11階 |
| 2024年2月 | 12.6万円 | 25.0m² 1K | 13階 |
| 2024年1月 | 12.5万円 | 25.0m² 1K | 11階 |
| 2024年1月 | 12.5万円 | 25.0m² 1K | 11階 |
| 2024年1月 | 12.6万円 | 25.0m² 1K | 13階 |
| 2023年12月 | 12.5万円 | 25.0m² 1K | 11階 |
| 2023年12月 | 12.5万円 | 25.0m² 1K | 11階 |
| 2023年12月 | 12.6万円 | 25.0m² 1K | 13階 |
| 2023年11月 | 11.7万円 | 25.0m² 1K | 5階 |
| 2023年10月 | 11.9万円 | 25.0m² 1K | 5階 |
| 2023年9月 | 12.0万円 | 25.0m² 1K | 4階 |
| 2023年9月 | 12.2万円 | 25.0m² 1K | 5階 |
| 2023年8月 | 12.2万円 | 25.0m² 1K | 4階 |
| 2023年8月 | 11.8万円 | 25.0m² 1K | 12階 |
| 2023年7月 | 12.1万円 | 25.0m² 1K | 2階 |
| 2023年7月 | 12.2万円 | 25.0m² 1K | 4階 |
| 2023年7月 | 11.8万円 | 25.0m² 1K | 12階 |
| 2023年7月 | 18.0万円 | 40.0m² 1LDK | 13階 |
| 2023年7月 | 12.2万円 | 25.0m² 1K | 14階 |
| 2023年6月 | 11.8万円 | 25.0m² 1K | 2階 |
| 2023年6月 | 11.8万円 | 25.0m² 1K | 12階 |
| 2023年6月 | 18.0万円 | 40.0m² 1LDK | 13階 |
| 2023年6月 | 12.2万円 | 25.0m² 1K | 14階 |
| 2023年5月 | 12.1万円 | 25.0m² 1K | 2階 |
| 2023年5月 | 11.8万円 | 25.0m² 1K | 12階 |
| 2023年5月 | 12.7万円 | 25.0m² 1K | 14階 |
| 2023年4月 | 12.1万円 | 25.0m² 1K | 5階 |
| 2023年4月 | 12.2万円 | 25.0m² 1K | 6階 |
| 2023年3月 | 12.2万円 | 25.0m² 1K | 5階 |
| 2023年3月 | 12.1万円 | 25.0m² 1K | 5階 |
| 2023年3月 | 12.0万円 | 25.0m² 1K | 5階 |
| 2023年3月 | 12.2万円 | 25.0m² 1K | 6階 |
| 2023年3月 | 12.5万円 | 25.0m² 1K | 11階 |
| 2023年2月 | 12.1万円 | 25.0m² 1K | 5階 |
| 2023年2月 | 12.0万円 | 25.0m² 1K | 5階 |
| 2023年2月 | 12.2万円 | 25.0m² 1K | 5階 |
| 2023年2月 | 12.2万円 | 25.0m² 1K | 6階 |
| 2023年2月 | 12.5万円 | 25.0m² 1K | 11階 |
| 2023年2月 | 18.0万円 | 40.0m² 1LDK | 12階 |
| 2023年1月 | 12.0万円 | 25.0m² 1K | 5階 |
| 2023年1月 | 12.1万円 | 25.0m² 1K | 5階 |
| 2023年1月 | 11.8万円 | 25.0m² 1K | 9階 |
| 2023年1月 | 12.2万円 | 25.0m² 1K | 10階 |
| 2023年1月 | 12.1万円 | 25.0m² 1K | 10階 |
| 2023年1月 | 12.2万円 | 25.0m² 1K | 11階 |
| 2023年1月 | 18.0万円 | 40.0m² 1LDK | 12階 |
| 2022年12月 | 11.7万円 | 25.0m² 1K | 3階 |
| 2022年12月 | 11.9万円 | 25.0m² 1K | 4階 |
| 2022年12月 | 12.0万円 | 25.0m² 1K | 5階 |
| 2022年12月 | 12.1万円 | 25.0m² 1K | 5階 |
| 2022年12月 | 12.0万円 | 25.0m² 1K | 9階 |
| 2022年12月 | 12.2万円 | 25.0m² 1K | 10階 |
| 2022年12月 | 12.2万円 | 25.0m² 1K | 10階 |
| 2022年12月 | 12.1万円 | 25.0m² 1K | 10階 |
| 2022年12月 | 12.2万円 | 25.0m² 1K | 11階 |
| 2022年12月 | 18.0万円 | 40.0m² 1LDK | 13階 |
| 2022年11月 | 12.0万円 | 25.0m² 1K | 2階 |
| 2022年11月 | 11.8万円 | 25.0m² 1K | 3階 |
| 2022年11月 | 11.9万円 | 25.0m² 1K | 4階 |
| 2022年11月 | 12.0万円 | 25.0m² 1K | 5階 |
| 2022年11月 | 12.0万円 | 25.0m² 1K | 6階 |
| 2022年11月 | 12.2万円 | 25.0m² 1K | 9階 |
| 2022年11月 | 12.2万円 | 25.0m² 1K | 10階 |
| 2022年11月 | 12.2万円 | 25.0m² 1K | 10階 |
| 2022年11月 | 12.2万円 | 25.0m² 1K | 10階 |
| 2022年11月 | 12.2万円 | 25.0m² 1K | 11階 |
| 2022年11月 | 12.2万円 | 25.0m² 1K | 11階 |
| 2022年11月 | 18.0万円 | 40.0m² 1LDK | 13階 |
| 2022年10月 | 12.0万円 | 25.0m² 1K | 2階 |
| 2022年10月 | 11.8万円 | 25.0m² 1K | 3階 |
| 2022年10月 | 11.9万円 | 25.0m² 1K | 4階 |
| 2022年10月 | 12.0万円 | 25.0m² 1K | 6階 |
| 2022年10月 | 12.2万円 | 25.0m² 1K | 9階 |
| 2022年10月 | 12.2万円 | 25.0m² 1K | 11階 |
| 2022年10月 | 12.2万円 | 25.0m² 1K | 11階 |
| 2022年10月 | 18.0万円 | 40.0m² 1LDK | 13階 |
| 2022年9月 | 12.0万円 | 25.0m² 1K | 6階 |
| 2022年8月 | 12.0万円 | 25.0m² 1K | 6階 |
| 2022年8月 | 12.0万円 | 25.0m² 1K | 14階 |
| 2022年7月 | 12.0万円 | 25.0m² 1K | 14階 |
| 2022年6月 | 11.7万円 | 25.0m² 1K | 4階 |
| 2022年6月 | 12.0万円 | 25.0m² 1K | 14階 |
| 2022年5月 | 12.0万円 | 25.0m² 1K | 14階 |
| 2022年4月 | 11.6万円 | 25.0m² 1K | 9階 |
| 2022年3月 | 11.1万円 | 25.2m² 1K | 3階 |
| 2022年2月 | 10.9万円 | 25.56m² 1K | 1階 |
| 2022年2月 | 11.1万円 | 25.2m² 1K | 3階 |
| 2022年2月 | 11.0万円 | 25.2m² 1K | 7階 |
| 2022年2月 | 11.6万円 | 25.2m² 1K | 10階 |
| 2022年2月 | 17.9万円 | 40.99m² 1LDK | 12階 |
| 2022年2月 | 17.0万円 | 40.99m² 1LDK | 13階 |
| 2022年1月 | 10.9万円 | 25.56m² 1K | 1階 |
| 2022年1月 | 11.1万円 | 25.2m² 1K | 3階 |
| 2022年1月 | 11.0万円 | 25.2m² 1K | 7階 |
| 2022年1月 | 16.9万円 | 40.99m² 1LDK | 12階 |
| 2022年1月 | 17.0万円 | 40.99m² 1LDK | 13階 |
| 2021年12月 | 11.1万円 | 25.2m² 1K | 3階 |
| 2021年12月 | 11.0万円 | 25.2m² 1K | 7階 |
| 2021年11月 | 10.9万円 | 25.2m² 1K | 4階 |
| 2021年10月 | 10.8万円 | 25.2m² 1K | 2階 |
| 2021年10月 | 10.9万円 | 25.2m² 1K | 4階 |
| 2021年10月 | 17.1万円 | 40.99m² 1LDK | 14階 |
| 2021年9月 | 10.8万円 | 25.2m² 1K | 2階 |
| 2021年9月 | 10.9万円 | 25.2m² 1K | 4階 |
| 2021年9月 | 11.2万円 | 25.2m² 1K | 9階 |
| 2021年9月 | 17.1万円 | 40.99m² 1LDK | 14階 |
| 2021年8月 | 10.8万円 | 25.2m² 1K | 2階 |
| 2021年8月 | 11.3万円 | 25.2m² 1K | 4階 |
| 2021年8月 | 11.4万円 | 25.2m² 1K | 8階 |
| 2021年8月 | 11.6万円 | 25.2m² 1K | 9階 |
| 2021年8月 | 11.8万円 | 25.2m² 1K | 14階 |
| 2021年7月 | 11.1万円 | 25.2m² 1K | 2階 |
| 2021年7月 | 10.9万円 | 25.2m² 1K | 5階 |
| 2021年7月 | 11.5万円 | 25.2m² 1K | 8階 |
| 2021年7月 | 11.3万円 | 25.2m² 1K | 8階 |
| 2021年7月 | 11.6万円 | 25.2m² 1K | 9階 |
| 2021年7月 | 11.8万円 | 25.2m² 1K | 14階 |
| 2021年6月 | 10.7万円 | 25.2m² 1K | 1階 |
| 2021年6月 | 11.0万円 | 25.2m² 1K | 4階 |
| 2021年6月 | 11.4万円 | 25.2m² 1K | 5階 |
| 2021年6月 | 11.3万円 | 25.2m² 1K | 8階 |
| 2021年6月 | 11.6万円 | 25.2m² 1K | 9階 |
| 2021年6月 | 11.8万円 | 25.2m² 1K | 12階 |
| 2021年5月 | 10.8万円 | 25.2m² 1K | 1階 |
| 2021年5月 | 11.4万円 | 25.2m² 1K | 5階 |
| 2021年5月 | 11.3万円 | 25.2m² 1K | 8階 |
| 2021年5月 | 11.8万円 | 25.2m² 1K | 12階 |
| 2021年4月 | 11.0万円 | 25.2m² 1K | 1階 |
| 2021年4月 | 11.1万円 | 25.2m² 1K | 4階 |
| 2021年4月 | 11.4万円 | 25.2m² 1K | 8階 |
| 2021年4月 | 11.8万円 | 25.2m² 1K | 12階 |
| 2021年3月 | 11.3万円 | 25.2m² 1K | 2階 |
| 2021年3月 | 11.1万円 | 25.2m² 1K | 4階 |
| 2021年3月 | 11.4万円 | 25.2m² 1K | 8階 |
| 2021年3月 | 11.8万円 | 25.2m² 1K | 12階 |
| 2021年2月 | 11.3万円 | 25.2m² 1K | 2階 |
| 2021年2月 | 10.8万円 | 25.2m² 1K | 3階 |
| 2021年2月 | 11.4万円 | 25.2m² 1K | 4階 |
| 2021年2月 | 11.6万円 | 25.2m² 1K | 5階 |
| 2021年2月 | 11.1万円 | 25.2m² 1K | 6階 |
| 2021年2月 | 12.3万円 | 25.2m² 1K | 11階 |
| 2021年1月 | 9.6万円 | 25.56m² 1K | 1階 |
| 2021年1月 | 11.0万円 | 25.2m² 1K | 2階 |
| 2021年1月 | 10.8万円 | 25.2m² 1K | 3階 |
| 2021年1月 | 11.0万円 | 25.2m² 1K | 5階 |
| 2021年1月 | 11.1万円 | 25.2m² 1K | 5階 |
| 2021年1月 | 11.1万円 | 25.2m² 1K | 6階 |
| 2021年1月 | 11.6万円 | 25.2m² 1K | 7階 |
| 2021年1月 | 12.3万円 | 25.2m² 1K | 11階 |
| 2020年12月 | 9.6万円 | 25.56m² 1K | 1階 |
| 2020年12月 | 11.5万円 | 25.2m² 1K | 2階 |
| 2020年12月 | 11.8万円 | 25.2m² 1K | 3階 |
| 2020年12月 | 11.1万円 | 25.2m² 1K | 5階 |
| 2020年12月 | 11.7万円 | 25.2m² 1K | 6階 |
| 2020年12月 | 11.6万円 | 25.2m² 1K | 7階 |
| 2020年12月 | 11.4万円 | 25.2m² 1K | 9階 |
| 2020年12月 | 11.0万円 | 25.2m² 1K | 10階 |
| 2020年12月 | 9.8万円 | 25.2m² 1K | 10階 |
| 2020年11月 | 10.5万円 | 25.56m² 1K | 1階 |
| 2020年11月 | 9.2万円 | 25.2m² 1K | 2階 |
| 2020年11月 | 9.3万円 | 25.2m² 1K | 3階 |
| 2020年11月 | 10.2万円 | 25.2m² 1K | 5階 |
| 2020年11月 | 11.1万円 | 25.2m² 1K | 5階 |
| 2020年11月 | 11.7万円 | 25.2m² 1K | 6階 |
| 2020年11月 | 11.4万円 | 25.2m² 1K | 9階 |
| 2020年11月 | 11.5万円 | 25.2m² 1K | 10階 |
| 2020年11月 | 9.8万円 | 25.2m² 1K | 10階 |
| 2020年11月 | 10.4万円 | 25.2m² 1K | 11階 |
| 2020年11月 | 9.9万円 | 25.2m² 1K | 11階 |
| 2020年11月 | 9.9万円 | 25.2m² 1K | 11階 |
| 2020年11月 | 10.0万円 | 25.2m² 1K | 13階 |
| 2020年10月 | 10.5万円 | 25.56m² 1K | 1階 |
| 2020年10月 | 10.7万円 | 25.2m² 1K | 2階 |
| 2020年10月 | 9.8万円 | 25.2m² 1K | 3階 |
| 2020年10月 | 10.7万円 | 25.2m² 1K | 5階 |
| 2020年10月 | 11.4万円 | 25.2m² 1K | 9階 |
| 2020年10月 | 9.8万円 | 25.2m² 1K | 10階 |
| 2020年10月 | 12.0万円 | 25.2m² 1K | 10階 |
| 2020年10月 | 10.9万円 | 25.2m² 1K | 11階 |
| 2020年10月 | 9.9万円 | 25.2m² 1K | 11階 |
| 2020年10月 | 16.7万円 | 40.99m² 1LDK | 12階 |
| 2020年10月 | 10.5万円 | 25.2m² 1K | 13階 |
| 2020年9月 | 10.7万円 | 25.2m² 1K | 2階 |
| 2020年9月 | 10.7万円 | 25.2m² 1K | 3階 |
| 2020年9月 | 11.0万円 | 25.2m² 1K | 5階 |
| 2020年9月 | 11.4万円 | 25.2m² 1K | 9階 |
| 2020年9月 | 11.2万円 | 25.2m² 1K | 10階 |
| 2020年9月 | 10.2万円 | 25.2m² 1K | 10階 |
| 2020年9月 | 11.2万円 | 25.2m² 1K | 11階 |
| 2020年9月 | 10.9万円 | 25.2m² 1K | 11階 |
| 2020年9月 | 16.7万円 | 40.99m² 1LDK | 12階 |
| 2020年9月 | 11.2万円 | 25.2m² 1K | 13階 |
| 2020年8月 | 11.0万円 | 25.2m² 1K | 2階 |
| 2020年8月 | 11.0万円 | 25.2m² 1K | 5階 |
| 2020年8月 | 12.0万円 | 25.2m² 1K | 10階 |
| 2020年8月 | 10.2万円 | 25.2m² 1K | 10階 |
| 2020年8月 | 12.0万円 | 25.2m² 1K | 11階 |
| 2020年8月 | 17.0万円 | 40.99m² 1LDK | 12階 |
| 2020年8月 | 11.5万円 | 25.2m² 1K | 13階 |
| 2020年7月 | 10.5万円 | 25.2m² 1K | 1階 |
| 2020年7月 | 10.5万円 | 25.2m² 1K | 2階 |
| 2020年7月 | 11.0万円 | 25.2m² 1K | 5階 |
| 2020年7月 | 11.0万円 | 25.2m² 1K | 5階 |
| 2020年7月 | 10.4万円 | 25.2m² 1K | 10階 |
| 2020年7月 | 11.5万円 | 25.2m² 1K | 13階 |
| 2020年6月 | 10.5万円 | 25.2m² 1K | 1階 |
| 2020年6月 | 10.5万円 | 25.2m² 1K | 2階 |
| 2020年6月 | 11.0万円 | 25.2m² 1K | 5階 |
| 2020年6月 | 11.0万円 | 25.2m² 1K | 10階 |
| 2020年6月 | 11.0万円 | 25.2m² 1K | 11階 |
| 2020年5月 | 11.0万円 | 25.2m² 1K | 5階 |
| 2020年5月 | 11.0万円 | 25.2m² 1K | 10階 |
| 2020年5月 | 11.0万円 | 25.2m² 1K | 11階 |
| 2020年4月 | 10.5万円 | 25.2m² 1K | 5階 |
| 2020年4月 | 11.0万円 | 25.2m² 1K | 9階 |
| 2020年3月 | 10.5万円 | 25.2m² 1K | 6階 |
| 2020年3月 | 11.0万円 | 25.2m² 1K | 9階 |
| 2020年2月 | 10.5万円 | 25.2m² 1K | 6階 |
一般的なファミリー向けの中古マンション価格(※)の3ヶ月ごとの推移です。
新宿区の価格推移
東京都の価格推移
新宿区の標準的な物件の価格は直近の3年間で16.35%程度上昇しています。
これは新宿区のある東京都の変動の16.72%に比べて同程度の水準です。
この3年間の価格上昇率を内訳でみると、初年度が2.02%、2年目が5.29%、3年目が9.05%となっています。
一般的なファミリー向けの賃貸マンションの賃料(※)の3ヶ月ごとの推移です。
新宿区の賃料推移
東京都の賃料推移
新宿区の標準的な物件の賃料は直近の3年間で13.89%程度上昇しています。
これは新宿区のある東京都の変動の13.88%に比べて同程度の水準です。
この3年間の価格上昇率を内訳でみると、初年度が3.43%、2年目が3.83%、3年目が6.64%となっています。
この周辺地域のマンションにかかる固定資産税の概算をシミュレーションすることができます。
下記項目を入力して年間の固定資産税額を確かめましょう。
LIFULL HOME’Sで7日以内に掲載が開始された物件です。
所有している物件の売却をお考えの方は、ホームズマンション売却や不動産売却査定サービスから複数の会社に一括で売却査定を依頼することができます。
LIFULL HOME'Sは「不動産会社」ではなく「情報掲載サイト」です
webでの訂正依頼
掲載情報の誤りを指摘・訂正の依頼をする