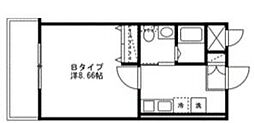
ボヌール2

外観画像

神奈川県厚木市戸田1445

  • 本厚木駅 バス14分 下戸田下車 徒歩5分
  • 平塚駅 バス24分 下戸田下車 徒歩5分
AI

この物件についてAIに相談できます

AIホームズくんに、物件の見方や住まい探しの条件を相談できます。

この物件をもとにAIに相談する無料

このページの情報は広告情報ではありません。過去から現在までにLIFULL HOME'Sに掲載された不動産情報と提携先の地図情報を元に生成した参考情報です。情報更新日: 2022/1/22

厚木市の中古マンション価格の推移

一般的なファミリー向けの中古マンション価格(※)の3ヶ月ごとの推移です。

価格(万円)

厚木市の価格推移

神奈川県の価格推移

※以下の条件でAI査定した参考価格
  • 築10年/専有面積70m²

直近3年間の推移

厚木市の標準的な物件の価格は直近の3年間で1.12%程度上昇しています。

これは厚木市のある神奈川県の変動の5.65%に比べてやや低めの水準です。

この3年間の価格上昇率を内訳でみると、初年度が-2.79%、2年目が1.63%、3年目が2.27%となっています。

厚木市の賃貸マンションの賃料推移

一般的なファミリー向けの賃貸マンションの賃料(※)の3ヶ月ごとの推移です。

賃料(万円)

厚木市の賃料推移

神奈川県の賃料推移

※以下の条件でAI査定した参考価格
  • 築10年/専有面積70m²

直近3年間の推移

厚木市の標準的な物件の賃料は直近の3年間で7.84%程度上昇しています。

これは厚木市のある神奈川県の変動の10.23%に比べてやや低めの水準です。

この3年間の価格上昇率を内訳でみると、初年度が2.11%、2年目が1.67%、3年目が4.06%となっています。

固定資産税シミュレータ

この周辺地域のマンションにかかる固定資産税の概算をシミュレーションすることができます。

下記項目を入力して年間の固定資産税額を確かめましょう。

物件スペックについて
敷地全体の面積
広さを直接入力する場合:m²程度
敷地に対する建物割合
%程度
専有面積
建物階数
階建て
地下
築年数
構造
建材費
減免・優遇措置

厚木市の新着募集あり物件

LIFULL HOME’Sで7日以内に掲載が開始された物件です。

ボヌール2 建物概要

築年月(築年数)
2013年9月 (築13年)
建物構造
軽量鉄骨
建物階建
地上2階
総戸数
4戸

よくある質問

  1. おうち予算シミュレーションでは年収や年齢、家族構成などを入力するだけで無理なく購入できる住まいの予算が算出できます。ボヌール2への住み替え前にチェックすることをおすすめします。
  2. ボヌール2のある厚木市で暮らす世帯の年収は階級別にみると年収300万円未満の世帯が一番多く31465世帯32.9%)となりました。詳しくは厚木市の家計情報をご覧ください。
  3. ボヌール2のある厚木市の総人口は22万5714人で、前回の調査から0.6%程度増加しています。厚木市のある神奈川県全体の人口増加率0.9%0.3ポイント下回っています。詳しくは厚木市の住まいと暮らしやすさをご覧ください。

不動産会社に査定を依頼する

所有している物件の売却をお考えの方は、ホームズマンション売却不動産売却査定サービスから複数の会社に一括で売却査定を依頼することができます。

不動産の所在地
現況

掲載情報に誤りや問題がある場合

LIFULL HOME'Sは「不動産会社」ではなく「情報掲載サイト」です

  • ※管理会社の情報はLIFULL HOME'Sでは保持していないためお答えできません。お問合せはお控えください
  • ※最新の募集状況は掲載中の不動産会社があれば、不動産会社へ直接お問合せください

電話での訂正依頼 専用ダイヤル

0120-987-243

受付時間:10:00〜18:00※土日・祝日、臨時休業日は除く