募集中
売買1

若葉台団地2-17号棟

外観画像

神奈川県横浜市旭区若葉台2丁目17

  • 青葉台駅 バス26分 若葉台中央下車 徒歩4分
  • 十日市場駅 バス15分 若葉台中央下車 徒歩4分
AI

この物件についてAIに相談できます

AIホームズくんに、物件の見方や住まい探しの条件を相談できます。

この物件をもとにAIに相談する無料

このページの情報は広告情報ではありません。過去から現在までにLIFULL HOME'Sに掲載された不動産情報と提携先の地図情報を元に生成した参考情報です。情報更新日: 2026/5/14

募集中の部屋 (売買1件)

売買1

1,400万円

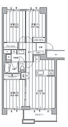
間取り
3LDK
占有面積
70.23m²
所在階
1階
主要採光面
南西向き

詳細を見る

売買掲載履歴 (49件)

掲載履歴とは、過去LIFULL HOME'Sに掲載された時点の情報を履歴として一覧にまとめたものです。
※最終的な成約価格とは異なる場合があります。また、将来の売出し価格を保証するものではありません。

年月価格専有面積
間取り
所在階
2026年3月2,180万円71.82m²
3LDK
7階
2026年2月2,180万円71.82m²
3LDK
7階
2026年1月2,180万円71.82m²
3LDK
7階
2025年12月2,180万円71.82m²
3LDK
7階
2025年11月2,280万円71.82m²
3LDK
7階
2025年10月2,380万円71.82m²
3LDK
7階
2025年1月1,999万円70.23m²
3LDK
3階
2025年1月2,198万円71.82m²
3LDK
7階
2024年12月1,999万円70.23m²
3LDK
3階
2024年12月2,198万円71.82m²
3LDK
7階
2024年11月2,198万円71.82m²
3LDK
7階
2024年10月2,298万円71.82m²
3LDK
7階
2024年3月1,997万円70.0m²
3LDK
2階
2024年2月2,197万円70.0m²
3LDK
2階
2024年1月2,197万円70.0m²
3LDK
2階
2023年12月2,497万円70.0m²
3LDK
2階
2023年11月2,597万円70.0m²
3LDK
2階
2023年3月2,299万円70.0m²
3LDK
8階
2023年2月2,299万円70.0m²
3LDK
8階
2023年2月2,180万円70.0m²
2LDK
14階
2023年1月2,299万円70.0m²
3LDK
8階
2023年1月2,180万円70.0m²
2LDK
14階
2022年12月2,399万円70.0m²
3LDK
8階
2022年12月2,380万円70.0m²
2LDK
14階
2022年11月2,399万円70.0m²
3LDK
8階
2022年10月2,399万円70.0m²
3LDK
8階
2022年9月2,499万円70.0m²
3LDK
8階
2022年8月2,499万円70.0m²
3LDK
8階
2022年7月2,499万円70.0m²
3LDK
8階
2022年6月2,499万円70.0m²
3LDK
8階
2022年5月2,499万円70.0m²
3LDK
8階
2021年7月1,998万円70.23m²
3LDK
5階
2021年6月2,048万円70.23m²
3LDK
5階
2021年6月2,180万円71.82m²
3LDK
7階
2021年5月2,098万円70.23m²
3LDK
5階
2021年5月2,180万円71.82m²
3LDK
7階
2021年4月2,280万円71.82m²
3LDK
7階
2021年3月2,280万円71.82m²
3LDK
7階
2021年2月2,280万円71.82m²
3LDK
7階
2021年1月2,280万円71.82m²
3LDK
7階
2021年1月2,299万円71.82m²
3LDK
10階
2020年12月2,280万円71.82m²
3LDK
7階
2020年12月2,299万円71.82m²
3LDK
10階
2020年11月2,280万円71.82m²
3LDK
7階
2020年11月2,299万円71.82m²
3LDK
10階
2020年10月2,280万円71.82m²
3LDK
7階
2020年10月2,299万円71.82m²
3LDK
10階
2020年9月2,280万円71.82m²
3LDK
7階
2020年9月2,399万円71.82m²
3LDK
10階
全て表示 (49件)表示を省略

横浜市旭区の中古マンション価格の推移

一般的なファミリー向けの中古マンション価格(※)の3ヶ月ごとの推移です。

価格(万円)

横浜市旭区の価格推移

神奈川県の価格推移

※以下の条件でAI査定した参考価格
  • 築10年/専有面積70m²

直近3年間の推移

横浜市旭区の標準的な物件の価格は直近の3年間で3.59%程度上昇しています。

これは横浜市旭区のある神奈川県の変動の5.65%に比べてやや低めの水準です。

この3年間の価格上昇率を内訳でみると、初年度が-0.79%、2年目が0.89%、3年目が3.50%となっています。

横浜市旭区の賃貸マンションの賃料推移

一般的なファミリー向けの賃貸マンションの賃料(※)の3ヶ月ごとの推移です。

賃料(万円)

横浜市旭区の賃料推移

神奈川県の賃料推移

※以下の条件でAI査定した参考価格
  • 築10年/専有面積70m²

直近3年間の推移

横浜市旭区の標準的な物件の賃料は直近の3年間で6.66%程度上昇しています。

これは横浜市旭区のある神奈川県の変動の10.23%に比べてやや低めの水準です。

この3年間の価格上昇率を内訳でみると、初年度が1.91%、2年目が3.57%、3年目が1.19%となっています。

固定資産税シミュレータ

この周辺地域のマンションにかかる固定資産税の概算をシミュレーションすることができます。

下記項目を入力して年間の固定資産税額を確かめましょう。

物件スペックについて
敷地全体の面積
広さを直接入力する場合:m²程度
敷地に対する建物割合
%程度
専有面積
建物階数
階建て
地下
築年数
構造
建材費
減免・優遇措置

横浜市旭区の新着募集あり物件

LIFULL HOME’Sで7日以内に掲載が開始された物件です。

若葉台団地2-17号棟 建物概要

物件種別
マンション
築年月(築年数)
1982年7月 (築44年)
建物構造
SRC
建物階建
地上14階
総戸数
163戸
建ぺい率
60%
容積率
150%
用途地域
第一種中高層住居専用
都市計画
市街化区域

よくある質問

  1. おうち予算シミュレーションでは年収や年齢、家族構成などを入力するだけで無理なく購入できる住まいの予算が算出できます。若葉台団地2-17号棟への住み替え前にチェックすることをおすすめします。
  2. 若葉台団地2-17号棟のある横浜市旭区で暮らす世帯の年収は階級別にみると年収300万円未満の世帯が一番多く30610世帯29.9%)となりました。詳しくは横浜市旭区の家計情報をご覧ください。
  3. 若葉台団地2-17号棟のある横浜市旭区の総人口は24万7144人で、前回の調査から1.6%程度減少しています。横浜市旭区のある神奈川県全体の人口増加率0.9%2.5ポイント下回っています。詳しくは横浜市旭区の住まいと暮らしやすさをご覧ください。
  4. 若葉台団地2-17号棟周辺で価格相場が近い物件は地図で地域の相場を知るをご覧ください。

不動産会社に査定を依頼する

所有している物件の売却をお考えの方は、ホームズマンション売却不動産売却査定サービスから複数の会社に一括で売却査定を依頼することができます。

不動産の所在地
現況

掲載情報に誤りや問題がある場合

LIFULL HOME'Sは「不動産会社」ではなく「情報掲載サイト」です

  • ※管理会社の情報はLIFULL HOME'Sでは保持していないためお答えできません。お問合せはお控えください
  • ※最新の募集状況は掲載中の不動産会社があれば、不動産会社へ直接お問合せください

電話での訂正依頼 専用ダイヤル

0120-987-243

受付時間:10:00〜18:00※土日・祝日、臨時休業日は除く