直近3年間の推移
長岡市の標準的な物件の価格は直近の3年間で9.31%程度上昇しています。
これは長岡市のある新潟県の変動の8.48%に比べて同程度の水準です。
この3年間の価格上昇率を内訳でみると、初年度が2.46%、2年目が-2.18%、3年目が9.04%となっています。

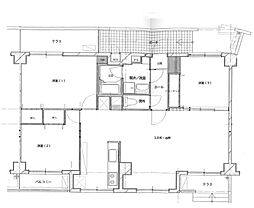
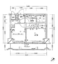
新潟県長岡市江陽2丁目4-5
このページの情報は広告情報ではありません。過去から現在までにLIFULL HOME'Sに掲載された不動産情報と提携先の地図情報を元に生成した参考情報です。情報更新日: 2025/12/21
一般的なファミリー向けの中古マンション価格(※)の3ヶ月ごとの推移です。
長岡市の価格推移
新潟県の価格推移
長岡市の標準的な物件の価格は直近の3年間で9.31%程度上昇しています。
これは長岡市のある新潟県の変動の8.48%に比べて同程度の水準です。
この3年間の価格上昇率を内訳でみると、初年度が2.46%、2年目が-2.18%、3年目が9.04%となっています。
一般的なファミリー向けの賃貸マンションの賃料(※)の3ヶ月ごとの推移です。
長岡市の賃料推移
新潟県の賃料推移
長岡市の標準的な物件の賃料は直近の3年間で1.56%程度上昇しています。
これは長岡市のある新潟県の変動の3.06%に比べて同程度の水準です。
この3年間の価格上昇率を内訳でみると、初年度が0.76%、2年目が-0.42%、3年目が1.23%となっています。
この周辺地域のマンションにかかる固定資産税の概算をシミュレーションすることができます。
下記項目を入力して年間の固定資産税額を確かめましょう。
LIFULL HOME’Sで7日以内に掲載が開始された物件です。
所有している物件の売却をお考えの方は、ホームズマンション売却や不動産売却査定サービスから複数の会社に一括で売却査定を依頼することができます。
LIFULL HOME'Sは「不動産会社」ではなく「情報掲載サイト」です
webでの訂正依頼
掲載情報の誤りを指摘・訂正の依頼をする