直近3年間の推移
京都市伏見区の標準的な物件の価格は直近の3年間で9.04%程度上昇しています。
これは京都市伏見区のある京都府の変動の10.42%に比べて同程度の水準です。
この3年間の価格上昇率を内訳でみると、初年度が0.63%、2年目が4.96%、3年目が3.47%となっています。

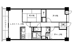
京都府京都市伏見区京町3丁目190-1
このページの情報は広告情報ではありません。過去から現在までにLIFULL HOME'Sに掲載された不動産情報と提携先の地図情報を元に生成した参考情報です。情報更新日: 2026/4/15
※この価格はあくまでも参考情報であり、取引価格として適正であることを保証するものではありません。
また、販売情報とは異なります。詳しくは参考価格算出ロジックをご確認ください。
掲載履歴とは、過去LIFULL HOME'Sに掲載された時点の情報を履歴として一覧にまとめたものです。
※最終的な成約価格とは異なる場合があります。また、将来の売出し価格を保証するものではありません。
| 年月 | 価格 | 専有面積 間取り | 所在階 |
|---|---|---|---|
| 2025年5月 | 3,280万円 | 65.13m² 2SLDK | 3階 |
| 2025年4月 | 3,280万円 | 65.13m² 2SLDK | 3階 |
| 2025年3月 | 3,280万円 | 65.13m² 2SLDK | 3階 |
| 2025年2月 | 3,280万円 | 65.13m² 2SLDK | 3階 |
| 2010年11月 | 2,380万円 | 65.34m² 3LDK | 2階 |
掲載履歴とは、過去LIFULL HOME'Sに掲載された時点の情報を履歴として一覧にまとめたものです。
※最終的な成約賃料とは異なる場合があります。また、将来の募集賃料を保証するものではありません。
| 年月 | 賃料 | 専有面積 間取り | 所在階 |
|---|---|---|---|
| 2026年3月 | 8.8万円 | 57.68m² 3LDK | 2階 |
| 2026年1月 | 17.0万円 | 65.34m² 3LDK | 7階 |
| 2025年12月 | 17.0万円 | 65.34m² 3LDK | 7階 |
| 2025年11月 | 17.0万円 | 65.34m² 3LDK | 7階 |
| 2025年10月 | 17.0万円 | 65.34m² 3LDK | 7階 |
| 2025年5月 | 8.6万円 | 54.77m² 2LDK | 4階 |
| 2025年3月 | 10.2万円 | 54.77m² 2LDK | 11階 |
| 2024年12月 | 13.3万円 | 65.34m² 3LDK | 2階 |
| 2024年11月 | 13.3万円 | 65.34m² 3LDK | 2階 |
| 2024年8月 | 9.8万円 | 55.0m² 3DK | 7階 |
| 2024年7月 | 9.8万円 | 55.0m² 3DK | 7階 |
| 2024年6月 | 9.8万円 | 55.0m² 3DK | 7階 |
| 2024年5月 | 9.8万円 | 55.0m² 3DK | 7階 |
| 2024年4月 | 9.8万円 | 55.0m² 3DK | 7階 |
| 2023年4月 | 8.8万円 | 57.0m² 3LDK | 4階 |
| 2023年3月 | 8.8万円 | 57.0m² 3LDK | 4階 |
| 2022年11月 | 8.4万円 | 54.0m² 2LDK | 4階 |
| 2022年10月 | 8.4万円 | 54.0m² 2LDK | 4階 |
| 2022年4月 | 9.7万円 | 57.0m² 3DK | 6階 |
| 2021年10月 | 9.0万円 | 54.77m² 2LDK | 6階 |
| 2021年9月 | 9.0万円 | 54.77m² 2LDK | 6階 |
| 2021年6月 | 11.0万円 | 65.13m² 2LDK | 5階 |
| 2021年6月 | 9.8万円 | 54.77m² 3DK | 10階 |
| 2021年5月 | 11.0万円 | 65.13m² 2LDK | 5階 |
| 2021年5月 | 9.8万円 | 55.0m² 3DK | 10階 |
| 2021年3月 | 9.7万円 | 57.68m² 3DK | 6階 |
| 2021年2月 | 9.7万円 | 57.68m² 3DK | 6階 |
| 2021年1月 | 9.7万円 | 57.68m² 3DK | 6階 |
| 2020年12月 | 9.7万円 | 57.68m² 3DK | 6階 |
| 2020年7月 | 11.0万円 | 65.13m² 2LDK | 5階 |
| 2020年6月 | 11.0万円 | 65.13m² 2LDK | 5階 |
| 2020年5月 | 11.0万円 | 65.13m² 2LDK | 5階 |
| 2020年5月 | 9.8万円 | 54.77m² 3DK | 10階 |
| 2020年4月 | 11.0万円 | 65.13m² 2LDK | 5階 |
| 2020年4月 | 9.8万円 | 54.77m² 3DK | 10階 |
| 2020年3月 | 11.0万円 | 65.13m² 2LDK | 5階 |
| 2020年2月 | 11.0万円 | 65.13m² 2LDK | 5階 |
| 2019年9月 | 9.3万円 | 55.01m² 3DK | 7階 |
| 2019年8月 | 9.3万円 | 55.0m² 3DK | 7階 |
| 2019年7月 | 9.3万円 | 55.01m² 3DK | 7階 |
| 2019年6月 | 9.3万円 | 55.01m² 3DK | 7階 |
| 2019年1月 | 9.0万円 | 54.77m² 2LDK | 6階 |
| 2018年12月 | 9.0万円 | 54.77m² 2LDK | 6階 |
| 2018年6月 | 14.0万円 | 60.95m² 2LDK | 2階 |
| 2018年5月 | 14.0万円 | 60.95m² 2LDK | 2階 |
| 2018年4月 | 14.0万円 | 60.95m² 2LDK | 2階 |
| 2017年5月 | 7.8万円 | 54.77m² 2LDK | 2階 |
| 2017年4月 | 7.8万円 | 55.01m² 2LDK | 2階 |
| 2017年4月 | 9.7万円 | 57.68m² 3DK | 6階 |
| 2017年3月 | 9.7万円 | 57.68m² 3DK | 6階 |
| 2017年3月 | 9.9万円 | 54.77m² 2LDK | 10階 |
| 2017年2月 | 9.7万円 | 57.68m² 3DK | 6階 |
| 2017年2月 | 9.3万円 | 55.0m² 3DK | 7階 |
| 2017年2月 | 9.9万円 | 54.77m² 2LDK | 10階 |
| 2017年1月 | 9.7万円 | 57.68m² 3DK | 6階 |
| 2017年1月 | 9.3万円 | 55.01m² 3DK | 7階 |
| 2017年1月 | 9.9万円 | 54.77m² 2LDK | 10階 |
| 2016年9月 | 9.9万円 | 54.77m² 2LDK | 9階 |
| 2016年8月 | 9.9万円 | 54.77m² 2LDK | 9階 |
| 2016年3月 | 8.8万円 | 55.0m² 3DK | 5階 |
| 2016年2月 | 8.8万円 | 55.01m² 3DK | 5階 |
| 2016年1月 | 8.8万円 | 55.01m² 3DK | 5階 |
| 2015年9月 | 10.0万円 | 55.01m² 3DK | 7階 |
| 2015年8月 | 11.0万円 | 65.13m² 2LDK | 5階 |
| 2015年7月 | 8.4万円 | 54.77m² 2LDK | 4階 |
| 2015年7月 | 8.8万円 | 57.68m² 3LDK | 4階 |
| 2015年7月 | 11.0万円 | 65.13m² 2LDK | 5階 |
| 2015年7月 | 10.0万円 | 54.77m² 3DK | 9階 |
| 2015年7月 | 10.0万円 | 54.77m² 2LDK | 9階 |
| 2015年6月 | 8.8万円 | 57.68m² 3LDK | 4階 |
| 2015年6月 | 8.4万円 | 54.77m² 2LDK | 4階 |
| 2015年6月 | 11.0万円 | 65.13m² 2LDK | 5階 |
| 2015年6月 | 10.0万円 | 55.0m² 3DK | 7階 |
| 2015年6月 | 9.9万円 | 55.01m² 3DK | 9階 |
| 2015年6月 | 9.9万円 | 54.77m² 2LDK | 9階 |
| 2015年5月 | 8.8万円 | 57.68m² 3LDK | 4階 |
| 2015年5月 | 11.0万円 | 65.13m² 2LDK | 5階 |
| 2015年5月 | 10.0万円 | 55.0m² 3DK | 7階 |
| 2015年5月 | 9.9万円 | 55.01m² 3DK | 9階 |
| 2015年5月 | 9.9万円 | 54.77m² 2LDK | 9階 |
| 2015年4月 | 8.4万円 | 54.77m² 2LDK | 4階 |
| 2015年4月 | 8.8万円 | 57.68m² 3LDK | 4階 |
| 2015年4月 | 9.9万円 | 55.01m² 3DK | 9階 |
| 2015年4月 | 9.9万円 | 54.77m² 2LDK | 9階 |
| 2015年3月 | 11.5万円 | 65.34m² 3LDK | 2階 |
| 2015年3月 | 8.8万円 | 57.68m² 3LDK | 4階 |
| 2015年3月 | 8.4万円 | 54.77m² 2LDK | 4階 |
| 2015年3月 | 8.5万円 | 57.68m² 3LDK | 7階 |
| 2015年3月 | 9.9万円 | 55.01m² 3DK | 9階 |
| 2015年3月 | 10.0万円 | 54.77m² 2LDK | 9階 |
| 2015年2月 | 8.8万円 | 57.68m² 3LDK | 4階 |
| 2015年2月 | 8.4万円 | 54.77m² 2LDK | 4階 |
| 2015年2月 | 8.5万円 | 57.68m² 3LDK | 7階 |
| 2015年1月 | 10.2万円 | 54.77m² 2LDK | 11階 |
| 2014年12月 | 10.2万円 | 54.77m² 2LDK | 11階 |
| 2014年11月 | 10.2万円 | 54.77m² 2LDK | 11階 |
| 2014年10月 | 10.2万円 | 54.77m² 2LDK | 11階 |
| 2014年9月 | 10.2万円 | 54.77m² 2LDK | 11階 |
| 2014年8月 | 10.2万円 | 57.68m² 3LDK | 10階 |
| 2014年3月 | 9.8万円 | 57.68m² 3DK | 10階 |
| 2014年1月 | 8.8万円 | 57.68m² 3LDK | 4階 |
| 2014年1月 | 9.3万円 | 55.01m² 3DK | 5階 |
| 2013年12月 | 8.8万円 | 57.68m² 3LDK | 4階 |
| 2013年12月 | 9.3万円 | 55.01m² 3DK | 5階 |
| 2013年11月 | 9.3万円 | 55.01m² 3DK | 5階 |
| 2013年10月 | 9.3万円 | 55.01m² 3DK | 5階 |
| 2013年8月 | 10.3万円 | 55.0m² 3DK | 7階 |
| 2013年7月 | 10.3万円 | 55.0m² 3DK | 7階 |
| 2013年6月 | 10.3万円 | 55.01m² 3DK | 7階 |
| 2013年1月 | 9.3万円 | 55.01m² 3DK | 7階 |
| 2012年12月 | 9.3万円 | 55.01m² 3DK | 7階 |
| 2012年11月 | 9.3万円 | 55.01m² 3DK | 7階 |
| 2012年10月 | 9.3万円 | 55.0m² 3DK | 7階 |
| 2012年9月 | 9.3万円 | 55.01m² 3DK | 7階 |
| 2012年4月 | 9.2万円 | 54.77m² 2LDK | 10階 |
| 2012年4月 | 9.8万円 | 55.01m² 3DK | 10階 |
| 2012年3月 | 10.0万円 | 54.77m² 2LDK | 10階 |
| 2012年3月 | 9.8万円 | 55.01m² 3DK | 10階 |
| 2012年2月 | 10.0万円 | 54.77m² 2LDK | 10階 |
| 2012年1月 | 10.0万円 | 54.77m² 2LDK | 10階 |
| 2011年11月 | 9.4万円 | 57.68m² 3DK | 6階 |
| 2011年10月 | 8.1万円 | 57.68m² 3LDK | 2階 |
| 2011年10月 | 8.8万円 | 57.68m² 3LDK | 4階 |
| 2011年10月 | 9.4万円 | 57.68m² 3DK | 6階 |
| 2011年9月 | 8.8万円 | 57.68m² 3LDK | 4階 |
| 2011年9月 | 9.4万円 | 57.68m² 3DK | 6階 |
| 2011年8月 | 8.8万円 | 57.68m² 3LDK | 4階 |
| 2011年8月 | 9.4万円 | 57.68m² 3DK | 6階 |
| 2011年7月 | 9.4万円 | 57.68m² 3DK | 6階 |
| 2011年4月 | 8.8万円 | 57.68m² 3LDK | 4階 |
| 2011年3月 | 8.8万円 | 57.68m² 3LDK | 4階 |
| 2011年1月 | 11.5万円 | 65.34m² 3LDK | 2階 |
| 2011年1月 | 8.5万円 | 54.77m² 2LDK | 4階 |
| 2010年12月 | 11.5万円 | 65.34m² 3LDK | 2階 |
| 2010年12月 | 8.5万円 | 54.77m² 2LDK | 4階 |
| 2010年11月 | 11.5万円 | 65.34m² 3LDK | 2階 |
| 2010年11月 | 8.8万円 | 57.68m² 3LDK | 4階 |
| 2010年10月 | 11.5万円 | 65.34m² 3LDK | 2階 |
| 2010年10月 | 8.8万円 | 57.68m² 3LDK | 4階 |
| 2010年8月 | 8.8万円 | 57.68m² 3LDK | 4階 |
| 2010年7月 | 8.8万円 | 57.68m² 3LDK | 4階 |
| 2010年6月 | 8.8万円 | 57.68m² 3LDK | 4階 |
| 2010年6月 | 9.8万円 | 57.68m² 3LDK | 7階 |
| 2010年5月 | 9.8万円 | 57.68m² 3LDK | 7階 |
| 2010年4月 | 9.8万円 | 57.68m² 3LDK | 7階 |
| 2009年6月 | 8.1万円 | 54.77m² 2LDK | 4階 |
| 2009年5月 | 12.0万円 | 65.34m² 3LDK | 2階 |
| 2009年5月 | 8.1万円 | 54.77m² 2LDK | 4階 |
| 2009年4月 | 12.0万円 | 65.34m² 3LDK | 2階 |
| 2009年4月 | 8.1万円 | 54.77m² 2LDK | 4階 |
| 2009年2月 | 12.0万円 | 65.34m² 3LDK | 2階 |
一般的なファミリー向けの中古マンション価格(※)の3ヶ月ごとの推移です。
京都市伏見区の価格推移
京都府の価格推移
京都市伏見区の標準的な物件の価格は直近の3年間で9.04%程度上昇しています。
これは京都市伏見区のある京都府の変動の10.42%に比べて同程度の水準です。
この3年間の価格上昇率を内訳でみると、初年度が0.63%、2年目が4.96%、3年目が3.47%となっています。
一般的なファミリー向けの賃貸マンションの賃料(※)の3ヶ月ごとの推移です。
京都市伏見区の賃料推移
京都府の賃料推移
京都市伏見区の標準的な物件の賃料は直近の3年間で6.26%程度上昇しています。
これは京都市伏見区のある京都府の変動の5.3%に比べて同程度の水準です。
この3年間の価格上昇率を内訳でみると、初年度が1.87%、2年目が1.68%、3年目が2.72%となっています。
この周辺地域のマンションにかかる固定資産税の概算をシミュレーションすることができます。
下記項目を入力して年間の固定資産税額を確かめましょう。
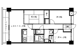
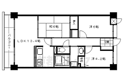
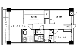
LIFULL HOME’Sで7日以内に掲載が開始された物件です。
所有している物件の売却をお考えの方は、ホームズマンション売却や不動産売却査定サービスから複数の会社に一括で売却査定を依頼することができます。
LIFULL HOME'Sは「不動産会社」ではなく「情報掲載サイト」です
webでの訂正依頼
掲載情報の誤りを指摘・訂正の依頼をする