直近3年間の推移
京都市下京区の標準的な物件の価格は直近の3年間で11.19%程度上昇しています。
これは京都市下京区のある京都府の変動の10.42%に比べて同程度の水準です。
この3年間の価格上昇率を内訳でみると、初年度が3.20%、2年目が0.18%、3年目が7.81%となっています。

京都府京都市下京区上中之町10
このページの情報は広告情報ではありません。過去から現在までにLIFULL HOME'Sに掲載された不動産情報と提携先の地図情報を元に生成した参考情報です。情報更新日: 2026/4/15
※この価格はあくまでも参考情報であり、取引価格として適正であることを保証するものではありません。
また、販売情報とは異なります。詳しくは参考価格算出ロジックをご確認ください。
掲載履歴とは、過去LIFULL HOME'Sに掲載された時点の情報を履歴として一覧にまとめたものです。
※最終的な成約賃料とは異なる場合があります。また、将来の募集賃料を保証するものではありません。
| 年月 | 賃料 | 専有面積 間取り | 所在階 |
|---|---|---|---|
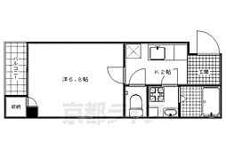
| 2026年2月 | 8.2万円 | 45.15m² 2DK | 2階 |
| 2026年2月 | 5.2万円 | 22.47m² 1K | 2階 |
| 2026年2月 | 5.2万円 | 22.49m² 1K | 4階 |
| 2026年1月 | 5.2万円 | 22.36m² 1K | 2階 |
| 2026年1月 | 5.2万円 | 22.47m² 1K | 3階 |
| 2026年1月 | 5.2万円 | 24.0m² 1K | 4階 |
| 2025年12月 | 5.2万円 | 22.49m² 1K | 2階 |
| 2025年11月 | 5.2万円 | 22.49m² 1K | 2階 |
| 2025年10月 | 5.2万円 | 22.47m² 1K | 2階 |
| 2025年9月 | 5.2万円 | 22.36m² 1K | 2階 |
| 2025年8月 | 5.2万円 | 22.36m² 1K | 2階 |
| 2025年7月 | 5.2万円 | 22.47m² 1K | 2階 |
| 2025年6月 | 5.2万円 | 22.47m² 1K | 2階 |
| 2025年3月 | 5.2万円 | 22.49m² 1K | 2階 |
| 2025年2月 | 5.2万円 | 22.68m² 1K | 2階 |
| 2024年12月 | 5.2万円 | 22.68m² 1K | 2階 |
| 2024年12月 | 5.3万円 | 22.47m² 1K | 4階 |
| 2024年11月 | 5.2万円 | 22.49m² 1K | 2階 |
| 2024年11月 | 5.3万円 | 22.47m² 1K | 4階 |
| 2024年10月 | 5.2万円 | 22.68m² 1K | 2階 |
| 2024年10月 | 5.5万円 | 23.23m² 1K | 3階 |
| 2024年10月 | 5.3万円 | 24.69m² 1K | 4階 |
| 2024年9月 | 5.2万円 | 22.47m² 1K | 2階 |
| 2024年9月 | 5.5万円 | 24.0m² 1K | 3階 |
| 2024年9月 | 5.3万円 | 24.69m² 1K | 4階 |
| 2024年8月 | 5.2万円 | 22.0m² 1K | 2階 |
| 2024年8月 | 5.5万円 | 24.0m² 1K | 3階 |
| 2024年8月 | 5.3万円 | 24.0m² 1K | 4階 |
| 2024年7月 | 5.5万円 | 29.0m² 1K | 3階 |
| 2024年7月 | 5.3万円 | 22.0m² 1K | 4階 |
| 2024年6月 | 8.2万円 | 45.0m² 2DK | 2階 |
| 2024年6月 | 5.5万円 | 23.0m² 1K | 3階 |
| 2024年5月 | 8.2万円 | 45.0m² 2DK | 2階 |
| 2024年5月 | 5.5万円 | 24.0m² 1K | 3階 |
| 2024年3月 | 5.3万円 | 24.0m² 1K | 5階 |
| 2024年2月 | 5.3万円 | 24.0m² 1K | 5階 |
| 2024年1月 | 5.1万円 | 22.0m² 1K | 5階 |
| 2024年1月 | 5.3万円 | 24.0m² 1K | 5階 |
| 2023年12月 | 5.1万円 | 22.0m² 1K | 5階 |
| 2023年12月 | 5.3万円 | 24.0m² 1K | 5階 |
| 2023年11月 | 4.0万円 | 22.0m² 1K | 5階 |
| 2023年10月 | 4.0万円 | 22.0m² 1K | 5階 |
| 2023年9月 | 4.0万円 | 22.0m² 1K | 5階 |
| 2023年8月 | 5.1万円 | 24.0m² 1K | 4階 |
| 2023年8月 | 4.0万円 | 22.0m² 1K | 5階 |
| 2023年7月 | 5.1万円 | 23.0m² 1K | 4階 |
| 2023年7月 | 4.0万円 | 22.0m² 1K | 5階 |
| 2023年2月 | 5.1万円 | 22.0m² 1K | 3階 |
| 2023年1月 | 5.1万円 | 22.0m² 1K | 3階 |
| 2022年12月 | 5.1万円 | 22.0m² 1K | 3階 |
| 2022年6月 | 5.2万円 | 24.0m² 1K | 5階 |
| 2022年5月 | 5.2万円 | 24.0m² 1K | 5階 |
| 2022年4月 | 5.2万円 | 23.0m² 1K | 5階 |
| 2022年3月 | 5.0万円 | 20.2m² 1K | 2階 |
| 2022年3月 | 4.8万円 | 24.0m² 1K | 2階 |
| 2022年3月 | 4.8万円 | 22.47m² 1K | 4階 |
| 2022年2月 | 4.8万円 | 24.0m² 1K | 2階 |
| 2022年2月 | 5.0万円 | 22.68m² 1K | 2階 |
| 2022年2月 | 4.8万円 | 24.0m² 1K | 4階 |
| 2022年2月 | 4.8万円 | 24.0m² 1K | 5階 |
| 2022年1月 | 4.8万円 | 22.68m² 1K | 2階 |
| 2022年1月 | 5.0万円 | 23.28m² 1K | 2階 |
| 2022年1月 | 4.8万円 | 22.47m² 1K | 3階 |
| 2022年1月 | 4.8万円 | 24.0m² 1K | 4階 |
| 2022年1月 | 4.8万円 | 24.0m² 1K | 4階 |
| 2022年1月 | 4.8万円 | 19.4m² 1K | 5階 |
| 2021年12月 | 5.0万円 | 24.95m² 1K | 2階 |
| 2021年12月 | 4.8万円 | 22.47m² 1K | 2階 |
| 2021年12月 | 4.8万円 | 24.0m² 1K | 4階 |
| 2021年12月 | 4.8万円 | 22.36m² 1K | 4階 |
| 2021年12月 | 4.8万円 | 22.47m² 1K | 5階 |
| 2021年12月 | 4.8万円 | 22.36m² 1K | 5階 |
| 2021年11月 | 4.8万円 | 19.4m² 1K | 2階 |
| 2021年11月 | 5.0万円 | 22.68m² 1K | 2階 |
| 2021年11月 | 4.8万円 | 22.49m² 1K | 4階 |
| 2021年11月 | 4.8万円 | 22.49m² 1K | 5階 |
| 2021年11月 | 4.8万円 | 22.49m² 1K | 5階 |
| 2021年10月 | 4.8万円 | 22.36m² 1K | 2階 |
| 2021年10月 | 5.0万円 | 24.0m² 1K | 2階 |
| 2021年10月 | 5.0万円 | 24.33m² 1K | 4階 |
| 2021年10月 | 4.8万円 | 24.0m² 1K | 5階 |
| 2021年10月 | 4.8万円 | 19.6m² 1K | 5階 |
| 2021年9月 | 4.8万円 | 22.36m² 1K | 2階 |
| 2021年9月 | 5.0万円 | 22.68m² 1K | 2階 |
| 2021年9月 | 5.0万円 | 24.95m² 1K | 4階 |
| 2021年9月 | 4.8万円 | 19.4m² 1K | 5階 |
| 2021年9月 | 4.8万円 | 19.4m² 1K | 5階 |
| 2021年8月 | 5.1万円 | 22.36m² 1K | 2階 |
| 2021年8月 | 5.3万円 | 23.28m² 1K | 2階 |
| 2021年8月 | 5.3万円 | 24.95m² 1K | 4階 |
| 2021年8月 | 5.1万円 | 22.49m² 1K | 5階 |
| 2021年8月 | 5.1万円 | 19.4m² 1K | 5階 |
| 2021年7月 | 5.1万円 | 22.36m² 1K | 2階 |
| 2021年7月 | 5.3万円 | 22.68m² 1K | 2階 |
| 2021年7月 | 5.3万円 | 24.95m² 1K | 4階 |
| 2021年7月 | 5.1万円 | 19.4m² 1K | 5階 |
| 2021年7月 | 5.1万円 | 22.68m² 1K | 5階 |
| 2021年6月 | 5.1万円 | 22.47m² 1K | 2階 |
| 2021年6月 | 5.3万円 | 20.2m² 1K | 2階 |
| 2021年6月 | 5.3万円 | 24.95m² 1K | 4階 |
| 2021年6月 | 5.1万円 | 24.0m² 1K | 5階 |
| 2021年6月 | 5.1万円 | 22.47m² 1K | 5階 |
| 2021年5月 | 5.3万円 | 24.95m² 1K | 2階 |
| 2021年5月 | 5.3万円 | 22.68m² 1K | 4階 |
| 2021年5月 | 5.2万円 | 22.49m² 1K | 5階 |
| 2021年4月 | 5.3万円 | 24.0m² 1K | 2階 |
| 2021年4月 | 5.2万円 | 24.0m² 1K | 5階 |
| 2021年3月 | 5.3万円 | 24.95m² 1K | 2階 |
| 2021年3月 | 5.2万円 | 22.47m² 1K | 4階 |
| 2021年3月 | 5.2万円 | 24.0m² 1K | 5階 |
| 2021年2月 | 5.3万円 | 23.28m² 1K | 2階 |
| 2021年2月 | 5.2万円 | 22.0m² 1K | 4階 |
| 2021年2月 | 5.2万円 | 19.6m² 1K | 5階 |
| 2021年1月 | 5.1万円 | 24.0m² 1K | 3階 |
| 2020年12月 | 7.9万円 | 45.15m² 2DK | 2階 |
| 2020年12月 | 5.1万円 | 22.36m² 1K | 2階 |
| 2020年12月 | 5.1万円 | 24.0m² 1K | 3階 |
| 2020年12月 | 5.3万円 | 24.95m² 1K | 3階 |
| 2020年12月 | 5.2万円 | 22.47m² 1K | 4階 |
| 2020年11月 | 5.1万円 | 22.68m² 1K | 2階 |
| 2020年11月 | 5.2万円 | 22.47m² 1K | 4階 |
| 2020年10月 | 5.1万円 | 22.36m² 1K | 2階 |
| 2020年9月 | 5.1万円 | 22.68m² 1K | 2階 |
| 2020年8月 | 5.1万円 | 22.68m² 1K | 2階 |
| 2020年8月 | 5.3万円 | 23.23m² 1K | 3階 |
| 2020年7月 | 5.3万円 | 29.5m² 1K | 3階 |
| 2020年6月 | 5.3万円 | 23.23m² 1K | 3階 |
| 2020年5月 | 5.2万円 | 22.47m² 1K | 5階 |
| 2020年4月 | 5.3万円 | 22.68m² 1K | 2階 |
| 2020年4月 | 5.2万円 | 22.47m² 1K | 5階 |
| 2020年3月 | 5.3万円 | 22.68m² 1K | 2階 |
| 2020年3月 | 5.1万円 | 19.4m² 1K | 3階 |
| 2020年2月 | 5.1万円 | 22.68m² 1K | 3階 |
| 2020年1月 | 5.1万円 | 22.47m² 1K | 3階 |
| 2020年1月 | 5.3万円 | 23.28m² 1K | 4階 |
| 2019年12月 | 5.1万円 | 22.47m² 1K | 3階 |
| 2019年12月 | 5.3万円 | 23.28m² 1K | 4階 |
| 2019年12月 | 5.3万円 | 23.28m² 1K | 5階 |
| 2019年12月 | 5.1万円 | 24.0m² 1K | 5階 |
| 2019年11月 | 5.1万円 | 24.0m² 1K | 5階 |
| 2019年11月 | 5.3万円 | 23.28m² 1K | 5階 |
| 2019年10月 | 5.1万円 | 22.49m² 1K | 5階 |
| 2019年9月 | 5.1万円 | 22.47m² 1K | 5階 |
| 2019年8月 | 5.1万円 | 22.49m² 1K | 5階 |
| 2019年7月 | 7.9万円 | 50.0m² 2DK | 2階 |
| 2019年7月 | 5.1万円 | 22.47m² 1K | 2階 |
| 2019年7月 | 5.3万円 | 23.28m² 1K | 2階 |
| 2019年7月 | 5.3万円 | 23.23m² 1K | 3階 |
| 2019年7月 | 5.3万円 | 23.28m² 1K | 3階 |
| 2019年7月 | 5.1万円 | 22.47m² 1K | 3階 |
| 2019年7月 | 5.1万円 | 22.47m² 1K | 3階 |
| 2019年7月 | 5.1万円 | 22.47m² 1K | 4階 |
| 2019年7月 | 5.3万円 | 23.28m² 1K | 4階 |
| 2019年7月 | 5.1万円 | 19.6m² 1K | 5階 |
| 2019年7月 | 5.1万円 | 22.47m² 1K | 5階 |
| 2019年7月 | 5.3万円 | 22.47m² 1K | 5階 |
| 2019年6月 | 5.1万円 | 24.0m² 1K | 5階 |
| 2019年5月 | 5.1万円 | 22.36m² 1K | 3階 |
| 2019年4月 | 5.1万円 | 22.47m² 1K | 3階 |
| 2018年11月 | 7.9万円 | 60.0m² 2DK | 2階 |
| 2018年10月 | 7.9万円 | 45.15m² 2DK | 2階 |
| 2018年10月 | 5.1万円 | 22.0m² 1K | 2階 |
| 2018年10月 | 5.1万円 | 24.69m² 1K | 5階 |
| 2018年9月 | 5.1万円 | 22.0m² 1K | 2階 |
| 2018年9月 | 5.1万円 | 22.47m² 1K | 5階 |
| 2018年8月 | 5.3万円 | 24.95m² 1K | 2階 |
| 2018年8月 | 5.1万円 | 22.0m² 1K | 2階 |
| 2018年8月 | 5.3万円 | 23.23m² 1K | 3階 |
| 2018年7月 | 5.3万円 | 24.95m² 1K | 2階 |
| 2018年7月 | 5.3万円 | 23.23m² 1K | 3階 |
| 2018年6月 | 5.3万円 | 23.28m² 1K | 2階 |
| 2018年6月 | 5.3万円 | 23.23m² 1K | 3階 |
| 2018年5月 | 5.3万円 | 24.95m² 1K | 2階 |
| 2018年5月 | 5.3万円 | 23.23m² 1K | 3階 |
| 2018年4月 | 5.3万円 | 23.28m² 1K | 2階 |
| 2018年3月 | 5.3万円 | 23.28m² 1K | 2階 |
| 2018年3月 | 5.1万円 | 22.0m² 1K | 3階 |
| 2018年3月 | 5.3万円 | 24.95m² 1K | 4階 |
| 2018年2月 | 5.1万円 | 22.47m² 1K | 3階 |
| 2018年2月 | 5.3万円 | 24.95m² 1K | 4階 |
| 2018年1月 | 5.3万円 | 24.95m² 1K | 3階 |
| 2018年1月 | 5.1万円 | 22.47m² 1K | 3階 |
| 2018年1月 | 5.3万円 | 23.28m² 1K | 4階 |
| 2017年12月 | 5.3万円 | 24.95m² 1K | 3階 |
| 2017年12月 | 5.1万円 | 22.47m² 1K | 3階 |
| 2017年12月 | 5.2万円 | 23.28m² 1K | 4階 |
| 2017年1月 | 7.9万円 | 62.41m² 2DK | 2階 |
| 2016年12月 | 7.9万円 | 50.0m² 2DK | 2階 |
一般的なファミリー向けの中古マンション価格(※)の3ヶ月ごとの推移です。
京都市下京区の価格推移
京都府の価格推移
京都市下京区の標準的な物件の価格は直近の3年間で11.19%程度上昇しています。
これは京都市下京区のある京都府の変動の10.42%に比べて同程度の水準です。
この3年間の価格上昇率を内訳でみると、初年度が3.20%、2年目が0.18%、3年目が7.81%となっています。
一般的なファミリー向けの賃貸マンションの賃料(※)の3ヶ月ごとの推移です。
京都市下京区の賃料推移
京都府の賃料推移
京都市下京区の標準的な物件の賃料は直近の3年間で6.13%程度上昇しています。
これは京都市下京区のある京都府の変動の5.3%に比べて同程度の水準です。
この3年間の価格上昇率を内訳でみると、初年度が1.07%、2年目が2.92%、3年目が2.15%となっています。
この周辺地域のマンションにかかる固定資産税の概算をシミュレーションすることができます。
下記項目を入力して年間の固定資産税額を確かめましょう。
LIFULL HOME’Sで7日以内に掲載が開始された物件です。
所有している物件の売却をお考えの方は、ホームズマンション売却や不動産売却査定サービスから複数の会社に一括で売却査定を依頼することができます。
LIFULL HOME'Sは「不動産会社」ではなく「情報掲載サイト」です
webでの訂正依頼
掲載情報の誤りを指摘・訂正の依頼をする