直近3年間の推移
富山市の標準的な物件の価格は直近の3年間で5.68%程度上昇しています。
これは富山市のある富山県の変動の7.71%に比べてやや低めの水準です。
この3年間の価格上昇率を内訳でみると、初年度が2.46%、2年目が1.17%、3年目が2.05%となっています。

富山県富山市晴海台10-4
このページの情報は広告情報ではありません。過去から現在までにLIFULL HOME'Sに掲載された不動産情報と提携先の地図情報を元に生成した参考情報です。情報更新日: 2026/4/15
※この価格はあくまでも参考情報であり、取引価格として適正であることを保証するものではありません。
また、販売情報とは異なります。詳しくは参考価格算出ロジックをご確認ください。
掲載履歴とは、過去LIFULL HOME'Sに掲載された時点の情報を履歴として一覧にまとめたものです。
※最終的な成約賃料とは異なる場合があります。また、将来の募集賃料を保証するものではありません。
| 年月 | 賃料 | 専有面積 間取り | 所在階 |
|---|---|---|---|
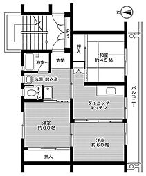
| 2026年3月 | 4.0万円 | 53.96m² 3DK | 1階 |
| 2026年3月 | 3.9万円 | 53.96m² 3DK | 1階 |
| 2026年3月 | 4.3万円 | 53.96m² 3DK | 2階 |
| 2026年2月 | 4.0万円 | 53.96m² 3DK | 1階 |
| 2026年2月 | 4.0万円 | 53.96m² 3DK | 1階 |
| 2026年2月 | 4.4万円 | 53.96m² 3DK | 2階 |
| 2026年2月 | 3.5万円 | 53.96m² 3DK | 4階 |
| 2026年1月 | 3.9万円 | 53.96m² 3DK | 1階 |
| 2026年1月 | 3.9万円 | 53.96m² 3DK | 1階 |
| 2026年1月 | 4.3万円 | 53.96m² 3DK | 2階 |
| 2026年1月 | 3.4万円 | 53.96m² 3DK | 4階 |
| 2025年12月 | 3.6万円 | 53.96m² 3DK | 1階 |
| 2025年12月 | 3.6万円 | 53.96m² 3DK | 1階 |
| 2025年12月 | 4.0万円 | 53.96m² 3DK | 2階 |
| 2025年12月 | 3.5万円 | 53.96m² 3DK | 4階 |
| 2025年11月 | 3.8万円 | 53.96m² 3DK | 1階 |
| 2025年11月 | 3.8万円 | 53.96m² 3DK | 1階 |
| 2025年11月 | 4.2万円 | 53.96m² 3DK | 2階 |
| 2025年10月 | 3.8万円 | 53.96m² 3DK | 1階 |
| 2025年10月 | 3.8万円 | 53.96m² 3DK | 1階 |
| 2025年10月 | 3.8万円 | 53.96m² 3DK | 2階 |
| 2025年10月 | 4.2万円 | 53.96m² 3DK | 2階 |
| 2025年9月 | 3.7万円 | 53.96m² 3DK | 1階 |
| 2025年9月 | 4.2万円 | 53.96m² 3DK | 2階 |
| 2025年8月 | 3.7万円 | 53.96m² 3DK | 1階 |
| 2025年7月 | 3.7万円 | 53.96m² 3DK | 1階 |
| 2025年7月 | 4.0万円 | 53.96m² 3DK | 2階 |
| 2025年7月 | 3.6万円 | 53.96m² 3DK | 3階 |
| 2025年6月 | 3.7万円 | 53.96m² 3DK | 1階 |
| 2025年6月 | 4.0万円 | 53.96m² 3DK | 2階 |
| 2025年6月 | 3.6万円 | 53.96m² 3DK | 3階 |
| 2025年5月 | 3.7万円 | 53.96m² 3DK | 1階 |
| 2025年5月 | 4.0万円 | 53.96m² 3DK | 2階 |
| 2025年5月 | 3.6万円 | 53.96m² 3DK | 3階 |
| 2025年4月 | 3.7万円 | 53.96m² 3DK | 1階 |
| 2025年4月 | 4.0万円 | 53.96m² 3DK | 2階 |
| 2025年4月 | 3.6万円 | 53.96m² 3DK | 3階 |
| 2025年4月 | 3.2万円 | 53.96m² 3DK | 4階 |
| 2025年4月 | 3.1万円 | 53.96m² 3DK | 5階 |
| 2025年3月 | 3.7万円 | 53.96m² 3DK | 1階 |
| 2025年3月 | 4.0万円 | 53.96m² 3DK | 2階 |
| 2025年3月 | 3.6万円 | 53.96m² 3DK | 3階 |
| 2025年3月 | 3.2万円 | 53.96m² 3DK | 4階 |
| 2025年3月 | 3.2万円 | 53.96m² 3DK | 4階 |
| 2025年3月 | 3.1万円 | 53.96m² 3DK | 5階 |
一般的なファミリー向けの中古マンション価格(※)の3ヶ月ごとの推移です。
富山市の価格推移
富山県の価格推移
富山市の標準的な物件の価格は直近の3年間で5.68%程度上昇しています。
これは富山市のある富山県の変動の7.71%に比べてやや低めの水準です。
この3年間の価格上昇率を内訳でみると、初年度が2.46%、2年目が1.17%、3年目が2.05%となっています。
一般的なファミリー向けの賃貸マンションの賃料(※)の3ヶ月ごとの推移です。
富山市の賃料推移
富山県の賃料推移
富山市の標準的な物件の賃料は直近の3年間で3.27%程度上昇しています。
これは富山市のある富山県の変動の3.35%に比べて同程度の水準です。
この3年間の価格上昇率を内訳でみると、初年度が-0.05%、2年目が1.54%、3年目が1.79%となっています。
この周辺地域のマンションにかかる固定資産税の概算をシミュレーションすることができます。
下記項目を入力して年間の固定資産税額を確かめましょう。
LIFULL HOME’Sで7日以内に掲載が開始された物件です。
所有している物件の売却をお考えの方は、ホームズマンション売却や不動産売却査定サービスから複数の会社に一括で売却査定を依頼することができます。
LIFULL HOME'Sは「不動産会社」ではなく「情報掲載サイト」です
webでの訂正依頼
掲載情報の誤りを指摘・訂正の依頼をする