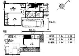
日野市東豊田1丁目
5,580万円
豊田駅徒歩12分
103.09m²
| 築3年 | 4,080万円 |
|---|---|
| 築5年 | 3,994万円 |
| 築10年 | 3,779万円 |
| 築15年 | 3,563万円 |
| 築20年 | 3,348万円 |
| 40m² | 2,158万円 |
|---|---|
| 60m² | 3,238万円 |
| 70m² | 3,779万円 |
| 100m² | 5,400万円 |
| 120m² | 6,480万円 |
家計に無理なく家を購入できる予算は?
おうち予算シミュレーションLIFULL HOME’Sで7日以内に掲載が開始された物件です。
部屋情報や過去の掲載履歴を見ることができる物件です。
| 築3年 | 17万円 |
|---|---|
| 築5年 | 17万円 |
| 築10年 | 16万円 |
| 築15年 | 16万円 |
| 築20年 | 15万円 |
| 20m² | 5万円 |
|---|---|
| 40m² | 10万円 |
| 60m² | 14万円 |
| 70m² | 16万円 |
| 100m² | 23万円 |
LIFULL HOME’Sで7日以内に掲載が開始された物件です。
部屋情報や過去の掲載履歴を見ることができる物件です。
| 賃貸マンション |
|---|
21 件 |
| 購入可能なマンション |
|---|
1 件 |
| 購入可能な一戸建て |
|---|
37 件 |