直近3年間の推移
水戸市の標準的な物件の価格は直近の3年間で11.63%程度上昇しています。
これは水戸市のある茨城県の変動の12.03%に比べて同程度の水準です。
この3年間の価格上昇率を内訳でみると、初年度が8.55%、2年目が0.11%、3年目が2.98%となっています。

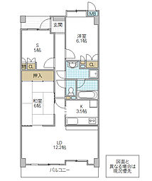
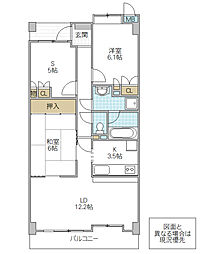
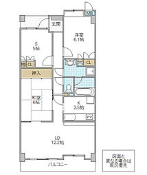
茨城県水戸市新荘3丁目5-2
このページの情報は広告情報ではありません。過去から現在までにLIFULL HOME'Sに掲載された不動産情報と提携先の地図情報を元に生成した参考情報です。情報更新日: 2026/4/15
掲載履歴とは、過去LIFULL HOME'Sに掲載された時点の情報を履歴として一覧にまとめたものです。
※最終的な成約価格とは異なる場合があります。また、将来の売出し価格を保証するものではありません。
| 年月 | 価格 | 専有面積 間取り | 所在階 |
|---|---|---|---|
| 2020年9月 | 1,550万円 | 77.93m² 3LDK | 4階 |
| 2020年8月 | 1,550万円 | 77.93m² 3LDK | 4階 |
| 2020年7月 | 1,550万円 | 77.93m² 3LDK | 4階 |
| 2020年6月 | 1,550万円 | 77.93m² 3LDK | 4階 |
| 2020年2月 | 1,480万円 | 71.49m² 2SLDK | 5階 |
| 2020年1月 | 1,480万円 | 71.49m² 2SLDK | 5階 |
| 2019年12月 | 1,480万円 | 71.49m² 2SLDK | 5階 |
| 2019年11月 | 1,480万円 | 71.49m² 2SLDK | 5階 |
| 2019年10月 | 1,550万円 | 71.49m² 2SLDK | 5階 |
| 2019年9月 | 1,550万円 | 71.49m² 2SLDK | 5階 |
掲載履歴とは、過去LIFULL HOME'Sに掲載された時点の情報を履歴として一覧にまとめたものです。
※最終的な成約賃料とは異なる場合があります。また、将来の募集賃料を保証するものではありません。
| 年月 | 賃料 | 専有面積 間取り | 所在階 |
|---|---|---|---|
| 2026年3月 | 11.0万円 | 67.47m² 2SLDK | 4階 |
| 2026年2月 | 12.0万円 | 67.47m² 2SLDK | 4階 |
| 2026年1月 | 12.0万円 | 67.47m² 2SLDK | 4階 |
| 2025年12月 | 12.0万円 | 67.47m² 2SLDK | 4階 |
| 2025年11月 | 12.0万円 | 67.47m² 2SLDK | 4階 |
| 2025年10月 | 12.0万円 | 67.47m² 2SLDK | 4階 |
| 2025年9月 | 12.0万円 | 67.47m² 2SLDK | 4階 |
| 2025年8月 | 12.0万円 | 67.47m² 2SLDK | 4階 |
| 2025年7月 | 12.0万円 | 67.47m² 2SLDK | 4階 |
| 2025年6月 | 12.0万円 | 67.47m² 2SLDK | 4階 |
| 2025年3月 | 11.5万円 | 75.27m² 3LDK | 3階 |
| 2025年3月 | 12.1万円 | 67.47m² 2SLDK | 6階 |
| 2025年3月 | 10.8万円 | 72.89m² 3LDK | 8階 |
| 2025年2月 | 11.5万円 | 75.27m² 3LDK | 3階 |
| 2025年2月 | 12.1万円 | 67.47m² 2SLDK | 6階 |
| 2025年2月 | 10.8万円 | 72.89m² 3LDK | 8階 |
| 2025年1月 | 11.5万円 | 75.27m² 3LDK | 3階 |
| 2025年1月 | 12.1万円 | 67.47m² 2SLDK | 6階 |
| 2025年1月 | 12.8万円 | 72.89m² 3LDK | 8階 |
| 2024年12月 | 11.5万円 | 75.27m² 3LDK | 3階 |
| 2024年12月 | 12.1万円 | 67.47m² 2SLDK | 6階 |
| 2024年12月 | 12.8万円 | 72.89m² 3LDK | 8階 |
| 2024年11月 | 11.5万円 | 75.27m² 3LDK | 3階 |
| 2024年11月 | 12.1万円 | 67.47m² 2SLDK | 6階 |
| 2024年11月 | 12.8万円 | 72.89m² 3LDK | 8階 |
| 2024年10月 | 11.5万円 | 75.27m² 3LDK | 3階 |
| 2024年10月 | 12.1万円 | 67.47m² 2SLDK | 6階 |
| 2024年10月 | 12.8万円 | 72.89m² 3LDK | 8階 |
| 2024年9月 | 11.5万円 | 75.27m² 3LDK | 3階 |
| 2024年9月 | 12.1万円 | 67.47m² 2SLDK | 6階 |
| 2024年9月 | 12.8万円 | 72.89m² 3LDK | 8階 |
| 2024年8月 | 11.5万円 | 75.0m² 3LDK | 3階 |
| 2024年8月 | 12.8万円 | 72.0m² 3LDK | 8階 |
| 2024年7月 | 11.5万円 | 75.0m² 3LDK | 3階 |
| 2024年7月 | 12.8万円 | 72.0m² 3LDK | 8階 |
| 2024年6月 | 11.5万円 | 75.0m² 3LDK | 3階 |
| 2024年6月 | 12.8万円 | 72.0m² 3LDK | 8階 |
| 2024年5月 | 11.5万円 | 75.0m² 3LDK | 3階 |
| 2024年5月 | 12.8万円 | 72.0m² 3LDK | 8階 |
| 2024年4月 | 11.5万円 | 75.0m² 3LDK | 3階 |
| 2024年4月 | 12.8万円 | 72.0m² 3LDK | 8階 |
| 2024年3月 | 11.5万円 | 75.0m² 3LDK | 3階 |
| 2024年3月 | 12.8万円 | 72.0m² 3LDK | 8階 |
| 2024年2月 | 11.5万円 | 75.0m² 3LDK | 3階 |
| 2024年2月 | 12.8万円 | 72.0m² 3LDK | 8階 |
| 2024年1月 | 11.5万円 | 75.0m² 3LDK | 3階 |
| 2024年1月 | 13.8万円 | 72.0m² 3LDK | 8階 |
| 2023年12月 | 13.8万円 | 72.0m² 3LDK | 8階 |
| 2023年11月 | 13.8万円 | 72.0m² 3LDK | 8階 |
| 2023年11月 | 11.0万円 | 71.0m² 3LDK | 8階 |
| 2023年10月 | 13.8万円 | 72.0m² 3LDK | 8階 |
| 2023年10月 | 11.0万円 | 71.0m² 3LDK | 8階 |
| 2023年9月 | 13.8万円 | 72.0m² 3LDK | 8階 |
| 2023年9月 | 11.0万円 | 71.0m² 3LDK | 8階 |
| 2023年8月 | 13.8万円 | 72.0m² 3LDK | 8階 |
| 2023年8月 | 11.0万円 | 71.0m² 3LDK | 8階 |
| 2023年7月 | 13.8万円 | 72.0m² 3LDK | 8階 |
| 2023年7月 | 11.0万円 | 71.0m² 3LDK | 8階 |
| 2023年6月 | 13.8万円 | 72.0m² 3LDK | 8階 |
| 2023年6月 | 11.0万円 | 71.0m² 3LDK | 8階 |
| 2023年5月 | 11.0万円 | 71.0m² 3LDK | 8階 |
| 2023年4月 | 13.8万円 | 72.0m² 3LDK | 8階 |
| 2023年4月 | 11.0万円 | 71.0m² 3LDK | 8階 |
| 2023年3月 | 13.8万円 | 72.0m² 3LDK | 8階 |
| 2023年2月 | 12.0万円 | 67.0m² 2SLDK | 6階 |
| 2023年1月 | 12.0万円 | 67.0m² 2SLDK | 6階 |
| 2022年12月 | 12.0万円 | 67.0m² 2SLDK | 6階 |
| 2022年11月 | 12.0万円 | 67.0m² 2SLDK | 6階 |
| 2022年10月 | 12.0万円 | 67.0m² 2SLDK | 6階 |
| 2022年9月 | 12.0万円 | 67.0m² 2SLDK | 6階 |
| 2022年2月 | 11.0万円 | 77.93m² 3LDK | 3階 |
| 2021年3月 | 11.5万円 | 72.89m² 2SLDK | 4階 |
| 2021年2月 | 11.0万円 | 91.41m² 4LDK | 1階 |
| 2021年2月 | 11.5万円 | 72.89m² 2SLDK | 4階 |
| 2021年1月 | 11.0万円 | 91.41m² 4LDK | 1階 |
| 2020年12月 | 11.0万円 | 91.41m² 4LDK | 1階 |
| 2020年11月 | 11.0万円 | 91.41m² 4LDK | 1階 |
| 2020年10月 | 11.0万円 | 91.41m² 4LDK | 1階 |
| 2020年9月 | 11.0万円 | 91.41m² 4LDK | 1階 |
| 2020年8月 | 11.0万円 | 91.41m² 4LDK | 1階 |
| 2020年7月 | 11.0万円 | 91.41m² 4LDK | 1階 |
| 2020年6月 | 11.0万円 | 91.41m² 4LDK | 1階 |
| 2020年5月 | 11.0万円 | 91.41m² 4LDK | 1階 |
| 2020年4月 | 11.0万円 | 91.41m² 4LDK | 1階 |
| 2020年3月 | 11.0万円 | 91.41m² 4LDK | 1階 |
| 2020年2月 | 11.0万円 | 91.41m² 4LDK | 1階 |
| 2019年12月 | 11.0万円 | 77.93m² 3LDK | 4階 |
| 2019年12月 | 11.0万円 | 71.49m² 3LDK | 8階 |
| 2019年11月 | 11.0万円 | 77.93m² 3LDK | 4階 |
| 2019年11月 | 11.0万円 | 71.49m² 3LDK | 8階 |
| 2019年10月 | 11.0万円 | 77.93m² 3LDK | 4階 |
| 2019年10月 | 11.0万円 | 71.49m² 3LDK | 8階 |
| 2019年9月 | 11.0万円 | 77.93m² 3LDK | 4階 |
| 2019年9月 | 11.0万円 | 71.49m² 3LDK | 8階 |
| 2019年8月 | 11.0万円 | 77.93m² 3LDK | 4階 |
| 2019年8月 | 11.0万円 | 71.49m² 3LDK | 8階 |
| 2019年7月 | 11.0万円 | 77.93m² 3LDK | 4階 |
| 2019年7月 | 11.0万円 | 71.49m² 3LDK | 8階 |
| 2019年6月 | 11.0万円 | 77.93m² 3LDK | 4階 |
| 2019年6月 | 11.0万円 | 71.49m² 3LDK | 8階 |
| 2019年5月 | 11.0万円 | 77.93m² 3LDK | 4階 |
| 2019年5月 | 11.0万円 | 71.49m² 3LDK | 8階 |
| 2019年4月 | 11.0万円 | 77.93m² 3LDK | 4階 |
| 2019年4月 | 11.0万円 | 71.49m² 3LDK | 8階 |
| 2019年3月 | 11.0万円 | 77.93m² 3LDK | 4階 |
| 2019年3月 | 11.5万円 | 71.49m² 3LDK | 8階 |
| 2019年2月 | 11.0万円 | 77.93m² 3LDK | 4階 |
| 2019年2月 | 11.5万円 | 71.49m² 3LDK | 8階 |
| 2019年1月 | 11.0万円 | 77.93m² 3LDK | 4階 |
| 2019年1月 | 11.5万円 | 71.49m² 3LDK | 8階 |
| 2018年12月 | 11.0万円 | 77.93m² 3LDK | 4階 |
| 2018年12月 | 12.0万円 | 72.89m² 2SLDK | 6階 |
| 2018年12月 | 11.5万円 | 71.49m² 3LDK | 8階 |
| 2018年11月 | 11.0万円 | 77.93m² 3LDK | 4階 |
| 2018年11月 | 12.0万円 | 72.89m² 2SLDK | 6階 |
| 2018年11月 | 11.5万円 | 71.49m² 3LDK | 8階 |
| 2018年10月 | 11.0万円 | 77.93m² 3LDK | 4階 |
| 2018年10月 | 12.0万円 | 72.89m² 2SLDK | 6階 |
| 2018年10月 | 11.5万円 | 71.49m² 3LDK | 8階 |
| 2018年9月 | 11.0万円 | 77.93m² 3LDK | 4階 |
| 2018年9月 | 12.0万円 | 72.89m² 2SLDK | 6階 |
| 2018年9月 | 11.5万円 | 71.49m² 3LDK | 8階 |
| 2018年8月 | 11.0万円 | 77.93m² 3LDK | 3階 |
| 2018年8月 | 11.0万円 | 77.93m² 3LDK | 4階 |
| 2018年8月 | 12.0万円 | 72.89m² 2SLDK | 6階 |
| 2018年8月 | 11.5万円 | 71.49m² 3LDK | 8階 |
| 2018年7月 | 11.0万円 | 77.93m² 3LDK | 3階 |
| 2018年7月 | 11.0万円 | 77.93m² 3LDK | 4階 |
| 2018年7月 | 12.0万円 | 72.89m² 2SLDK | 6階 |
| 2018年7月 | 11.5万円 | 71.49m² 3LDK | 8階 |
| 2018年6月 | 11.0万円 | 77.93m² 3LDK | 3階 |
| 2018年6月 | 11.0万円 | 77.93m² 3LDK | 4階 |
| 2018年6月 | 12.0万円 | 72.89m² 2SLDK | 6階 |
| 2018年6月 | 11.5万円 | 71.49m² 3LDK | 8階 |
| 2018年5月 | 11.0万円 | 77.93m² 3LDK | 3階 |
| 2018年5月 | 11.0万円 | 77.93m² 3LDK | 4階 |
| 2018年5月 | 12.0万円 | 72.89m² 2SLDK | 6階 |
| 2018年5月 | 11.5万円 | 71.49m² 3LDK | 8階 |
| 2018年4月 | 11.0万円 | 77.93m² 3LDK | 4階 |
| 2018年4月 | 12.0万円 | 72.89m² 2SLDK | 6階 |
| 2018年4月 | 11.5万円 | 71.49m² 3LDK | 8階 |
| 2018年3月 | 11.5万円 | 72.89m² 2SLDK | 4階 |
| 2018年3月 | 12.0万円 | 72.89m² 2SLDK | 6階 |
| 2018年3月 | 11.5万円 | 71.49m² 3LDK | 8階 |
| 2018年2月 | 11.5万円 | 72.89m² 2SLDK | 4階 |
| 2018年2月 | 12.0万円 | 72.89m² 2SLDK | 6階 |
| 2018年1月 | 11.5万円 | 72.89m² 2SLDK | 4階 |
| 2018年1月 | 12.0万円 | 67.47m² 2SLDK | 6階 |
| 2017年12月 | 11.5万円 | 72.89m² 2SLDK | 4階 |
| 2017年12月 | 12.0万円 | 72.89m² 2SLDK | 6階 |
| 2017年11月 | 11.5万円 | 72.89m² 2SLDK | 4階 |
| 2017年11月 | 12.0万円 | 72.89m² 2SLDK | 6階 |
| 2017年9月 | 12.0万円 | 72.89m² 2SLDK | 6階 |
| 2017年8月 | 12.0万円 | 67.47m² 2SLDK | 6階 |
| 2017年7月 | 12.0万円 | 67.47m² 2SLDK | 6階 |
| 2017年6月 | 12.0万円 | 67.47m² 2SLDK | 6階 |
| 2017年5月 | 12.0万円 | 67.47m² 2SLDK | 6階 |
| 2017年4月 | 12.0万円 | 67.47m² 2SLDK | 6階 |
| 2017年3月 | 12.0万円 | 67.47m² 2SLDK | 6階 |
| 2016年9月 | 11.5万円 | 72.89m² 2SLDK | 4階 |
| 2016年8月 | 12.0万円 | 77.93m² 3LDK | 3階 |
| 2016年8月 | 11.5万円 | 72.89m² 2SLDK | 4階 |
| 2016年7月 | 12.0万円 | 77.93m² 3LDK | 3階 |
| 2016年7月 | 11.0万円 | 71.49m² 2SLDK | 5階 |
| 2016年6月 | 11.0万円 | 71.49m² 2SLDK | 5階 |
| 2016年5月 | 11.0万円 | 71.49m² 2SLDK | 5階 |
| 2016年4月 | 11.0万円 | 71.49m² 2SLDK | 5階 |
| 2016年3月 | 11.0万円 | 71.49m² 2SLDK | 5階 |
| 2016年2月 | 11.0万円 | 91.41m² 4LDK | 1階 |
| 2015年8月 | 11.5万円 | 72.89m² 2SLDK | 4階 |
| 2015年7月 | 11.5万円 | 72.89m² 2SLDK | 4階 |
| 2015年6月 | 11.5万円 | 72.89m² 2SLDK | 4階 |
| 2015年5月 | 11.5万円 | 72.89m² 2SLDK | 4階 |
| 2014年4月 | 12.0万円 | 71.49m² 2SLDK | 5階 |
| 2014年3月 | 12.0万円 | 71.49m² 2SLDK | 5階 |
| 2014年3月 | 12.0万円 | 67.47m² 2SLDK | 6階 |
| 2014年1月 | 12.0万円 | 71.49m² 2SLDK | 5階 |
| 2013年12月 | 12.0万円 | 71.49m² 2SLDK | 5階 |
| 2013年11月 | 12.0万円 | 71.49m² 2SLDK | 5階 |
| 2013年10月 | 12.0万円 | 71.49m² 2SLDK | 5階 |
| 2013年9月 | 12.0万円 | 71.49m² 2SLDK | 5階 |
| 2013年8月 | 12.0万円 | 71.49m² 2SLDK | 5階 |
| 2013年7月 | 12.0万円 | 71.49m² 2SLDK | 5階 |
| 2013年6月 | 12.0万円 | 75.27m² 3LDK | 3階 |
| 2013年6月 | 12.0万円 | 71.49m² 2SLDK | 5階 |
| 2013年5月 | 12.0万円 | 75.27m² 3LDK | 3階 |
| 2013年5月 | 12.0万円 | 71.49m² 2SLDK | 5階 |
| 2013年4月 | 12.0万円 | 75.27m² 3LDK | 3階 |
| 2013年4月 | 12.0万円 | 71.49m² 2SLDK | 5階 |
| 2013年3月 | 12.0万円 | 75.27m² 3LDK | 3階 |
| 2013年3月 | 12.0万円 | 71.49m² 2SLDK | 5階 |
| 2013年2月 | 12.0万円 | 71.49m² 2SLDK | 5階 |
| 2013年1月 | 12.0万円 | 71.49m² 2SLDK | 5階 |
| 2012年12月 | 12.0万円 | 71.49m² 2SLDK | 5階 |
| 2012年11月 | 12.0万円 | 71.49m² 2SLDK | 5階 |
| 2012年10月 | 12.0万円 | 77.93m² 3LDK | 3階 |
| 2012年10月 | 12.0万円 | 71.49m² 2SLDK | 5階 |
| 2012年9月 | 12.0万円 | 71.49m² 2SLDK | 5階 |
| 2012年8月 | 12.0万円 | 71.49m² 2SLDK | 5階 |
| 2012年7月 | 12.0万円 | 71.49m² 2SLDK | 5階 |
| 2012年6月 | 12.0万円 | 71.49m² 2SLDK | 5階 |
| 2012年5月 | 12.0万円 | 71.49m² 2SLDK | 5階 |
| 2012年4月 | 12.0万円 | 71.49m² 2SLDK | 5階 |
| 2012年3月 | 12.0万円 | 71.49m² 2SLDK | 5階 |
| 2012年3月 | 12.0万円 | 71.49m² 3LDK | 8階 |
| 2012年2月 | 12.0万円 | 71.49m² 2SLDK | 5階 |
| 2012年2月 | 12.0万円 | 67.47m² 2SLDK | 6階 |
| 2012年2月 | 12.0万円 | 71.49m² 3LDK | 8階 |
| 2012年1月 | 12.0万円 | 71.49m² 2SLDK | 5階 |
| 2012年1月 | 12.0万円 | 67.47m² 2SLDK | 6階 |
| 2012年1月 | 12.0万円 | 71.49m² 3LDK | 8階 |
| 2011年12月 | 12.0万円 | 71.49m² 2SLDK | 5階 |
| 2011年12月 | 12.0万円 | 71.49m² 3LDK | 8階 |
| 2011年11月 | 12.0万円 | 71.49m² 2SLDK | 5階 |
| 2011年11月 | 12.0万円 | 71.49m² 3LDK | 8階 |
| 2011年10月 | 12.0万円 | 71.49m² 2SLDK | 5階 |
| 2011年9月 | 12.0万円 | 71.49m² 2SLDK | 5階 |
| 2011年8月 | 11.0万円 | 91.41m² 4LDK | 1階 |
| 2011年8月 | 12.0万円 | 71.49m² 2SLDK | 5階 |
| 2011年7月 | 11.0万円 | 91.41m² 4LDK | 1階 |
| 2011年7月 | 12.0万円 | 71.49m² 2SLDK | 5階 |
| 2011年6月 | 12.0万円 | 71.49m² 2SLDK | 5階 |
| 2011年5月 | 12.0万円 | 71.49m² 2SLDK | 5階 |
| 2011年4月 | 12.0万円 | 71.49m² 2SLDK | 5階 |
| 2011年3月 | 12.0万円 | 71.49m² 2SLDK | 5階 |
| 2011年2月 | 12.0万円 | 71.49m² 2SLDK | 5階 |
| 2011年2月 | 13.8万円 | 72.89m² 3LDK | 8階 |
| 2011年1月 | 12.0万円 | 71.49m² 2SLDK | 5階 |
| 2011年1月 | 13.8万円 | 72.89m² 3LDK | 8階 |
| 2010年12月 | 12.0万円 | 71.49m² 2SLDK | 5階 |
| 2010年12月 | 13.8万円 | 72.89m² 3LDK | 8階 |
| 2010年11月 | 12.0万円 | 71.49m² 2SLDK | 5階 |
| 2010年11月 | 13.8万円 | 72.89m² 3LDK | 8階 |
| 2010年10月 | 12.0万円 | 77.93m² 3LDK | 3階 |
| 2010年10月 | 12.0万円 | 71.49m² 2SLDK | 5階 |
| 2010年10月 | 13.8万円 | 72.89m² 3LDK | 8階 |
| 2010年9月 | 12.0万円 | 77.93m² 3LDK | 3階 |
| 2010年9月 | 12.0万円 | 71.49m² 2SLDK | 5階 |
| 2010年9月 | 13.8万円 | 72.89m² 3LDK | 8階 |
| 2010年8月 | 12.0万円 | 71.49m² 2SLDK | 5階 |
| 2010年7月 | 11.5万円 | 72.89m² 2SLDK | 4階 |
| 2010年7月 | 12.0万円 | 71.49m² 2SLDK | 5階 |
| 2010年6月 | 12.0万円 | 71.49m² 2SLDK | 5階 |
| 2010年5月 | 12.0万円 | 71.49m² 2SLDK | 5階 |
| 2010年4月 | 12.0万円 | 71.49m² 2SLDK | 5階 |
| 2010年3月 | 12.0万円 | 71.49m² 2SLDK | 5階 |
| 2010年2月 | 12.5万円 | 71.49m² 2SLDK | 5階 |
| 2010年1月 | 12.0万円 | 71.49m² 2SLDK | 5階 |
| 2009年12月 | 12.0万円 | 71.49m² 2SLDK | 5階 |
| 2009年11月 | 12.0万円 | 71.49m² 2SLDK | 5階 |
| 2009年1月 | 11.5万円 | 72.89m² 2SLDK | 4階 |
一般的なファミリー向けの中古マンション価格(※)の3ヶ月ごとの推移です。
水戸市の価格推移
茨城県の価格推移
水戸市の標準的な物件の価格は直近の3年間で11.63%程度上昇しています。
これは水戸市のある茨城県の変動の12.03%に比べて同程度の水準です。
この3年間の価格上昇率を内訳でみると、初年度が8.55%、2年目が0.11%、3年目が2.98%となっています。
一般的なファミリー向けの賃貸マンションの賃料(※)の3ヶ月ごとの推移です。
水戸市の賃料推移
茨城県の賃料推移
水戸市の標準的な物件の賃料は直近の3年間で3.13%程度上昇しています。
これは水戸市のある茨城県の変動の3.7%に比べて同程度の水準です。
この3年間の価格上昇率を内訳でみると、初年度が0.69%、2年目が0.99%、3年目が1.46%となっています。
この周辺地域のマンションにかかる固定資産税の概算をシミュレーションすることができます。
下記項目を入力して年間の固定資産税額を確かめましょう。
LIFULL HOME’Sで7日以内に掲載が開始された物件です。
所有している物件の売却をお考えの方は、ホームズマンション売却や不動産売却査定サービスから複数の会社に一括で売却査定を依頼することができます。
LIFULL HOME'Sは「不動産会社」ではなく「情報掲載サイト」です
webでの訂正依頼
掲載情報の誤りを指摘・訂正の依頼をする