直近3年間の推移
名古屋市熱田区の標準的な物件の価格は直近の3年間で6.36%程度上昇しています。
これは名古屋市熱田区のある愛知県の変動の5.08%に比べて同程度の水準です。
この3年間の価格上昇率を内訳でみると、初年度が-0.94%、2年目が1.16%、3年目が6.14%となっています。
このページの情報は広告情報ではありません。過去から現在までにLIFULL HOME'Sに掲載された不動産情報と提携先の地図情報を元に生成した参考情報です。情報更新日: 2026/4/15
掲載履歴とは、過去LIFULL HOME'Sに掲載された時点の情報を履歴として一覧にまとめたものです。
※最終的な成約賃料とは異なる場合があります。また、将来の募集賃料を保証するものではありません。
| 年月 | 賃料 | 専有面積 間取り | 所在階 |
|---|---|---|---|
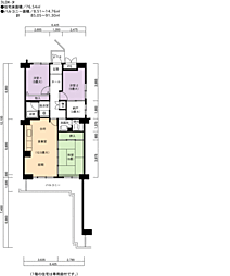
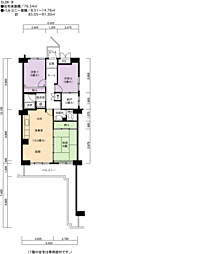
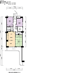
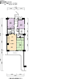
| 2026年4月 | 9.4万円 | 73.54m² 3LDK | 1階 |
| 2026年4月 | 9.8万円 | 73.54m² 3LDK | 2階 |
| 2026年4月 | 10.0万円 | 76.54m² 3LDK | 4階 |
| 2026年4月 | 10.2万円 | 76.54m² 3LDK | 7階 |
| 2026年3月 | 9.3万円 | 73.54m² 3LDK | 1階 |
| 2026年3月 | 9.7万円 | 73.54m² 3LDK | 2階 |
| 2026年3月 | 9.6万円 | 73.08m² 3LDK | 3階 |
| 2026年3月 | 10.0万円 | 76.54m² 3LDK | 4階 |
| 2026年3月 | 9.9万円 | 75.73m² 3LDK | 4階 |
| 2026年3月 | 10.2万円 | 76.54m² 3LDK | 7階 |
| 2026年2月 | 9.3万円 | 73.54m² 3LDK | 1階 |
| 2026年2月 | 10.0万円 | 76.54m² 3LDK | 4階 |
| 2026年2月 | 9.9万円 | 75.73m² 3LDK | 4階 |
| 2026年2月 | 10.2万円 | 76.54m² 3LDK | 7階 |
| 2026年1月 | 9.9万円 | 75.73m² 3LDK | 4階 |
| 2026年1月 | 10.0万円 | 76.54m² 3LDK | 4階 |
| 2026年1月 | 10.2万円 | 76.54m² 3LDK | 7階 |
| 2025年12月 | 9.9万円 | 75.73m² 3LDK | 4階 |
| 2025年12月 | 10.0万円 | 76.54m² 3LDK | 4階 |
| 2025年12月 | 10.2万円 | 76.54m² 3LDK | 7階 |
| 2025年11月 | 9.6万円 | 73.08m² 3LDK | 3階 |
| 2025年11月 | 9.9万円 | 75.73m² 3LDK | 4階 |
| 2025年11月 | 10.2万円 | 76.54m² 3LDK | 7階 |
| 2025年10月 | 9.6万円 | 73.08m² 3LDK | 3階 |
| 2025年10月 | 9.9万円 | 75.73m² 3LDK | 4階 |
| 2025年10月 | 10.2万円 | 76.6m² 3LDK | 6階 |
| 2025年10月 | 10.2万円 | 76.54m² 3LDK | 7階 |
| 2025年9月 | 9.6万円 | 73.08m² 3LDK | 3階 |
| 2025年9月 | 9.9万円 | 75.73m² 3LDK | 4階 |
| 2025年9月 | 10.2万円 | 76.6m² 3LDK | 6階 |
| 2025年9月 | 10.2万円 | 76.54m² 3LDK | 7階 |
| 2025年8月 | 9.6万円 | 73.08m² 3LDK | 3階 |
| 2025年8月 | 9.9万円 | 75.73m² 3LDK | 4階 |
| 2025年7月 | 10.0万円 | 75.73m² 3LDK | 2階 |
| 2025年7月 | 9.6万円 | 73.08m² 3LDK | 3階 |
| 2025年7月 | 9.9万円 | 75.73m² 3LDK | 4階 |
| 2025年7月 | 10.2万円 | 76.54m² 3LDK | 7階 |
| 2025年6月 | 9.6万円 | 73.08m² 3LDK | 3階 |
| 2025年6月 | 9.9万円 | 73.08m² 3LDK | 4階 |
| 2025年5月 | 9.6万円 | 73.08m² 3LDK | 3階 |
| 2025年5月 | 9.9万円 | 73.08m² 3LDK | 4階 |
| 2025年4月 | 9.9万円 | 73.08m² 3LDK | 4階 |
| 2025年4月 | 10.0万円 | 76.54m² 3LDK | 4階 |
| 2025年3月 | 9.9万円 | 73.08m² 3LDK | 4階 |
| 2025年3月 | 10.0万円 | 76.54m² 3LDK | 4階 |
| 2025年2月 | 9.3万円 | 73.54m² 3LDK | 1階 |
| 2025年2月 | 10.0万円 | 76.54m² 3LDK | 4階 |
| 2025年1月 | 9.3万円 | 73.54m² 3LDK | 1階 |
| 2025年1月 | 10.0万円 | 76.54m² 3LDK | 4階 |
| 2024年12月 | 9.3万円 | 73.54m² 3LDK | 1階 |
| 2024年12月 | 10.0万円 | 76.54m² 3LDK | 4階 |
| 2024年11月 | 9.3万円 | 73.54m² 3LDK | 1階 |
| 2024年11月 | 10.0万円 | 76.54m² 3LDK | 4階 |
| 2024年11月 | 8.1万円 | 76.6m² 3LDK | 6階 |
| 2024年10月 | 9.3万円 | 73.54m² 3LDK | 1階 |
| 2024年10月 | 10.0万円 | 76.54m² 3LDK | 4階 |
| 2024年10月 | 8.1万円 | 76.6m² 3LDK | 6階 |
| 2024年9月 | 9.3万円 | 73.54m² 3LDK | 1階 |
| 2024年9月 | 9.9万円 | 73.08m² 3LDK | 4階 |
| 2024年9月 | 10.0万円 | 76.54m² 3LDK | 4階 |
| 2024年9月 | 10.0万円 | 75.0m² 3LDK | 5階 |
| 2024年9月 | 8.1万円 | 76.6m² 3LDK | 6階 |
| 2024年8月 | 9.3万円 | 73.0m² 3LDK | 1階 |
| 2024年8月 | 9.6万円 | 73.0m² 3LDK | 3階 |
| 2024年8月 | 9.9万円 | 73.0m² 3LDK | 4階 |
| 2024年8月 | 10.0万円 | 76.0m² 3LDK | 4階 |
| 2024年8月 | 10.0万円 | 75.0m² 3LDK | 5階 |
| 2024年8月 | 8.1万円 | 76.0m² 3LDK | 6階 |
| 2024年7月 | 9.3万円 | 73.0m² 3LDK | 1階 |
| 2024年7月 | 8.0万円 | 76.0m² 3LDK | 2階 |
| 2024年7月 | 9.6万円 | 73.0m² 3LDK | 3階 |
| 2024年7月 | 10.0万円 | 76.0m² 3LDK | 4階 |
| 2024年7月 | 9.9万円 | 73.0m² 3LDK | 4階 |
| 2024年7月 | 10.0万円 | 75.0m² 3LDK | 5階 |
| 2024年7月 | 10.1万円 | 76.0m² 3LDK | 6階 |
| 2024年6月 | 9.3万円 | 73.0m² 3LDK | 1階 |
| 2024年6月 | 8.0万円 | 76.0m² 3LDK | 2階 |
| 2024年6月 | 9.6万円 | 73.0m² 3LDK | 3階 |
| 2024年6月 | 10.0万円 | 76.0m² 3LDK | 4階 |
| 2024年6月 | 9.9万円 | 73.0m² 3LDK | 4階 |
| 2024年6月 | 10.0万円 | 75.0m² 3LDK | 5階 |
| 2024年6月 | 10.1万円 | 76.0m² 3LDK | 6階 |
| 2024年5月 | 9.3万円 | 73.0m² 3LDK | 1階 |
| 2024年5月 | 10.0万円 | 76.0m² 3LDK | 2階 |
| 2024年5月 | 9.6万円 | 73.0m² 3LDK | 3階 |
| 2024年5月 | 9.9万円 | 73.0m² 3LDK | 4階 |
| 2024年5月 | 10.0万円 | 76.0m² 3LDK | 4階 |
| 2024年5月 | 10.1万円 | 76.0m² 3LDK | 6階 |
| 2024年4月 | 10.0万円 | 76.0m² 3LDK | 2階 |
| 2024年4月 | 9.6万円 | 73.0m² 3LDK | 3階 |
| 2024年4月 | 9.9万円 | 73.0m² 3LDK | 4階 |
| 2024年4月 | 10.0万円 | 76.0m² 3LDK | 4階 |
| 2024年4月 | 10.0万円 | 76.0m² 3LDK | 5階 |
| 2024年4月 | 10.1万円 | 76.0m² 3LDK | 6階 |
| 2024年3月 | 10.0万円 | 76.0m² 3LDK | 2階 |
| 2024年3月 | 9.6万円 | 73.0m² 3LDK | 3階 |
| 2024年3月 | 10.0万円 | 76.0m² 3LDK | 4階 |
| 2024年3月 | 9.9万円 | 73.0m² 3LDK | 4階 |
| 2024年3月 | 10.0万円 | 76.0m² 3LDK | 5階 |
| 2024年3月 | 9.8万円 | 73.0m² 3LDK | 5階 |
| 2024年3月 | 10.1万円 | 76.0m² 3LDK | 6階 |
| 2024年2月 | 10.0万円 | 76.0m² 3LDK | 2階 |
| 2024年2月 | 6.5万円 | 39.0m² 1DK | 3階 |
| 2024年2月 | 9.6万円 | 73.0m² 3LDK | 3階 |
| 2024年2月 | 9.9万円 | 73.0m² 3LDK | 3階 |
| 2024年2月 | 10.0万円 | 76.0m² 3LDK | 4階 |
| 2024年2月 | 10.8万円 | 76.0m² 3LDK | 4階 |
| 2024年2月 | 9.8万円 | 73.0m² 3LDK | 5階 |
| 2024年2月 | 10.0万円 | 76.0m² 3LDK | 5階 |
| 2024年2月 | 10.1万円 | 76.0m² 3LDK | 6階 |
| 2024年2月 | 10.1万円 | 76.0m² 3LDK | 7階 |
| 2024年1月 | 10.0万円 | 76.0m² 3LDK | 2階 |
| 2024年1月 | 9.9万円 | 73.0m² 3LDK | 3階 |
| 2024年1月 | 9.6万円 | 73.0m² 3LDK | 3階 |
| 2024年1月 | 10.8万円 | 76.0m² 3LDK | 4階 |
| 2024年1月 | 9.8万円 | 73.0m² 3LDK | 5階 |
| 2024年1月 | 10.1万円 | 76.0m² 3LDK | 6階 |
| 2024年1月 | 10.1万円 | 76.0m² 3LDK | 7階 |
| 2023年12月 | 10.0万円 | 76.0m² 3LDK | 2階 |
| 2023年12月 | 9.9万円 | 73.0m² 3LDK | 3階 |
| 2023年12月 | 9.6万円 | 73.0m² 3LDK | 3階 |
| 2023年12月 | 10.8万円 | 76.0m² 3LDK | 4階 |
| 2023年12月 | 7.3万円 | 73.0m² 3LDK | 4階 |
| 2023年12月 | 10.1万円 | 76.0m² 3LDK | 7階 |
| 2023年12月 | 9.1万円 | 73.0m² 3LDK | 7階 |
| 2023年11月 | 10.0万円 | 76.0m² 3LDK | 2階 |
| 2023年11月 | 9.6万円 | 73.0m² 3LDK | 3階 |
| 2023年11月 | 9.9万円 | 73.0m² 3LDK | 3階 |
| 2023年11月 | 9.6万円 | 73.0m² 3LDK | 4階 |
| 2023年11月 | 9.1万円 | 73.0m² 3LDK | 4階 |
| 2023年11月 | 10.8万円 | 76.0m² 3LDK | 4階 |
| 2023年11月 | 10.0万円 | 76.0m² 3LDK | 5階 |
| 2023年11月 | 10.1万円 | 76.0m² 3LDK | 7階 |
| 2023年11月 | 9.1万円 | 73.0m² 3LDK | 7階 |
| 2023年10月 | 9.6万円 | 73.0m² 3LDK | 3階 |
| 2023年10月 | 9.9万円 | 73.0m² 3LDK | 3階 |
| 2023年10月 | 9.6万円 | 73.0m² 3LDK | 4階 |
| 2023年10月 | 9.1万円 | 73.0m² 3LDK | 4階 |
| 2023年10月 | 10.0万円 | 76.0m² 3LDK | 5階 |
| 2023年10月 | 8.1万円 | 76.0m² 3LDK | 6階 |
| 2023年10月 | 10.1万円 | 76.0m² 3LDK | 7階 |
| 2023年10月 | 9.1万円 | 73.0m² 3LDK | 7階 |
| 2023年9月 | 9.6万円 | 73.0m² 3LDK | 3階 |
| 2023年9月 | 9.9万円 | 73.0m² 3LDK | 3階 |
| 2023年9月 | 9.1万円 | 73.0m² 3LDK | 4階 |
| 2023年9月 | 10.0万円 | 76.0m² 3LDK | 5階 |
| 2023年9月 | 10.1万円 | 76.0m² 3LDK | 6階 |
| 2023年9月 | 8.1万円 | 76.0m² 3LDK | 6階 |
| 2023年9月 | 10.1万円 | 76.0m² 3LDK | 7階 |
| 2023年9月 | 9.1万円 | 73.0m² 3LDK | 7階 |
| 2023年8月 | 9.6万円 | 73.0m² 3LDK | 3階 |
| 2023年8月 | 9.9万円 | 73.0m² 3LDK | 3階 |
| 2023年8月 | 9.1万円 | 73.0m² 3LDK | 4階 |
| 2023年8月 | 10.0万円 | 76.0m² 3LDK | 5階 |
| 2023年8月 | 10.1万円 | 76.0m² 3LDK | 6階 |
| 2023年8月 | 10.1万円 | 76.0m² 3LDK | 6階 |
| 2023年8月 | 10.1万円 | 76.0m² 3LDK | 7階 |
| 2023年8月 | 9.1万円 | 73.0m² 3LDK | 7階 |
| 2023年7月 | 9.9万円 | 73.0m² 3LDK | 3階 |
| 2023年7月 | 9.1万円 | 73.0m² 3LDK | 4階 |
| 2023年7月 | 10.8万円 | 76.0m² 3LDK | 4階 |
| 2023年7月 | 10.0万円 | 76.0m² 3LDK | 5階 |
| 2023年7月 | 10.1万円 | 76.0m² 3LDK | 6階 |
| 2023年7月 | 10.1万円 | 76.0m² 3LDK | 6階 |
| 2023年7月 | 10.1万円 | 76.0m² 3LDK | 7階 |
| 2023年7月 | 9.1万円 | 73.0m² 3LDK | 7階 |
| 2023年6月 | 9.3万円 | 73.0m² 3LDK | 1階 |
| 2023年6月 | 9.1万円 | 73.0m² 3LDK | 4階 |
| 2023年6月 | 10.8万円 | 76.0m² 3LDK | 4階 |
| 2023年6月 | 10.3万円 | 73.0m² 3LDK | 5階 |
| 2023年6月 | 10.0万円 | 76.0m² 3LDK | 5階 |
| 2023年6月 | 10.1万円 | 75.0m² 3LDK | 6階 |
| 2023年6月 | 10.1万円 | 76.0m² 3LDK | 6階 |
| 2023年6月 | 10.1万円 | 76.0m² 3LDK | 7階 |
| 2023年5月 | 10.8万円 | 76.0m² 3LDK | 4階 |
| 2023年5月 | 10.3万円 | 73.0m² 3LDK | 5階 |
| 2023年5月 | 10.1万円 | 76.0m² 3LDK | 6階 |
| 2023年5月 | 10.1万円 | 76.0m² 3LDK | 7階 |
| 2023年4月 | 9.1万円 | 73.0m² 3LDK | 2階 |
| 2023年4月 | 10.8万円 | 76.0m² 3LDK | 4階 |
| 2023年4月 | 10.1万円 | 75.0m² 3LDK | 6階 |
| 2023年4月 | 10.1万円 | 76.0m² 3LDK | 7階 |
| 2023年3月 | 9.6万円 | 73.0m² 3LDK | 2階 |
| 2023年3月 | 9.1万円 | 73.0m² 3LDK | 2階 |
| 2023年3月 | 10.8万円 | 76.0m² 3LDK | 4階 |
| 2023年3月 | 10.1万円 | 75.0m² 3LDK | 6階 |
| 2023年3月 | 10.1万円 | 76.0m² 3LDK | 7階 |
| 2023年2月 | 9.6万円 | 73.0m² 3LDK | 2階 |
| 2023年2月 | 9.1万円 | 73.0m² 3LDK | 2階 |
| 2023年2月 | 9.9万円 | 75.0m² 3LDK | 3階 |
| 2023年2月 | 10.8万円 | 76.0m² 3LDK | 4階 |
| 2023年2月 | 10.1万円 | 76.0m² 3LDK | 6階 |
| 2023年1月 | 6.5万円 | 39.0m² 1DK | 2階 |
| 2023年1月 | 9.6万円 | 73.0m² 3LDK | 2階 |
| 2023年1月 | 9.1万円 | 73.0m² 3LDK | 2階 |
| 2023年1月 | 9.9万円 | 75.0m² 3LDK | 3階 |
| 2023年1月 | 9.6万円 | 73.0m² 3LDK | 4階 |
| 2023年1月 | 9.9万円 | 75.0m² 3LDK | 5階 |
| 2023年1月 | 10.1万円 | 76.0m² 3LDK | 6階 |
| 2022年12月 | 6.5万円 | 39.0m² 1DK | 2階 |
| 2022年12月 | 9.1万円 | 73.0m² 3LDK | 2階 |
| 2022年12月 | 9.9万円 | 75.0m² 3LDK | 3階 |
| 2022年12月 | 9.6万円 | 73.0m² 3LDK | 4階 |
| 2022年12月 | 9.9万円 | 75.0m² 3LDK | 5階 |
| 2022年12月 | 10.1万円 | 76.0m² 3LDK | 6階 |
| 2022年12月 | 10.0万円 | 75.0m² 3LDK | 6階 |
| 2022年12月 | 10.2万円 | 75.0m² 3LDK | 8階 |
| 2022年11月 | 9.1万円 | 73.0m² 3LDK | 2階 |
| 2022年11月 | 9.9万円 | 75.0m² 3LDK | 3階 |
| 2022年11月 | 9.6万円 | 73.0m² 3LDK | 4階 |
| 2022年11月 | 6.5万円 | 39.0m² 1DK | 5階 |
| 2022年11月 | 9.9万円 | 75.0m² 3LDK | 5階 |
| 2022年11月 | 10.1万円 | 76.0m² 3LDK | 6階 |
| 2022年11月 | 10.0万円 | 75.0m² 3LDK | 6階 |
| 2022年11月 | 10.2万円 | 75.0m² 3LDK | 8階 |
| 2022年10月 | 9.1万円 | 73.0m² 3LDK | 2階 |
| 2022年10月 | 9.6万円 | 73.0m² 3LDK | 4階 |
| 2022年10月 | 9.9万円 | 75.0m² 3LDK | 5階 |
| 2022年10月 | 6.5万円 | 39.0m² 1DK | 5階 |
| 2022年10月 | 10.1万円 | 76.0m² 3LDK | 6階 |
| 2022年10月 | 10.0万円 | 75.0m² 3LDK | 6階 |
| 2022年10月 | 10.2万円 | 75.0m² 3LDK | 8階 |
| 2022年9月 | 9.1万円 | 73.0m² 3LDK | 2階 |
| 2022年9月 | 9.6万円 | 73.0m² 3LDK | 4階 |
| 2022年9月 | 6.5万円 | 39.0m² 1DK | 5階 |
| 2022年9月 | 10.1万円 | 76.0m² 3LDK | 6階 |
| 2022年9月 | 10.2万円 | 75.0m² 3LDK | 8階 |
| 2022年8月 | 9.1万円 | 73.0m² 3LDK | 2階 |
| 2022年8月 | 9.6万円 | 73.0m² 3LDK | 4階 |
| 2022年8月 | 10.1万円 | 76.0m² 3LDK | 6階 |
| 2022年8月 | 10.2万円 | 75.0m² 3LDK | 8階 |
| 2022年7月 | 9.1万円 | 73.0m² 3LDK | 2階 |
| 2022年7月 | 10.1万円 | 76.0m² 3LDK | 6階 |
| 2022年7月 | 10.2万円 | 75.0m² 3LDK | 8階 |
| 2022年6月 | 9.1万円 | 73.0m² 3LDK | 2階 |
| 2022年6月 | 10.2万円 | 75.0m² 3LDK | 8階 |
| 2022年5月 | 10.1万円 | 76.0m² 3LDK | 4階 |
| 2022年4月 | 10.1万円 | 76.0m² 3LDK | 4階 |
| 2022年3月 | 9.7万円 | 73.54m² 3LDK | 2階 |
| 2022年3月 | 10.1万円 | 76.54m² 3LDK | 2階 |
| 2022年3月 | 9.6万円 | 76.6m² 3LDK | 4階 |
| 2022年2月 | 10.1万円 | 76.54m² 3LDK | 2階 |
| 2022年2月 | 9.7万円 | 73.54m² 3LDK | 2階 |
| 2022年2月 | 9.6万円 | 76.6m² 3LDK | 4階 |
| 2022年2月 | 6.5万円 | 39.16m² 1DK | 7階 |
| 2022年1月 | 10.1万円 | 76.6m² 3LDK | 2階 |
| 2022年1月 | 10.1万円 | 76.54m² 3LDK | 2階 |
| 2022年1月 | 9.7万円 | 73.54m² 3LDK | 2階 |
| 2022年1月 | 9.9万円 | 73.08m² 3LDK | 3階 |
| 2022年1月 | 10.1万円 | 76.6m² 3LDK | 4階 |
| 2022年1月 | 10.8万円 | 76.54m² 3LDK | 4階 |
| 2022年1月 | 6.5万円 | 39.16m² 1DK | 7階 |
| 2021年12月 | 9.7万円 | 73.54m² 3LDK | 2階 |
| 2021年12月 | 10.0万円 | 76.54m² 3LDK | 2階 |
| 2021年12月 | 10.1万円 | 76.6m² 3LDK | 2階 |
| 2021年12月 | 9.9万円 | 73.08m² 3LDK | 3階 |
| 2021年12月 | 10.8万円 | 76.54m² 3LDK | 4階 |
| 2021年12月 | 10.1万円 | 76.6m² 3LDK | 4階 |
| 2021年11月 | 10.1万円 | 76.6m² 3LDK | 2階 |
| 2021年11月 | 10.0万円 | 76.54m² 3LDK | 2階 |
| 2021年11月 | 9.7万円 | 73.54m² 3LDK | 2階 |
| 2021年11月 | 9.9万円 | 73.08m² 3LDK | 3階 |
| 2021年11月 | 10.1万円 | 76.6m² 3LDK | 4階 |
| 2021年11月 | 10.8万円 | 76.54m² 3LDK | 4階 |
| 2021年11月 | 10.2万円 | 75.73m² 3LDK | 8階 |
| 2021年10月 | 10.1万円 | 76.6m² 3LDK | 2階 |
| 2021年10月 | 10.0万円 | 76.54m² 3LDK | 2階 |
| 2021年10月 | 9.7万円 | 73.54m² 3LDK | 2階 |
| 2021年10月 | 9.9万円 | 73.08m² 3LDK | 3階 |
| 2021年10月 | 10.1万円 | 76.6m² 3LDK | 4階 |
| 2021年10月 | 10.8万円 | 76.54m² 3LDK | 4階 |
| 2021年10月 | 10.2万円 | 75.73m² 3LDK | 8階 |
| 2021年9月 | 9.7万円 | 73.54m² 3LDK | 2階 |
| 2021年9月 | 10.0万円 | 76.54m² 3LDK | 2階 |
| 2021年9月 | 10.1万円 | 76.6m² 3LDK | 2階 |
| 2021年9月 | 9.9万円 | 73.08m² 3LDK | 3階 |
| 2021年9月 | 10.8万円 | 76.54m² 3LDK | 4階 |
| 2021年9月 | 10.1万円 | 76.6m² 3LDK | 4階 |
| 2021年8月 | 10.1万円 | 76.6m² 3LDK | 2階 |
| 2021年8月 | 10.0万円 | 76.54m² 3LDK | 2階 |
| 2021年8月 | 9.7万円 | 73.54m² 3LDK | 2階 |
| 2021年8月 | 9.9万円 | 73.08m² 3LDK | 3階 |
| 2021年8月 | 10.0万円 | 76.6m² 3LDK | 4階 |
| 2021年8月 | 6.5万円 | 39.16m² 1DK | 4階 |
| 2021年8月 | 10.8万円 | 76.54m² 3LDK | 4階 |
| 2021年7月 | 9.7万円 | 73.54m² 3LDK | 2階 |
| 2021年7月 | 10.0万円 | 76.54m² 3LDK | 2階 |
| 2021年7月 | 10.0万円 | 76.6m² 3LDK | 4階 |
| 2021年7月 | 6.5万円 | 39.16m² 1DK | 4階 |
| 2021年7月 | 10.8万円 | 76.54m² 3LDK | 4階 |
| 2021年6月 | 9.5万円 | 75.73m² 3LDK | 1階 |
| 2021年6月 | 9.7万円 | 73.54m² 3LDK | 2階 |
| 2021年6月 | 10.0万円 | 76.54m² 3LDK | 2階 |
| 2021年6月 | 10.0万円 | 76.6m² 3LDK | 4階 |
| 2021年6月 | 6.5万円 | 39.16m² 1DK | 4階 |
| 2021年6月 | 10.8万円 | 76.54m² 3LDK | 4階 |
| 2021年5月 | 10.0万円 | 76.54m² 3LDK | 2階 |
| 2021年5月 | 10.8万円 | 76.54m² 3LDK | 4階 |
| 2021年5月 | 10.0万円 | 76.6m² 3LDK | 4階 |
| 2021年4月 | 10.0万円 | 76.54m² 3LDK | 2階 |
| 2021年4月 | 10.8万円 | 76.54m² 3LDK | 4階 |
| 2021年4月 | 10.0万円 | 76.6m² 3LDK | 4階 |
| 2021年3月 | 9.7万円 | 73.54m² 3LDK | 2階 |
| 2021年3月 | 10.0万円 | 76.54m² 3LDK | 2階 |
| 2021年3月 | 10.0万円 | 76.6m² 3LDK | 4階 |
| 2021年3月 | 10.8万円 | 76.54m² 3LDK | 4階 |
| 2021年3月 | 10.0万円 | 76.54m² 3LDK | 5階 |
| 2021年2月 | 9.7万円 | 73.54m² 3LDK | 2階 |
| 2021年2月 | 10.0万円 | 76.54m² 3LDK | 2階 |
| 2021年2月 | 10.0万円 | 76.6m² 3LDK | 4階 |
| 2021年2月 | 10.6万円 | 76.0m² 3LDK | 4階 |
| 2021年2月 | 10.0万円 | 76.54m² 3LDK | 5階 |
| 2021年1月 | 10.0万円 | 76.54m² 3LDK | 2階 |
| 2021年1月 | 10.6万円 | 76.0m² 3LDK | 4階 |
| 2021年1月 | 9.5万円 | 73.08m² 3LDK | 4階 |
| 2021年1月 | 10.0万円 | 76.6m² 3LDK | 4階 |
| 2021年1月 | 9.7万円 | 73.54m² 3LDK | 5階 |
| 2021年1月 | 10.0万円 | 76.54m² 3LDK | 5階 |
| 2020年12月 | 10.0万円 | 76.54m² 3LDK | 2階 |
| 2020年12月 | 10.6万円 | 76.0m² 3LDK | 4階 |
| 2020年12月 | 10.0万円 | 76.6m² 3LDK | 4階 |
| 2020年12月 | 9.5万円 | 73.08m² 3LDK | 4階 |
| 2020年12月 | 10.0万円 | 76.54m² 3LDK | 5階 |
| 2020年12月 | 9.7万円 | 73.54m² 3LDK | 5階 |
| 2020年12月 | 6.5万円 | 39.16m² 1DK | 7階 |
| 2020年11月 | 10.0万円 | 76.54m² 3LDK | 2階 |
| 2020年11月 | 10.6万円 | 76.0m² 3LDK | 4階 |
| 2020年11月 | 9.5万円 | 73.08m² 3LDK | 4階 |
| 2020年11月 | 10.0万円 | 75.73m² 3LDK | 4階 |
| 2020年11月 | 9.7万円 | 73.54m² 3LDK | 5階 |
| 2020年11月 | 10.0万円 | 76.54m² 3LDK | 5階 |
| 2020年10月 | 9.5万円 | 73.08m² 3LDK | 4階 |
| 2020年10月 | 10.6万円 | 76.0m² 3LDK | 4階 |
| 2020年10月 | 10.0万円 | 76.6m² 3LDK | 4階 |
| 2020年10月 | 9.7万円 | 73.54m² 3LDK | 5階 |
| 2020年10月 | 10.0万円 | 76.54m² 3LDK | 5階 |
| 2020年9月 | 10.0万円 | 76.6m² 3LDK | 4階 |
| 2020年9月 | 10.6万円 | 76.0m² 3LDK | 4階 |
| 2020年9月 | 9.7万円 | 73.54m² 3LDK | 5階 |
| 2020年9月 | 10.0万円 | 76.54m² 3LDK | 5階 |
| 2020年8月 | 10.6万円 | 76.0m² 3LDK | 4階 |
| 2020年8月 | 9.8万円 | 76.6m² 3LDK | 4階 |
| 2020年8月 | 9.8万円 | 76.54m² 3LDK | 5階 |
| 2020年7月 | 9.0万円 | 73.54m² 3LDK | 2階 |
| 2020年7月 | 10.6万円 | 76.54m² 3LDK | 4階 |
| 2020年7月 | 9.8万円 | 76.54m² 3LDK | 5階 |
| 2020年6月 | 9.5万円 | 73.54m² 3LDK | 2階 |
| 2020年6月 | 10.6万円 | 76.0m² 3LDK | 4階 |
| 2020年6月 | 9.8万円 | 76.54m² 3LDK | 5階 |
| 2020年5月 | 9.5万円 | 73.54m² 3LDK | 2階 |
| 2020年5月 | 10.6万円 | 76.0m² 3LDK | 4階 |
| 2020年4月 | 9.5万円 | 73.54m² 3LDK | 2階 |
| 2020年3月 | 9.5万円 | 73.54m² 3LDK | 2階 |
| 2020年3月 | 6.3万円 | 39.16m² 1DK | 3階 |
| 2020年2月 | 9.5万円 | 73.54m² 3LDK | 2階 |
| 2020年1月 | 9.5万円 | 73.54m² 3LDK | 2階 |
| 2019年12月 | 9.5万円 | 73.54m² 3LDK | 2階 |
| 2019年11月 | 9.5万円 | 73.54m² 3LDK | 2階 |
| 2019年11月 | 9.3万円 | 73.08m² 3LDK | 3階 |
| 2019年10月 | 9.5万円 | 73.54m² 3LDK | 2階 |
| 2019年10月 | 9.3万円 | 73.08m² 3LDK | 3階 |
| 2019年9月 | 9.5万円 | 73.54m² 3LDK | 2階 |
| 2019年9月 | 9.3万円 | 73.08m² 3LDK | 3階 |
| 2019年8月 | 9.3万円 | 73.08m² 3LDK | 2階 |
| 2019年8月 | 9.3万円 | 73.08m² 3LDK | 3階 |
| 2019年6月 | 10.6万円 | 84.08m² 4LDK | 4階 |
| 2019年5月 | 8.9万円 | 73.43m² 3LDK | 7階 |
| 2019年4月 | 8.9万円 | 73.43m² 3LDK | 7階 |
| 2019年1月 | 9.5万円 | 73.54m² 3LDK | 4階 |
| 2018年12月 | 10.5万円 | 76.54m² 3LDK | 4階 |
| 2018年12月 | 9.5万円 | 73.54m² 3LDK | 4階 |
| 2018年11月 | 10.5万円 | 76.54m² 3LDK | 4階 |
| 2018年11月 | 9.5万円 | 73.54m² 3LDK | 4階 |
| 2018年10月 | 9.3万円 | 73.08m² 3LDK | 2階 |
| 2018年10月 | 10.5万円 | 76.54m² 3LDK | 4階 |
| 2018年10月 | 9.5万円 | 73.54m² 3LDK | 4階 |
| 2018年10月 | 9.0万円 | 73.43m² 3LDK | 8階 |
| 2018年9月 | 9.3万円 | 73.08m² 3LDK | 2階 |
| 2018年9月 | 10.5万円 | 76.54m² 3LDK | 4階 |
| 2018年9月 | 9.5万円 | 73.54m² 3LDK | 4階 |
| 2018年9月 | 9.0万円 | 73.43m² 3LDK | 8階 |
| 2018年8月 | 9.3万円 | 73.08m² 3LDK | 2階 |
| 2018年8月 | 9.5万円 | 73.54m² 3LDK | 4階 |
| 2018年8月 | 10.5万円 | 76.54m² 3LDK | 4階 |
| 2018年6月 | 9.5万円 | 73.54m² 3LDK | 2階 |
| 2018年6月 | 9.4万円 | 73.08m² 3LDK | 6階 |
| 2018年5月 | 9.5万円 | 73.54m² 3LDK | 2階 |
| 2018年5月 | 6.3万円 | 39.16m² 1DK | 2階 |
| 2018年5月 | 9.4万円 | 73.08m² 3LDK | 6階 |
| 2018年4月 | 9.5万円 | 73.54m² 3LDK | 2階 |
| 2018年4月 | 6.3万円 | 39.16m² 1DK | 2階 |
| 2018年4月 | 10.5万円 | 76.54m² 3LDK | 4階 |
| 2018年3月 | 10.5万円 | 76.54m² 3LDK | 4階 |
| 2018年3月 | 7.7万円 | 75.73m² 3LDK | 4階 |
| 2018年2月 | 10.5万円 | 76.54m² 3LDK | 4階 |
| 2018年2月 | 7.7万円 | 75.73m² 3LDK | 4階 |
| 2018年1月 | 10.5万円 | 76.54m² 3LDK | 4階 |
| 2018年1月 | 7.7万円 | 75.73m² 3LDK | 4階 |
| 2018年1月 | 9.5万円 | 73.54m² 3LDK | 4階 |
| 2017年12月 | 9.3万円 | 73.08m² 3LDK | 2階 |
| 2017年12月 | 7.7万円 | 75.73m² 3LDK | 4階 |
| 2017年12月 | 10.5万円 | 76.54m² 3LDK | 4階 |
| 2017年12月 | 9.5万円 | 73.54m² 3LDK | 4階 |
| 2017年11月 | 10.5万円 | 76.54m² 3LDK | 4階 |
| 2017年10月 | 9.3万円 | 73.08m² 3LDK | 2階 |
| 2017年10月 | 7.7万円 | 75.73m² 3LDK | 4階 |
| 2017年10月 | 10.5万円 | 76.54m² 3LDK | 4階 |
| 2017年9月 | 7.7万円 | 75.73m² 3LDK | 4階 |
| 2017年9月 | 10.5万円 | 76.54m² 3LDK | 4階 |
| 2017年9月 | 8.9万円 | 73.43m² 3LDK | 7階 |
| 2017年8月 | 7.7万円 | 75.73m² 3LDK | 4階 |
| 2017年8月 | 10.5万円 | 76.54m² 3LDK | 4階 |
| 2017年8月 | 8.9万円 | 73.43m² 3LDK | 7階 |
| 2017年7月 | 7.7万円 | 76.6m² 3LDK | 4階 |
| 2017年6月 | 9.3万円 | 76.6m² 3LDK | 1階 |
| 2017年6月 | 8.9万円 | 73.43m² 3LDK | 4階 |
| 2017年6月 | 7.7万円 | 76.6m² 3LDK | 4階 |
| 2017年6月 | 8.9万円 | 73.43m² 3LDK | 7階 |
| 2017年5月 | 9.3万円 | 76.6m² 3LDK | 1階 |
| 2017年5月 | 8.9万円 | 73.43m² 3LDK | 4階 |
| 2017年5月 | 7.7万円 | 75.73m² 3LDK | 4階 |
| 2017年5月 | 8.9万円 | 73.43m² 3LDK | 7階 |
| 2017年4月 | 7.7万円 | 75.73m² 3LDK | 4階 |
| 2017年4月 | 10.0万円 | 73.08m² 3LDK | 5階 |
| 2016年12月 | 6.1万円 | 39.16m² 1DK | 1階 |
| 2016年12月 | 8.9万円 | 73.08m² 3LDK | 1階 |
| 2016年12月 | 8.9万円 | 73.43m² 3LDK | 7階 |
| 2016年11月 | 8.9万円 | 73.08m² 3LDK | 1階 |
| 2016年11月 | 6.1万円 | 39.16m² 1DK | 1階 |
| 2016年10月 | 8.9万円 | 73.08m² 3LDK | 1階 |
| 2016年10月 | 6.1万円 | 39.16m² 1DK | 1階 |
| 2016年9月 | 8.9万円 | 73.08m² 3LDK | 1階 |
| 2016年9月 | 6.1万円 | 39.16m² 1DK | 1階 |
| 2016年8月 | 8.9万円 | 73.08m² 3LDK | 1階 |
| 2016年8月 | 6.4万円 | 39.0m² 1DK | 7階 |
| 2016年7月 | 8.9万円 | 73.08m² 3LDK | 1階 |
| 2016年7月 | 7.8万円 | 76.54m² 3LDK | 2階 |
| 2016年7月 | 7.8万円 | 76.54m² 3LDK | 4階 |
| 2016年7月 | 9.9万円 | 76.0m² 3LDK | 7階 |
| 2016年6月 | 8.6万円 | 73.54m² 3LDK | 1階 |
| 2016年6月 | 9.3万円 | 76.54m² 3LDK | 1階 |
| 2016年6月 | 6.3万円 | 39.16m² 1DK | 2階 |
| 2016年6月 | 7.8万円 | 76.54m² 3LDK | 2階 |
| 2016年6月 | 7.8万円 | 76.54m² 3LDK | 4階 |
| 2016年6月 | 9.9万円 | 76.0m² 3LDK | 7階 |
| 2016年5月 | 6.1万円 | 39.16m² 1DK | 1階 |
| 2016年5月 | 8.6万円 | 73.54m² 3LDK | 1階 |
| 2016年5月 | 7.8万円 | 76.54m² 3LDK | 2階 |
| 2016年5月 | 7.8万円 | 76.54m² 3LDK | 4階 |
| 2016年5月 | 9.9万円 | 76.0m² 3LDK | 7階 |
| 2016年4月 | 8.6万円 | 73.54m² 3LDK | 1階 |
| 2016年4月 | 7.8万円 | 76.54m² 3LDK | 2階 |
| 2016年4月 | 7.8万円 | 76.54m² 3LDK | 4階 |
| 2016年4月 | 9.9万円 | 76.0m² 3LDK | 7階 |
| 2016年3月 | 9.1万円 | 76.0m² 3LDK | 1階 |
| 2016年3月 | 7.8万円 | 76.0m² 3LDK | 2階 |
| 2016年3月 | 7.8万円 | 76.0m² 3LDK | 4階 |
| 2016年3月 | 9.9万円 | 76.0m² 3LDK | 7階 |
| 2016年2月 | 9.1万円 | 76.0m² 3LDK | 1階 |
| 2016年2月 | 7.8万円 | 76.54m² 3LDK | 2階 |
| 2016年2月 | 7.8万円 | 76.54m² 3LDK | 4階 |
| 2016年2月 | 6.4万円 | 39.16m² 1DK | 7階 |
| 2016年2月 | 9.9万円 | 76.0m² 3LDK | 7階 |
| 2016年2月 | 6.4万円 | 39.16m² 1DK | 8階 |
| 2016年1月 | 7.8万円 | 76.54m² 3LDK | 2階 |
| 2016年1月 | 7.8万円 | 76.54m² 3LDK | 4階 |
| 2016年1月 | 9.8万円 | 76.6m² 3LDK | 5階 |
| 2016年1月 | 9.4万円 | 76.54m² 3LDK | 7階 |
| 2016年1月 | 6.4万円 | 39.16m² 1DK | 7階 |
| 2015年12月 | 7.8万円 | 76.54m² 3LDK | 2階 |
| 2015年12月 | 7.8万円 | 76.54m² 3LDK | 4階 |
| 2015年12月 | 9.8万円 | 76.6m² 3LDK | 5階 |
| 2015年12月 | 6.4万円 | 39.16m² 1DK | 7階 |
| 2015年11月 | 7.8万円 | 76.54m² 3LDK | 2階 |
| 2015年11月 | 7.8万円 | 76.54m² 3LDK | 4階 |
| 2015年11月 | 9.8万円 | 76.6m² 3LDK | 5階 |
| 2015年8月 | 8.9万円 | 73.08m² 3LDK | 1階 |
| 2015年8月 | 9.1万円 | 76.0m² 3LDK | 1階 |
| 2015年7月 | 9.1万円 | 76.0m² 3LDK | 1階 |
| 2015年7月 | 8.9万円 | 73.08m² 3LDK | 1階 |
| 2015年7月 | 9.8万円 | 76.0m² 3LDK | 2階 |
| 2015年7月 | 7.8万円 | 76.6m² 3LDK | 2階 |
| 2015年7月 | 9.8万円 | 76.0m² 3LDK | 4階 |
| 2015年7月 | 9.8万円 | 76.0m² 3LDK | 4階 |
| 2015年7月 | 9.9万円 | 76.0m² 3LDK | 7階 |
| 2015年6月 | 8.9万円 | 73.08m² 3LDK | 1階 |
| 2015年6月 | 7.8万円 | 76.6m² 3LDK | 2階 |
| 2015年6月 | 9.8万円 | 76.0m² 3LDK | 4階 |
| 2015年6月 | 9.8万円 | 76.6m² 3LDK | 4階 |
| 2015年5月 | 8.9万円 | 73.0m² 3LDK | 1階 |
| 2015年5月 | 7.4万円 | 76.54m² 3LDK | 1階 |
| 2015年5月 | 7.8万円 | 76.6m² 3LDK | 2階 |
| 2015年5月 | 9.8万円 | 76.6m² 3LDK | 4階 |
| 2015年4月 | 6.1万円 | 39.0m² 1DK | 1階 |
| 2015年4月 | 7.4万円 | 76.54m² 3LDK | 1階 |
| 2015年4月 | 7.5万円 | 73.0m² 3LDK | 2階 |
| 2015年4月 | 9.8万円 | 76.0m² 3LDK | 2階 |
| 2015年4月 | 6.3万円 | 39.0m² 1DK | 2階 |
| 2015年4月 | 7.5万円 | 73.0m² 3LDK | 3階 |
| 2015年4月 | 9.8万円 | 76.6m² 3LDK | 4階 |
| 2015年3月 | 6.1万円 | 39.0m² 1DK | 1階 |
| 2015年3月 | 6.3万円 | 39.0m² 1DK | 2階 |
| 2015年3月 | 9.8万円 | 76.0m² 3LDK | 2階 |
| 2015年3月 | 7.5万円 | 73.0m² 3LDK | 2階 |
| 2015年3月 | 7.5万円 | 73.0m² 3LDK | 3階 |
| 2015年2月 | 7.3万円 | 76.0m² 3LDK | 1階 |
| 2015年2月 | 7.4万円 | 76.0m² 3LDK | 1階 |
| 2015年2月 | 6.1万円 | 39.0m² 1DK | 1階 |
| 2015年2月 | 7.4万円 | 76.54m² 3LDK | 1階 |
| 2015年2月 | 6.3万円 | 39.0m² 1DK | 2階 |
| 2015年2月 | 7.5万円 | 73.0m² 3LDK | 2階 |
| 2015年2月 | 7.5万円 | 73.0m² 3LDK | 3階 |
| 2015年2月 | 9.8万円 | 76.0m² 3LDK | 4階 |
| 2015年2月 | 9.9万円 | 76.6m² 3LDK | 6階 |
| 2015年1月 | 6.1万円 | 39.0m² 1DK | 1階 |
| 2015年1月 | 7.4万円 | 76.54m² 3LDK | 1階 |
| 2015年1月 | 9.8万円 | 76.0m² 3LDK | 2階 |
| 2015年1月 | 6.3万円 | 39.0m² 1DK | 2階 |
| 2015年1月 | 7.5万円 | 73.0m² 3LDK | 2階 |
| 2015年1月 | 7.5万円 | 73.08m² 3LDK | 3階 |
| 2015年1月 | 6.3万円 | 39.0m² 1DK | 3階 |
| 2015年1月 | 9.8万円 | 76.0m² 3LDK | 4階 |
| 2014年12月 | 9.3万円 | 76.0m² 3LDK | 1階 |
| 2014年12月 | 9.1万円 | 75.0m² 3LDK | 1階 |
| 2014年12月 | 6.1万円 | 39.0m² 1DK | 1階 |
| 2014年12月 | 9.3万円 | 76.0m² 3LDK | 1階 |
| 2014年12月 | 6.3万円 | 39.0m² 1DK | 2階 |
| 2014年12月 | 7.5万円 | 73.0m² 3LDK | 2階 |
| 2014年12月 | 7.5万円 | 73.08m² 3LDK | 3階 |
| 2014年12月 | 6.3万円 | 39.0m² 1DK | 3階 |
| 2014年12月 | 9.9万円 | 76.0m² 3LDK | 6階 |
| 2014年11月 | 7.3万円 | 75.73m² 3LDK | 1階 |
| 2014年11月 | 6.1万円 | 39.0m² 1DK | 1階 |
| 2014年11月 | 7.4万円 | 76.0m² 3LDK | 1階 |
| 2014年11月 | 7.8万円 | 76.0m² 3LDK | 2階 |
| 2014年11月 | 7.5万円 | 73.0m² 3LDK | 2階 |
| 2014年11月 | 6.3万円 | 39.0m² 1DK | 2階 |
| 2014年11月 | 6.3万円 | 39.16m² 1DK | 3階 |
| 2014年11月 | 9.7万円 | 73.08m² 3LDK | 4階 |
| 2014年10月 | 7.3万円 | 75.73m² 3LDK | 1階 |
| 2014年10月 | 6.3万円 | 39.16m² 1DK | 3階 |
| 2014年7月 | 9.8万円 | 76.0m² 3LDK | 2階 |
| 2014年7月 | 9.8万円 | 76.6m² 3LDK | 4階 |
| 2014年7月 | 8.9万円 | 73.0m² 3LDK | 5階 |
| 2014年6月 | 9.3万円 | 76.0m² 3LDK | 1階 |
| 2014年6月 | 9.1万円 | 75.0m² 3LDK | 1階 |
| 2014年6月 | 9.3万円 | 76.0m² 3LDK | 1階 |
| 2014年6月 | 9.8万円 | 76.6m² 3LDK | 4階 |
| 2014年6月 | 8.9万円 | 73.43m² 3LDK | 5階 |
| 2014年5月 | 9.3万円 | 76.0m² 3LDK | 1階 |
| 2014年5月 | 9.3万円 | 76.0m² 3LDK | 1階 |
| 2014年5月 | 9.1万円 | 75.0m² 3LDK | 1階 |
| 2014年5月 | 9.5万円 | 73.0m² 3LDK | 3階 |
| 2014年5月 | 9.3万円 | 73.0m² 3LDK | 3階 |
| 2014年5月 | 9.8万円 | 76.6m² 3LDK | 4階 |
| 2014年5月 | 8.9万円 | 73.43m² 3LDK | 5階 |
| 2014年4月 | 9.3万円 | 76.0m² 3LDK | 1階 |
| 2014年4月 | 9.3万円 | 76.0m² 3LDK | 1階 |
| 2014年4月 | 9.1万円 | 75.0m² 3LDK | 1階 |
| 2014年4月 | 9.5万円 | 73.0m² 3LDK | 3階 |
| 2014年3月 | 8.9万円 | 73.0m² 3LDK | 1階 |
| 2014年3月 | 9.3万円 | 76.0m² 3LDK | 1階 |
| 2014年3月 | 9.1万円 | 75.0m² 3LDK | 1階 |
| 2014年3月 | 9.3万円 | 76.0m² 3LDK | 1階 |
| 2014年3月 | 9.5万円 | 73.0m² 3LDK | 3階 |
| 2014年3月 | 9.8万円 | 76.0m² 3LDK | 4階 |
| 2014年1月 | 8.9万円 | 73.0m² 3LDK | 1階 |
| 2014年1月 | 9.3万円 | 76.0m² 3LDK | 1階 |
| 2014年1月 | 6.0万円 | 39.0m² 3LDK | 1階 |
| 2014年1月 | 9.3万円 | 76.0m² 3LDK | 1階 |
| 2014年1月 | 9.8万円 | 76.0m² 3LDK | 2階 |
| 2014年1月 | 8.8万円 | 73.0m² 3LDK | 4階 |
| 2014年1月 | 9.8万円 | 76.0m² 3LDK | 4階 |
| 2014年1月 | 8.9万円 | 73.0m² 3LDK | 6階 |
| 2013年12月 | 8.9万円 | 73.0m² 3LDK | 1階 |
| 2013年12月 | 9.3万円 | 76.0m² 3LDK | 1階 |
| 2013年12月 | 6.0万円 | 39.0m² 3LDK | 1階 |
| 2013年12月 | 9.3万円 | 76.0m² 3LDK | 1階 |
| 2013年12月 | 9.8万円 | 76.0m² 3LDK | 2階 |
| 2013年12月 | 8.8万円 | 73.0m² 3LDK | 4階 |
| 2013年12月 | 9.8万円 | 76.6m² 3LDK | 4階 |
| 2013年12月 | 8.9万円 | 73.0m² 3LDK | 6階 |
| 2013年9月 | 9.3万円 | 73.08m² 3LDK | 3階 |
| 2013年8月 | 9.3万円 | 73.08m² 3LDK | 3階 |
| 2013年7月 | 9.3万円 | 73.08m² 3LDK | 3階 |
| 2013年6月 | 9.3万円 | 73.08m² 3LDK | 3階 |
| 2013年5月 | 9.3万円 | 73.08m² 3LDK | 3階 |
| 2013年4月 | 9.3万円 | 73.08m² 3LDK | 3階 |
| 2013年3月 | 9.3万円 | 73.08m² 3LDK | 3階 |
| 2013年2月 | 9.3万円 | 73.08m² 3LDK | 3階 |
| 2013年1月 | 9.3万円 | 73.08m² 3LDK | 3階 |
| 2012年12月 | 9.3万円 | 73.08m² 3LDK | 3階 |
一般的なファミリー向けの中古マンション価格(※)の3ヶ月ごとの推移です。
名古屋市熱田区の価格推移
愛知県の価格推移
名古屋市熱田区の標準的な物件の価格は直近の3年間で6.36%程度上昇しています。
これは名古屋市熱田区のある愛知県の変動の5.08%に比べて同程度の水準です。
この3年間の価格上昇率を内訳でみると、初年度が-0.94%、2年目が1.16%、3年目が6.14%となっています。
一般的なファミリー向けの賃貸マンションの賃料(※)の3ヶ月ごとの推移です。
名古屋市熱田区の賃料推移
愛知県の賃料推移
名古屋市熱田区の標準的な物件の賃料は直近の3年間で5.14%程度上昇しています。
これは名古屋市熱田区のある愛知県の変動の4.76%に比べて同程度の水準です。
この3年間の価格上昇率を内訳でみると、初年度が2.17%、2年目が0.61%、3年目が2.36%となっています。
この周辺地域のマンションにかかる固定資産税の概算をシミュレーションすることができます。
下記項目を入力して年間の固定資産税額を確かめましょう。
LIFULL HOME’Sで7日以内に掲載が開始された物件です。
所有している物件の売却をお考えの方は、ホームズマンション売却や不動産売却査定サービスから複数の会社に一括で売却査定を依頼することができます。
LIFULL HOME'Sは「不動産会社」ではなく「情報掲載サイト」です
webでの訂正依頼
掲載情報の誤りを指摘・訂正の依頼をする