直近3年間の推移
京都市南区の標準的な物件の価格は直近の3年間で7.92%程度上昇しています。
これは京都市南区のある京都府の変動の10.42%に比べてやや低めの水準です。
この3年間の価格上昇率を内訳でみると、初年度が2.56%、2年目が5.87%、3年目が-0.50%となっています。

京都府京都市南区東九条西河辺町26
このページの情報は広告情報ではありません。過去から現在までにLIFULL HOME'Sに掲載された不動産情報と提携先の地図情報を元に生成した参考情報です。情報更新日: 2026/4/5
掲載履歴とは、過去LIFULL HOME'Sに掲載された時点の情報を履歴として一覧にまとめたものです。
※最終的な成約価格とは異なる場合があります。また、将来の売出し価格を保証するものではありません。
| 年月 | 価格 | 専有面積 間取り | 所在階 |
|---|---|---|---|
| 2022年2月 | 1,830万円 | 23.2m² 1K | 3階 |
| 2022年1月 | 1,830万円 | 23.2m² 1K | 3階 |
| 2021年12月 | 1,830万円 | 23.2m² 1K | 3階 |
| 2021年11月 | 1,830万円 | 23.2m² 1K | 3階 |
| 2021年10月 | 1,830万円 | 23.2m² 1K | 3階 |
掲載履歴とは、過去LIFULL HOME'Sに掲載された時点の情報を履歴として一覧にまとめたものです。
※最終的な成約賃料とは異なる場合があります。また、将来の募集賃料を保証するものではありません。
| 年月 | 賃料 | 専有面積 間取り | 所在階 |
|---|---|---|---|
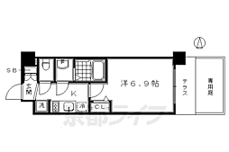
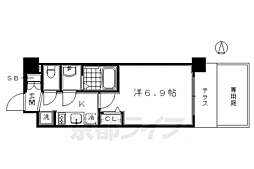
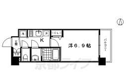
| 2026年3月 | 6.9万円 | 23.2m² 1K | 1階 |
| 2026年3月 | 7.8万円 | 23.2m² 1K | 1階 |
| 2026年3月 | 7.3万円 | 23.2m² 1K | 2階 |
| 2026年3月 | 6.6万円 | 23.2m² 1K | 2階 |
| 2026年3月 | 14.0万円 | 47.2m² 2LDK | 4階 |
| 2026年3月 | 11.3万円 | 34.8m² 1LDK | 5階 |
| 2026年3月 | 10.5万円 | 34.8m² 1DK | 6階 |
| 2026年3月 | 8.3万円 | 34.8m² 1LDK | 7階 |
| 2026年2月 | 7.8万円 | 23.2m² 1K | 1階 |
| 2026年2月 | 7.3万円 | 23.2m² 1K | 2階 |
| 2026年2月 | 6.6万円 | 23.2m² 1K | 2階 |
| 2026年2月 | 14.0万円 | 47.2m² 2LDK | 4階 |
| 2026年2月 | 11.3万円 | 34.8m² 1LDK | 5階 |
| 2026年2月 | 10.5万円 | 34.8m² 1DK | 6階 |
| 2026年2月 | 8.3万円 | 34.8m² 1LDK | 7階 |
| 2026年1月 | 7.8万円 | 23.2m² 1K | 1階 |
| 2026年1月 | 7.3万円 | 23.2m² 1K | 2階 |
| 2026年1月 | 6.6万円 | 23.2m² 1K | 2階 |
| 2026年1月 | 14.0万円 | 47.2m² 2LDK | 4階 |
| 2026年1月 | 11.3万円 | 34.8m² 1LDK | 5階 |
| 2026年1月 | 10.5万円 | 34.8m² 1DK | 6階 |
| 2025年12月 | 7.8万円 | 23.2m² 1K | 1階 |
| 2025年12月 | 7.3万円 | 23.2m² 1K | 2階 |
| 2025年12月 | 6.6万円 | 23.2m² 1K | 2階 |
| 2025年12月 | 15.0万円 | 47.2m² 2LDK | 4階 |
| 2025年12月 | 9.6万円 | 34.8m² 1LDK | 6階 |
| 2025年12月 | 10.5万円 | 34.8m² 1DK | 6階 |
| 2025年11月 | 7.8万円 | 23.2m² 1K | 1階 |
| 2025年11月 | 7.8万円 | 23.2m² 1K | 2階 |
| 2025年11月 | 6.6万円 | 23.2m² 1K | 2階 |
| 2025年10月 | 7.3万円 | 23.2m² 1K | 1階 |
| 2025年10月 | 7.8万円 | 23.2m² 1K | 2階 |
| 2025年10月 | 6.6万円 | 23.2m² 1K | 2階 |
| 2025年9月 | 7.8万円 | 23.2m² 1K | 1階 |
| 2025年9月 | 7.8万円 | 23.2m² 1K | 2階 |
| 2025年9月 | 9.4万円 | 34.8m² 1LDK | 7階 |
| 2025年8月 | 7.0万円 | 23.2m² 1K | 1階 |
| 2025年8月 | 7.5万円 | 23.2m² 1K | 2階 |
| 2025年8月 | 9.4万円 | 34.8m² 1LDK | 7階 |
| 2025年7月 | 7.5万円 | 23.2m² 1K | 1階 |
| 2025年7月 | 7.5万円 | 23.2m² 1K | 2階 |
| 2025年7月 | 9.4万円 | 34.8m² 1LDK | 7階 |
| 2025年6月 | 7.5万円 | 23.2m² 1K | 1階 |
| 2025年6月 | 7.5万円 | 23.2m² 1K | 2階 |
| 2025年6月 | 9.4万円 | 34.8m² 1LDK | 7階 |
| 2025年5月 | 7.5万円 | 23.2m² 1K | 1階 |
| 2025年5月 | 6.2万円 | 23.2m² 1K | 2階 |
| 2025年5月 | 9.4万円 | 34.8m² 1LDK | 7階 |
| 2025年4月 | 7.4万円 | 23.2m² 1K | 1階 |
| 2025年4月 | 6.2万円 | 23.2m² 1K | 2階 |
| 2025年3月 | 7.4万円 | 23.2m² 1K | 1階 |
| 2025年3月 | 6.3万円 | 23.2m² 1K | 3階 |
| 2025年3月 | 9.1万円 | 34.8m² 1LDK | 7階 |
| 2025年2月 | 7.4万円 | 23.2m² 1K | 1階 |
| 2025年2月 | 10.5万円 | 34.8m² 1LDK | 5階 |
| 2025年2月 | 10.5万円 | 34.8m² 1DK | 6階 |
| 2025年2月 | 9.1万円 | 34.8m² 1LDK | 7階 |
| 2025年1月 | 7.4万円 | 23.2m² 1K | 1階 |
| 2025年1月 | 10.5万円 | 34.8m² 1LDK | 5階 |
| 2025年1月 | 10.5万円 | 34.8m² 1DK | 6階 |
| 2025年1月 | 9.1万円 | 34.8m² 1LDK | 7階 |
| 2024年12月 | 7.1万円 | 23.2m² 1K | 1階 |
| 2024年12月 | 6.7万円 | 23.2m² 1K | 2階 |
| 2024年12月 | 10.5万円 | 34.8m² 1LDK | 5階 |
| 2024年12月 | 10.5万円 | 34.8m² 1DK | 6階 |
| 2024年11月 | 7.0万円 | 23.2m² 1K | 1階 |
| 2024年11月 | 6.0万円 | 23.2m² 1K | 2階 |
| 2024年11月 | 6.7万円 | 23.2m² 1K | 2階 |
| 2024年11月 | 10.5万円 | 34.8m² 1LDK | 5階 |
| 2024年11月 | 13.7万円 | 47.2m² 2LDK | 6階 |
| 2024年11月 | 10.5万円 | 34.8m² 1DK | 6階 |
| 2024年10月 | 7.0万円 | 23.2m² 1K | 1階 |
| 2024年10月 | 6.0万円 | 23.2m² 1K | 2階 |
| 2024年10月 | 6.7万円 | 23.2m² 1K | 2階 |
| 2024年10月 | 10.5万円 | 34.8m² 1LDK | 5階 |
| 2024年10月 | 11.0万円 | 47.2m² 2LDK | 5階 |
| 2024年10月 | 13.7万円 | 47.2m² 2LDK | 6階 |
| 2024年10月 | 10.5万円 | 34.8m² 1DK | 6階 |
| 2024年10月 | 12.3万円 | 47.2m² 2LDK | 7階 |
| 2024年9月 | 7.0万円 | 23.2m² 1K | 1階 |
| 2024年9月 | 6.0万円 | 23.2m² 1K | 2階 |
| 2024年9月 | 6.7万円 | 23.2m² 1K | 2階 |
| 2024年9月 | 8.6万円 | 34.0m² 1LDK | 4階 |
| 2024年9月 | 10.0万円 | 34.8m² 1LDK | 5階 |
| 2024年9月 | 9.0万円 | 34.0m² 1LDK | 5階 |
| 2024年9月 | 8.5万円 | 34.8m² 1LDK | 5階 |
| 2024年9月 | 11.0万円 | 47.2m² 2LDK | 5階 |
| 2024年9月 | 10.5万円 | 34.8m² 1DK | 6階 |
| 2024年9月 | 12.2万円 | 47.0m² 2LDK | 7階 |
| 2024年8月 | 7.0万円 | 23.0m² 1K | 1階 |
| 2024年8月 | 6.0万円 | 23.0m² 1K | 2階 |
| 2024年8月 | 6.0万円 | 23.0m² 1K | 2階 |
| 2024年8月 | 6.7万円 | 23.0m² 1K | 2階 |
| 2024年8月 | 6.0万円 | 23.0m² 1K | 3階 |
| 2024年8月 | 8.7万円 | 34.0m² 1DK | 4階 |
| 2024年8月 | 8.6万円 | 34.0m² 1LDK | 4階 |
| 2024年8月 | 10.0万円 | 34.0m² 1LDK | 5階 |
| 2024年8月 | 8.5万円 | 34.0m² 1LDK | 5階 |
| 2024年8月 | 9.0万円 | 34.0m² 1LDK | 5階 |
| 2024年8月 | 12.2万円 | 47.0m² 2LDK | 7階 |
| 2024年7月 | 6.2万円 | 23.0m² 1K | 1階 |
| 2024年7月 | 6.0万円 | 23.0m² 1K | 2階 |
| 2024年7月 | 6.7万円 | 23.0m² 1K | 2階 |
| 2024年7月 | 6.0万円 | 23.0m² 1K | 3階 |
| 2024年7月 | 8.7万円 | 34.0m² 1DK | 4階 |
| 2024年7月 | 8.6万円 | 34.0m² 1LDK | 4階 |
| 2024年7月 | 10.0万円 | 34.0m² 1LDK | 5階 |
| 2024年7月 | 8.7万円 | 34.0m² 1LDK | 5階 |
| 2024年7月 | 9.0万円 | 34.0m² 1LDK | 5階 |
| 2024年6月 | 6.2万円 | 23.0m² 1K | 1階 |
| 2024年6月 | 7.0万円 | 23.0m² 1K | 2階 |
| 2024年6月 | 6.0万円 | 23.0m² 1K | 2階 |
| 2024年6月 | 6.2万円 | 23.0m² 1K | 3階 |
| 2024年6月 | 8.6万円 | 34.0m² 1LDK | 4階 |
| 2024年6月 | 8.7万円 | 34.0m² 1DK | 4階 |
| 2024年6月 | 10.4万円 | 34.0m² 1LDK | 5階 |
| 2024年5月 | 6.2万円 | 23.0m² 1K | 1階 |
| 2024年5月 | 6.0万円 | 23.0m² 1K | 2階 |
| 2024年5月 | 6.2万円 | 23.0m² 1K | 2階 |
| 2024年5月 | 8.5万円 | 34.0m² 1LDK | 7階 |
| 2024年4月 | 6.2万円 | 23.0m² 1K | 2階 |
| 2024年4月 | 8.5万円 | 34.0m² 1LDK | 7階 |
| 2024年3月 | 8.5万円 | 34.0m² 1LDK | 7階 |
| 2024年2月 | 5.9万円 | 21.0m² 1K | 1階 |
| 2024年1月 | 5.9万円 | 21.0m² 1K | 1階 |
| 2024年1月 | 5.9万円 | 23.0m² 1K | 2階 |
| 2024年1月 | 11.2万円 | 47.0m² 2LDK | 4階 |
| 2023年12月 | 5.9万円 | 21.0m² 1K | 1階 |
| 2023年12月 | 5.9万円 | 23.0m² 1K | 2階 |
| 2023年12月 | 6.0万円 | 24.0m² 1K | 3階 |
| 2023年12月 | 8.8万円 | 34.0m² 1LDK | 6階 |
| 2023年11月 | 5.9万円 | 23.0m² 1K | 2階 |
| 2023年11月 | 6.0万円 | 24.0m² 1K | 3階 |
| 2023年10月 | 5.9万円 | 23.0m² 1K | 2階 |
| 2023年10月 | 6.0万円 | 24.0m² 1K | 3階 |
| 2023年10月 | 11.7万円 | 47.0m² 2LDK | 7階 |
| 2023年9月 | 6.0万円 | 24.0m² 1K | 3階 |
| 2023年9月 | 11.7万円 | 47.0m² 2LDK | 7階 |
| 2023年8月 | 8.4万円 | 32.0m² 1DK | 6階 |
| 2023年8月 | 8.8万円 | 33.0m² 1LDK | 7階 |
| 2023年7月 | 8.4万円 | 32.0m² 1DK | 6階 |
| 2023年7月 | 8.8万円 | 33.0m² 1LDK | 7階 |
| 2023年6月 | 8.4万円 | 32.0m² 1DK | 6階 |
| 2023年6月 | 8.8万円 | 33.0m² 1LDK | 7階 |
| 2023年5月 | 8.5万円 | 34.0m² 1LDK | 5階 |
| 2023年5月 | 8.5万円 | 34.0m² 1LDK | 7階 |
| 2023年4月 | 8.5万円 | 34.0m² 1LDK | 5階 |
| 2023年4月 | 8.5万円 | 34.0m² 1LDK | 5階 |
| 2023年4月 | 8.6万円 | 34.0m² 1LDK | 7階 |
| 2023年4月 | 8.5万円 | 34.0m² 1LDK | 7階 |
| 2023年3月 | 6.1万円 | 23.0m² 1K | 1階 |
| 2023年3月 | 8.5万円 | 34.0m² 1LDK | 5階 |
| 2023年3月 | 8.6万円 | 34.0m² 1LDK | 7階 |
| 2023年3月 | 8.5万円 | 34.0m² 1LDK | 7階 |
| 2023年2月 | 6.1万円 | 23.0m² 1K | 1階 |
| 2023年1月 | 6.1万円 | 23.0m² 1K | 1階 |
| 2023年1月 | 11.0万円 | 47.0m² 2LDK | 6階 |
| 2022年12月 | 6.1万円 | 23.0m² 1K | 1階 |
| 2022年12月 | 11.0万円 | 47.0m² 2LDK | 6階 |
| 2022年11月 | 5.9万円 | 23.0m² 1K | 2階 |
| 2022年11月 | 6.0万円 | 23.0m² 1K | 3階 |
| 2022年10月 | 5.9万円 | 23.0m² 1K | 2階 |
| 2022年10月 | 6.0万円 | 23.0m² 1K | 3階 |
| 2022年10月 | 11.5万円 | 47.0m² 2LDK | 7階 |
| 2022年9月 | 6.0万円 | 23.0m² 1K | 3階 |
| 2022年9月 | 5.9万円 | 23.0m² 1K | 3階 |
| 2022年9月 | 10.9万円 | 47.0m² 2LDK | 5階 |
| 2022年9月 | 11.5万円 | 47.0m² 2LDK | 7階 |
| 2022年8月 | 5.9万円 | 23.0m² 1K | 2階 |
| 2022年8月 | 5.9万円 | 23.0m² 1K | 3階 |
| 2022年8月 | 10.9万円 | 47.0m² 2LDK | 5階 |
| 2022年8月 | 11.5万円 | 47.0m² 2LDK | 7階 |
| 2022年7月 | 5.9万円 | 23.0m² 1K | 2階 |
| 2022年7月 | 5.9万円 | 23.0m² 1K | 2階 |
| 2022年7月 | 5.9万円 | 23.0m² 1K | 3階 |
| 2022年6月 | 5.9万円 | 23.0m² 1K | 2階 |
| 2022年6月 | 8.7万円 | 34.0m² 1LDK | 7階 |
| 2022年5月 | 5.9万円 | 23.0m² 1K | 2階 |
| 2022年5月 | 8.5万円 | 34.0m² 1LDK | 5階 |
| 2022年5月 | 8.7万円 | 34.0m² 1LDK | 7階 |
| 2022年4月 | 5.9万円 | 23.0m² 1K | 2階 |
| 2022年4月 | 8.5万円 | 34.0m² 1LDK | 5階 |
| 2022年4月 | 8.7万円 | 34.0m² 1LDK | 7階 |
| 2022年3月 | 5.9万円 | 23.2m² 1K | 2階 |
| 2022年2月 | 5.9万円 | 23.2m² 1K | 2階 |
| 2022年2月 | 5.9万円 | 23.2m² 1K | 3階 |
| 2022年2月 | 11.5万円 | 47.2m² 2LDK | 6階 |
| 2022年1月 | 5.9万円 | 23.2m² 1K | 3階 |
| 2022年1月 | 8.5万円 | 34.8m² 1LDK | 5階 |
| 2022年1月 | 8.5万円 | 34.8m² 1LDK | 5階 |
| 2022年1月 | 11.5万円 | 47.2m² 2LDK | 6階 |
| 2021年12月 | 8.5万円 | 34.8m² 1LDK | 5階 |
| 2021年12月 | 8.5万円 | 34.8m² 1LDK | 5階 |
| 2021年11月 | 11.2万円 | 47.2m² 2LDK | 5階 |
| 2021年11月 | 8.5万円 | 34.8m² 1LDK | 5階 |
| 2021年11月 | 8.7万円 | 34.8m² 1LDK | 5階 |
| 2021年11月 | 11.5万円 | 47.2m² 2LDK | 6階 |
| 2021年11月 | 8.8万円 | 34.8m² 1LDK | 6階 |
| 2021年11月 | 11.2万円 | 47.2m² 2LDK | 6階 |
| 2021年10月 | 5.8万円 | 23.2m² 1K | 3階 |
| 2021年10月 | 11.0万円 | 47.2m² 2LDK | 3階 |
| 2021年10月 | 8.7万円 | 34.8m² 1LDK | 5階 |
| 2021年10月 | 11.2万円 | 47.2m² 2LDK | 5階 |
| 2021年10月 | 8.8万円 | 34.8m² 1LDK | 6階 |
| 2021年10月 | 11.2万円 | 47.2m² 2LDK | 6階 |
| 2021年9月 | 6.0万円 | 24.0m² 1K | 2階 |
| 2021年9月 | 5.9万円 | 23.2m² 1K | 2階 |
| 2021年9月 | 6.0万円 | 24.0m² 1K | 2階 |
| 2021年9月 | 5.8万円 | 23.2m² 1K | 3階 |
| 2021年9月 | 6.0万円 | 24.0m² 1K | 3階 |
| 2021年9月 | 8.5万円 | 34.8m² 1DK | 4階 |
| 2021年9月 | 8.8万円 | 34.8m² 1LDK | 6階 |
| 2021年8月 | 6.0万円 | 24.0m² 1K | 2階 |
| 2021年8月 | 5.9万円 | 23.2m² 1K | 2階 |
| 2021年8月 | 5.9万円 | 23.2m² 1K | 2階 |
| 2021年8月 | 5.9万円 | 23.2m² 1K | 2階 |
| 2021年8月 | 6.0万円 | 24.0m² 1K | 2階 |
| 2021年8月 | 6.0万円 | 24.0m² 1K | 3階 |
| 2021年8月 | 5.9万円 | 23.2m² 1K | 3階 |
| 2021年8月 | 8.5万円 | 34.8m² 1DK | 4階 |
| 2021年8月 | 11.5万円 | 47.2m² 2LDK | 7階 |
| 2021年7月 | 6.0万円 | 24.0m² 1K | 2階 |
| 2021年7月 | 5.9万円 | 23.2m² 1K | 2階 |
| 2021年7月 | 6.0万円 | 24.0m² 1K | 2階 |
| 2021年7月 | 5.9万円 | 23.2m² 1K | 2階 |
| 2021年7月 | 5.9万円 | 23.2m² 1K | 2階 |
| 2021年7月 | 5.9万円 | 23.2m² 1K | 3階 |
| 2021年7月 | 8.5万円 | 34.8m² 1DK | 4階 |
| 2021年6月 | 6.0万円 | 24.0m² 1K | 2階 |
| 2021年6月 | 5.9万円 | 23.2m² 1K | 2階 |
| 2021年6月 | 6.0万円 | 24.0m² 1K | 2階 |
| 2021年6月 | 5.9万円 | 23.2m² 1K | 2階 |
| 2021年6月 | 5.9万円 | 23.2m² 1K | 2階 |
| 2021年6月 | 5.9万円 | 23.2m² 1K | 3階 |
| 2021年6月 | 8.5万円 | 34.8m² 1DK | 4階 |
| 2021年5月 | 6.0万円 | 24.0m² 1K | 2階 |
| 2021年5月 | 5.9万円 | 23.2m² 1K | 2階 |
| 2021年5月 | 5.9万円 | 23.2m² 1K | 2階 |
| 2021年5月 | 5.9万円 | 23.2m² 1K | 2階 |
| 2021年5月 | 5.9万円 | 23.2m² 1K | 3階 |
| 2021年5月 | 8.5万円 | 34.8m² 1DK | 4階 |
| 2021年5月 | 8.6万円 | 34.8m² 1DK | 6階 |
| 2021年4月 | 6.0万円 | 24.0m² 1K | 2階 |
| 2021年4月 | 5.9万円 | 23.2m² 1K | 2階 |
| 2021年4月 | 5.9万円 | 23.2m² 1K | 2階 |
| 2021年4月 | 5.9万円 | 23.2m² 1K | 2階 |
| 2021年4月 | 5.9万円 | 23.2m² 1K | 3階 |
| 2021年4月 | 8.5万円 | 34.8m² 1DK | 4階 |
| 2021年4月 | 8.6万円 | 34.8m² 1DK | 6階 |
一般的なファミリー向けの中古マンション価格(※)の3ヶ月ごとの推移です。
京都市南区の価格推移
京都府の価格推移
京都市南区の標準的な物件の価格は直近の3年間で7.92%程度上昇しています。
これは京都市南区のある京都府の変動の10.42%に比べてやや低めの水準です。
この3年間の価格上昇率を内訳でみると、初年度が2.56%、2年目が5.87%、3年目が-0.50%となっています。
一般的なファミリー向けの賃貸マンションの賃料(※)の3ヶ月ごとの推移です。
京都市南区の賃料推移
京都府の賃料推移
京都市南区の標準的な物件の賃料は直近の3年間で8.27%程度上昇しています。
これは京都市南区のある京都府の変動の5.3%に比べてやや高めの水準です。
この3年間の価格上昇率を内訳でみると、初年度が2.78%、2年目が1.16%、3年目が4.33%となっています。
この周辺地域のマンションにかかる固定資産税の概算をシミュレーションすることができます。
下記項目を入力して年間の固定資産税額を確かめましょう。
LIFULL HOME’Sで7日以内に掲載が開始された物件です。
所有している物件の売却をお考えの方は、ホームズマンション売却や不動産売却査定サービスから複数の会社に一括で売却査定を依頼することができます。
LIFULL HOME'Sは「不動産会社」ではなく「情報掲載サイト」です
webでの訂正依頼
掲載情報の誤りを指摘・訂正の依頼をする