直近3年間の推移
青森市の標準的な物件の価格は直近の3年間で11.09%程度上昇しています。
これは青森市のある青森県の変動の10.97%に比べて同程度の水準です。
この3年間の価格上昇率を内訳でみると、初年度が5.59%、2年目が-1.02%、3年目が6.54%となっています。

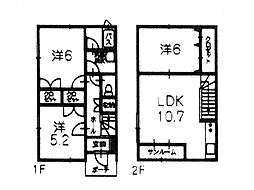
青森県青森市大字浜田豊田28-119
このページの情報は広告情報ではありません。過去から現在までにLIFULL HOME'Sに掲載された不動産情報と提携先の地図情報を元に生成した参考情報です。情報更新日: 2026/1/21
一般的なファミリー向けの中古マンション価格(※)の3ヶ月ごとの推移です。
青森市の価格推移
青森県の価格推移
青森市の標準的な物件の価格は直近の3年間で11.09%程度上昇しています。
これは青森市のある青森県の変動の10.97%に比べて同程度の水準です。
この3年間の価格上昇率を内訳でみると、初年度が5.59%、2年目が-1.02%、3年目が6.54%となっています。
一般的なファミリー向けの賃貸マンションの賃料(※)の3ヶ月ごとの推移です。
青森市の賃料推移
青森県の賃料推移
青森市の標準的な物件の賃料は直近の3年間で2.48%程度上昇しています。
これは青森市のある青森県の変動の3.43%に比べて同程度の水準です。
この3年間の価格上昇率を内訳でみると、初年度が-0.24%、2年目が0.51%、3年目が2.21%となっています。
この周辺地域のマンションにかかる固定資産税の概算をシミュレーションすることができます。
下記項目を入力して年間の固定資産税額を確かめましょう。
LIFULL HOME’Sで7日以内に掲載が開始された物件です。
所有している物件の売却をお考えの方は、ホームズマンション売却や不動産売却査定サービスから複数の会社に一括で売却査定を依頼することができます。
LIFULL HOME'Sは「不動産会社」ではなく「情報掲載サイト」です
webでの訂正依頼
掲載情報の誤りを指摘・訂正の依頼をする