募集中
売買2

ラ・メルカーサ

外観画像

愛知県蒲郡市海陽町2丁目7-1

  • 三河大塚駅 徒歩12分
AI

この物件についてAIに相談できます

AIホームズくんに、物件の見方や住まい探しの条件を相談できます。

この物件をもとにAIに相談する無料

このページの情報は広告情報ではありません。過去から現在までにLIFULL HOME'Sに掲載された不動産情報と提携先の地図情報を元に生成した参考情報です。情報更新日: 2026/5/15

募集中の部屋 (売買2件)

売買2

1,780万円

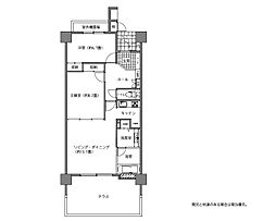
間取り
1LDK
占有面積
53.23m²
所在階
6階
主要採光面
南向き

詳細を見る

no image

2,000万円

間取り
2LDK
占有面積
72.28m²
所在階
2階
主要採光面
南向き

詳細を見る

売買掲載履歴 (35件)

掲載履歴とは、過去LIFULL HOME'Sに掲載された時点の情報を履歴として一覧にまとめたものです。
※最終的な成約価格とは異なる場合があります。また、将来の売出し価格を保証するものではありません。

年月価格専有面積
間取り
所在階
2026年4月2,000万円72.28m²
2LDK
2階
2026年3月2,000万円72.28m²
2LDK
2階
2026年2月2,000万円72.28m²
2LDK
2階
2026年1月2,000万円72.28m²
2LDK
2階
2025年12月2,000万円72.28m²
2LDK
2階
2025年11月2,000万円72.28m²
2LDK
2階
2025年10月2,000万円72.28m²
2LDK
2階
2025年9月2,000万円72.28m²
2LDK
2階
2025年8月2,000万円72.28m²
2LDK
2階
2025年8月1,940万円65.52m²
1LDK
10階
2025年7月1,940万円65.52m²
1LDK
10階
2025年6月1,940万円65.52m²
1LDK
10階
2025年5月1,940万円65.52m²
1LDK
10階
2025年4月1,980万円65.52m²
1LDK
10階
2025年3月2,040万円65.52m²
1LDK
10階
2025年2月2,040万円65.52m²
1LDK
10階
2025年1月2,100万円65.52m²
1LDK
10階
2024年12月2,100万円65.52m²
1LDK
10階
2024年11月2,100万円65.52m²
1LDK
10階
2024年6月2,250万円65.0m²
1LDK
10階
2024年5月2,250万円65.0m²
1LDK
10階
2024年4月2,250万円65.0m²
1LDK
10階
2024年3月2,250万円65.0m²
1LDK
10階
2021年12月1,800万円53.23m²
1LDK
6階
2021年11月1,780万円53.23m²
1LDK
4階
2021年10月1,780万円53.23m²
1LDK
4階
2021年9月1,780万円49.62m²
1LDK
4階
2021年8月2,680万円78.28m²
2LDK
2階
2021年7月2,680万円78.28m²
2LDK
2階
2020年11月1,590万円53.28m²
1LDK
4階
2020年10月1,590万円53.28m²
1LDK
4階
2020年9月1,590万円53.28m²
1LDK
4階
2020年8月1,590万円53.28m²
1LDK
4階
2016年1月1,980万円72.77m²
2LDK
8階
2015年12月1,980万円72.77m²
2LDK
8階
全て表示 (35件)表示を省略

蒲郡市の中古マンション価格の推移

一般的なファミリー向けの中古マンション価格(※)の3ヶ月ごとの推移です。

価格(万円)

蒲郡市の価格推移

愛知県の価格推移

※以下の条件でAI査定した参考価格
  • 築10年/専有面積70m²

直近3年間の推移

蒲郡市の標準的な物件の価格は直近の3年間で3.51%程度上昇しています。

これは蒲郡市のある愛知県の変動の5.08%に比べて同程度の水準です。

この3年間の価格上昇率を内訳でみると、初年度が-0.19%、2年目が0.93%、3年目が2.77%となっています。

蒲郡市の賃貸マンションの賃料推移

一般的なファミリー向けの賃貸マンションの賃料(※)の3ヶ月ごとの推移です。

賃料(万円)

蒲郡市の賃料推移

愛知県の賃料推移

※以下の条件でAI査定した参考価格
  • 築10年/専有面積70m²

直近3年間の推移

蒲郡市の標準的な物件の賃料は直近の3年間で0.64%程度上昇しています。

これは蒲郡市のある愛知県の変動の4.76%に比べてやや低めの水準です。

この3年間の価格上昇率を内訳でみると、初年度が0.17%、2年目が0.15%、3年目が0.32%となっています。

固定資産税シミュレータ

この周辺地域のマンションにかかる固定資産税の概算をシミュレーションすることができます。

下記項目を入力して年間の固定資産税額を確かめましょう。

物件スペックについて
敷地全体の面積
広さを直接入力する場合:m²程度
敷地に対する建物割合
%程度
専有面積
建物階数
階建て
地下
築年数
構造
建材費
減免・優遇措置

蒲郡市の新着募集あり物件

LIFULL HOME’Sで7日以内に掲載が開始された物件です。

ラ・メルカーサ 建物概要

物件種別
マンション
築年月(築年数)
2003年3月 (築24年)
建物構造
SRC
建物階建
地上12階
総戸数
82戸
建ぺい率
80%
容積率
400%
用途地域
商業
都市計画
市街化区域
施工会社
竹中工務店

よくある質問

  1. おうち予算シミュレーションでは年収や年齢、家族構成などを入力するだけで無理なく購入できる住まいの予算が算出できます。ラ・メルカーサへの住み替え前にチェックすることをおすすめします。
  2. ラ・メルカーサのある蒲郡市で暮らす世帯の年収は階級別にみると年収300万円未満の世帯が一番多く10075世帯33.7%)となりました。詳しくは蒲郡市の家計情報をご覧ください。
  3. ラ・メルカーサのある蒲郡市の総人口は8万1100人で、前回の調査から1.4%程度減少しています。蒲郡市のある愛知県全体の人口増加率1.0%2.4ポイント下回っています。詳しくは蒲郡市の住まいと暮らしやすさをご覧ください。
  4. ラ・メルカーサ周辺で価格相場が近い物件は地図で地域の相場を知るをご覧ください。

不動産会社に査定を依頼する

所有している物件の売却をお考えの方は、ホームズマンション売却不動産売却査定サービスから複数の会社に一括で売却査定を依頼することができます。

不動産の所在地
現況

掲載情報に誤りや問題がある場合

LIFULL HOME'Sは「不動産会社」ではなく「情報掲載サイト」です

  • ※管理会社の情報はLIFULL HOME'Sでは保持していないためお答えできません。お問合せはお控えください
  • ※最新の募集状況は掲載中の不動産会社があれば、不動産会社へ直接お問合せください

電話での訂正依頼 専用ダイヤル

0120-987-243

受付時間:10:00〜18:00※土日・祝日、臨時休業日は除く