ジュネス松戸

外観画像

千葉県松戸市中矢切508

  • 松戸駅 バス10分 中矢切下車 徒歩2分
  • 矢切駅 徒歩11分
AI

この物件についてAIに相談できます

AIホームズくんに、物件の見方や住まい探しの条件を相談できます。

この物件をもとにAIに相談する無料

このページの情報は広告情報ではありません。過去から現在までにLIFULL HOME'Sに掲載された不動産情報と提携先の地図情報を元に生成した参考情報です。情報更新日: 2023/9/8

松戸市の中古マンション価格の推移

一般的なファミリー向けの中古マンション価格(※)の3ヶ月ごとの推移です。

価格(万円)

松戸市の価格推移

千葉県の価格推移

※以下の条件でAI査定した参考価格
  • 築10年/専有面積70m²

直近3年間の推移

松戸市の標準的な物件の価格は直近の3年間で6.08%程度上昇しています。

これは松戸市のある千葉県の変動の5.62%に比べて同程度の水準です。

この3年間の価格上昇率を内訳でみると、初年度が-1.12%、2年目が3.27%、3年目が3.93%となっています。

松戸市の賃貸マンションの賃料推移

一般的なファミリー向けの賃貸マンションの賃料(※)の3ヶ月ごとの推移です。

賃料(万円)

松戸市の賃料推移

千葉県の賃料推移

※以下の条件でAI査定した参考価格
  • 築10年/専有面積70m²

直近3年間の推移

松戸市の標準的な物件の賃料は直近の3年間で9.18%程度上昇しています。

これは松戸市のある千葉県の変動の10.63%に比べて同程度の水準です。

この3年間の価格上昇率を内訳でみると、初年度が2.72%、2年目が1.60%、3年目が4.87%となっています。

固定資産税シミュレータ

この周辺地域のマンションにかかる固定資産税の概算をシミュレーションすることができます。

下記項目を入力して年間の固定資産税額を確かめましょう。

物件スペックについて
敷地全体の面積
広さを直接入力する場合:m²程度
敷地に対する建物割合
%程度
専有面積
建物階数
階建て
地下
築年数
構造
建材費
減免・優遇措置

松戸市の新着募集あり物件

LIFULL HOME’Sで7日以内に掲載が開始された物件です。

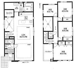
ジュネス松戸 建物概要

築年月(築年数)
1995年2月 (築32年)
建物構造
木造
建物階建
地上2階
総戸数
4戸
接道
接道なし

よくある質問

  1. おうち予算シミュレーションでは年収や年齢、家族構成などを入力するだけで無理なく購入できる住まいの予算が算出できます。ジュネス松戸への住み替え前にチェックすることをおすすめします。
  2. ジュネス松戸のある松戸市で暮らす世帯の年収は階級別にみると年収300万円未満の世帯が一番多く69522世帯32.3%)となりました。詳しくは松戸市の家計情報をご覧ください。
  3. ジュネス松戸のある松戸市の総人口は48万3480人で、前回の調査から0.2%程度減少しています。松戸市のある千葉県全体の人口増加率0.1%0.3ポイント下回っています。詳しくは松戸市の住まいと暮らしやすさをご覧ください。

不動産会社に査定を依頼する

所有している物件の売却をお考えの方は、ホームズマンション売却不動産売却査定サービスから複数の会社に一括で売却査定を依頼することができます。

不動産の所在地
現況

掲載情報に誤りや問題がある場合

LIFULL HOME'Sは「不動産会社」ではなく「情報掲載サイト」です

  • ※管理会社の情報はLIFULL HOME'Sでは保持していないためお答えできません。お問合せはお控えください
  • ※最新の募集状況は掲載中の不動産会社があれば、不動産会社へ直接お問合せください

電話での訂正依頼 専用ダイヤル

0120-987-243

受付時間:10:00〜18:00※土日・祝日、臨時休業日は除く