募集中
売買1

グランドハイツ印場駅前

外観画像

愛知県尾張旭市印場元町2丁目7-5

  • 印場駅 徒歩1分
AI

この物件についてAIに相談できます

AIホームズくんに、物件の見方や住まい探しの条件を相談できます。

この物件をもとにAIに相談する無料

このページの情報は広告情報ではありません。過去から現在までにLIFULL HOME'Sに掲載された不動産情報と提携先の地図情報を元に生成した参考情報です。情報更新日: 2026/5/15

募集中の部屋 (売買1件)

売買1

1,980万円

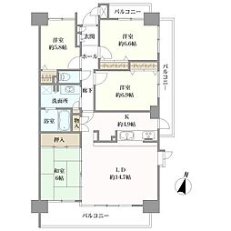
間取り
4LDK
占有面積
95.36m²
所在階
2階
主要採光面
南向き

詳細を見る

売買掲載履歴 (37件)

掲載履歴とは、過去LIFULL HOME'Sに掲載された時点の情報を履歴として一覧にまとめたものです。
※最終的な成約価格とは異なる場合があります。また、将来の売出し価格を保証するものではありません。

年月価格専有面積
間取り
所在階
2026年4月1,980万円95.36m²
4LDK
2階
2026年3月1,980万円95.36m²
4LDK
2階
2026年2月1,980万円95.36m²
4LDK
2階
2026年1月1,980万円95.36m²
4LDK
2階
2025年12月1,980万円95.36m²
4LDK
2階
2025年11月1,980万円95.36m²
4LDK
2階
2025年10月1,980万円95.36m²
4LDK
2階
2025年9月1,980万円95.36m²
4LDK
2階
2025年8月1,980万円95.36m²
4LDK
2階
2025年7月1,980万円95.36m²
4LDK
2階
2025年6月2,499万円88.54m²
4LDK
2階
2025年5月2,499万円88.54m²
4LDK
2階
2025年4月2,499万円88.54m²
4LDK
2階
2025年3月2,499万円88.54m²
4LDK
2階
2025年2月2,599万円88.54m²
4LDK
2階
2025年1月2,599万円88.54m²
4LDK
2階
2024年12月2,699万円88.54m²
4LDK
2階
2024年11月2,699万円88.54m²
4LDK
2階
2024年10月2,699万円88.54m²
4LDK
2階
2024年6月2,692万円95.0m²
4LDK
1階
2024年5月2,692万円95.0m²
4LDK
1階
2024年4月2,692万円95.0m²
4LDK
1階
2024年3月2,699万円95.0m²
4LDK
1階
2024年2月2,899万円95.0m²
4LDK
1階
2024年1月2,899万円95.0m²
4LDK
1階
2023年12月2,899万円95.0m²
4LDK
1階
2023年6月2,480万円95.0m²
4LDK
1階
2023年5月2,480万円95.0m²
4LDK
1階
2023年4月2,480万円95.0m²
4LDK
1階
2023年3月2,680万円95.0m²
4LDK
1階
2020年12月1,980万円95.36m²
4LDK
2階
2020年11月1,980万円95.36m²
4LDK
2階
2020年10月2,080万円95.36m²
4LDK
2階
2020年9月2,080万円95.36m²
4LDK
2階
2015年3月2,480万円119.34m²
4LDK
7階
2015年2月2,580万円119.34m²
4LDK
7階
2015年1月2,580万円119.34m²
4LDK
7階
全て表示 (37件)表示を省略

尾張旭市の中古マンション価格の推移

一般的なファミリー向けの中古マンション価格(※)の3ヶ月ごとの推移です。

価格(万円)

尾張旭市の価格推移

愛知県の価格推移

※以下の条件でAI査定した参考価格
  • 築10年/専有面積70m²

直近3年間の推移

尾張旭市の標準的な物件の価格は直近の3年間で2.78%程度上昇しています。

これは尾張旭市のある愛知県の変動の5.08%に比べてやや低めの水準です。

この3年間の価格上昇率を内訳でみると、初年度が2.01%、2年目が3.13%、3年目が-2.35%となっています。

尾張旭市の賃貸マンションの賃料推移

一般的なファミリー向けの賃貸マンションの賃料(※)の3ヶ月ごとの推移です。

賃料(万円)

尾張旭市の賃料推移

愛知県の賃料推移

※以下の条件でAI査定した参考価格
  • 築10年/専有面積70m²

直近3年間の推移

尾張旭市の標準的な物件の賃料は直近の3年間で3.25%程度上昇しています。

これは尾張旭市のある愛知県の変動の4.76%に比べて同程度の水準です。

この3年間の価格上昇率を内訳でみると、初年度が-0.55%、2年目が1.28%、3年目が2.52%となっています。

固定資産税シミュレータ

この周辺地域のマンションにかかる固定資産税の概算をシミュレーションすることができます。

下記項目を入力して年間の固定資産税額を確かめましょう。

物件スペックについて
敷地全体の面積
広さを直接入力する場合:m²程度
敷地に対する建物割合
%程度
専有面積
建物階数
階建て
地下
築年数
構造
建材費
減免・優遇措置

尾張旭市の新着募集あり物件

LIFULL HOME’Sで7日以内に掲載が開始された物件です。

グランドハイツ印場駅前 建物概要

物件種別
マンション
築年月(築年数)
1998年3月 (築29年)
建物構造
SRC
建物階建
地上8階
総戸数
29戸
建ぺい率
60%
容積率
200%
用途地域
第一種住居
都市計画
市街化区域
施工会社
東急建設株式会社 名古屋支店

よくある質問

  1. おうち予算シミュレーションでは年収や年齢、家族構成などを入力するだけで無理なく購入できる住まいの予算が算出できます。グランドハイツ印場駅前への住み替え前にチェックすることをおすすめします。
  2. グランドハイツ印場駅前のある尾張旭市で暮らす世帯の年収は階級別にみると年収300万円未満の世帯が一番多く9221世帯29.1%)となりました。詳しくは尾張旭市の家計情報をご覧ください。
  3. グランドハイツ印場駅前のある尾張旭市の総人口は8万787人で、前回の調査から0.4%程度減少しています。尾張旭市のある愛知県全体の人口増加率1.0%1.4ポイント下回っています。詳しくは尾張旭市の住まいと暮らしやすさをご覧ください。
  4. グランドハイツ印場駅前周辺で価格相場が近い物件は地図で地域の相場を知るをご覧ください。

不動産会社に査定を依頼する

所有している物件の売却をお考えの方は、ホームズマンション売却不動産売却査定サービスから複数の会社に一括で売却査定を依頼することができます。

不動産の所在地
現況

掲載情報に誤りや問題がある場合

LIFULL HOME'Sは「不動産会社」ではなく「情報掲載サイト」です

  • ※管理会社の情報はLIFULL HOME'Sでは保持していないためお答えできません。お問合せはお控えください
  • ※最新の募集状況は掲載中の不動産会社があれば、不動産会社へ直接お問合せください

電話での訂正依頼 専用ダイヤル

0120-987-243

受付時間:10:00〜18:00※土日・祝日、臨時休業日は除く