
LIFULL HOME'Sで詳細を見る
募集あり
賃貸
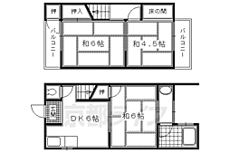
京都府京都市伏見区竹田向代町
くいな橋駅 徒歩4分
掲載賃料
6.0万円
5件
京都市伏見区竹田向代町の一戸建て

募集あり
賃貸
京都市伏見区竹田向代町の一戸建て

募集あり
賃貸
京都市伏見区竹田向代町の一戸建て

募集あり
賃貸
京都市伏見区竹田向代町住宅

募集あり
購入
京都市伏見区竹田向代町の一戸建て

募集あり
賃貸
※不動産・住宅の詳細情報や募集状況などは随時変化します。最新の情報とは異なる場合がありますのでご了承ください
※一戸建ての一覧には弊社が開発した独自のロジックにより建築条件付土地も含まれます