
LIFULL HOME'Sで詳細を見る
募集あり
購入
神奈川県平塚市大神4丁目
倉見駅 4.5km
掲載価格
2,490万円
6件
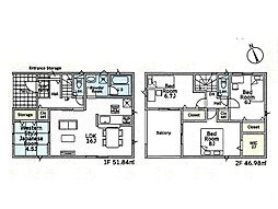
平塚市大神4丁目 中古戸建

募集あり
購入
ブルーミングガーデン 平塚市大神3丁目1棟

募集あり
購入
平塚市大神3丁目 新築戸建 全1棟1期1号棟

募集あり
購入
平塚市大神 中古戸建

募集あり
購入
大神4丁目主寝室にWIC付・収納充実

募集あり
購入
平塚市大神4丁目第18 新築戸建 全2棟 1号棟

募集あり
購入
※不動産・住宅の詳細情報や募集状況などは随時変化します。最新の情報とは異なる場合がありますのでご了承ください
※一戸建ての一覧には弊社が開発した独自のロジックにより建築条件付土地も含まれます