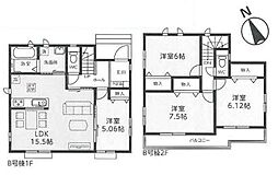
中古戸建 伊奈町西小針4丁目
2,180万円
内宿駅徒歩16分
102.54m²
LIFULL HOME’Sで7日以内に掲載が開始された物件です。
部屋情報や過去の掲載履歴を見ることができる物件です。
| 築3年 | 11万円 |
|---|---|
| 築5年 | 11万円 |
| 築10年 | 10万円 |
| 築15年 | 9万円 |
| 築20年 | 9万円 |
| 20m² | 3万円 |
|---|---|
| 40m² | 6万円 |
| 60m² | 9万円 |
| 70m² | 10万円 |
| 100m² | 14万円 |
部屋情報や過去の掲載履歴を見ることができる物件です。
| 賃貸マンション |
|---|
1 件 |
| 購入可能なマンション |
|---|
0 件 |
| 購入可能な一戸建て |
|---|
4 件 |