北野白梅町駅住まいと暮らしやすさ

北野白梅町駅(京都府)での住まい探しや住み替え後の暮らしやすさの確認に役立つような、不動産や暮らしに関する情報をまとめました。

北野白梅町駅の住まい情報

北野白梅町駅の住宅価格推移

価格(万円)

中古マンション

中古一戸建て

土地

※以下の条件でAI査定した参考価格
  • マンション:築10年/専有面積70m²
  • 一戸建て:築10年/延床面積70m²
  • 土地:敷地面積70m²

直近3年間の推移

北野白梅町駅の標準的な中古マンションの価格は直近の3年間で9.70%程度上昇しています。

これは北野白梅町駅のある京都府の変動の10.25%に比べて同程度の水準です。

この3年間の価格上昇率を内訳でみると、初年度-0.75%2年目5.53%3年目4.91%となっています。

北野白梅町駅のある京都府の標準的な中古マンションの価格は直近の3年間で10.25%程度上昇しています。

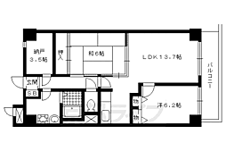
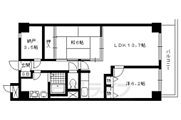
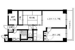
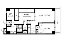
北野白梅町駅の中古マンション

部屋情報や過去の掲載履歴を見ることができる物件です。

北野白梅町駅の賃料推移

賃料(万円)

賃貸マンション

※以下の条件でAI査定した参考価格
  • 築10年/専有面積70m²

直近3年間の推移

北野白梅町駅の標準的な賃貸マンションの賃料は直近の3年間で3.10%程度上昇しています。

これは北野白梅町駅のある京都府の変動の5.51%に比べてやや低めの水準です。

この3年間の賃料上昇率を内訳でみると、初年度0.53%2年目0.93%3年目1.64%となっています。

北野白梅町駅のある京都府の標準的な賃貸マンションの賃料は直近の3年間で5.51%程度上昇しています。

北野白梅町駅の新着賃貸物件

LIFULL HOME’Sで7日以内に掲載が開始された物件です。

北野白梅町駅の地域関連情報

北野白梅町駅を通る路線と近隣駅

よくある質問

  1. 北野白梅町駅の平均年収は446万円です。おうち予算シミュレーションでは年収や年齢、家族構成などを入力するだけで無理なく購入できる住まいの予算が算出できます。北野白梅町駅周辺への住み替え前にチェックすることをおすすめします。
  2. 北野白梅町駅の2026年4月の築10年の中古マンションの価格相場は4,497万円で、直近の3年間で9.70%程度上昇しています。これは北野白梅町駅のある京都府の変動の10.25%に比べて同程度の水準です。詳しくは北野白梅町駅の中古マンション情報をご覧ください。
  3. 北野白梅町駅で暮らす世帯の年収は階級別にみると年収300万円未満の世帯が一番多く42896世帯50.1%)となりました。詳しくは北野白梅町駅の家計情報をご覧ください。