
LIFULL HOME'Sで詳細を見る
募集あり
購入
京都府宇治市六地蔵町並
六地蔵駅 徒歩5分
掲載価格
5,980万円
5件
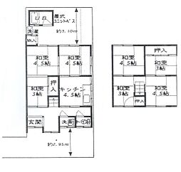
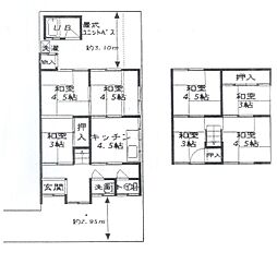
宇治市六地蔵町並の一戸建て

募集あり
購入
宇治市六地蔵紺屋町の一戸建て

募集あり
賃貸
宇治市六地蔵町並

募集あり
購入
宇治市六地蔵紺屋町 連棟5戸1

募集あり
購入
地下鉄六地蔵戸建

募集あり
購入
※不動産・住宅の詳細情報や募集状況などは随時変化します。最新の情報とは異なる場合がありますのでご了承ください
※一戸建ての一覧には弊社が開発した独自のロジックにより建築条件付土地も含まれます