
LIFULL HOME'Sで詳細を見る
募集あり
購入
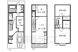
京都府京都市山科区東野南井ノ上町
椥辻駅 徒歩10分
掲載価格
2,980万円
9件
京都市山科区東野南井ノ上町の一戸建て

募集あり
購入
東野南井ノ上町

募集あり
賃貸
山科区東野南井ノ上町 中古戸建

募集あり
購入
山科区東野南井ノ上町

募集あり
購入
京都市山科区東野南井ノ上町の一戸建て

募集あり
購入
京都市山科区東野南井ノ上町の一戸建て

募集あり
購入
京都市山科区東野南井ノ上町の一戸建て

募集あり
賃貸
東野南井ノ上町貸家

募集あり
賃貸
東野南井ノ上町貸家 1

募集あり
賃貸
※不動産・住宅の詳細情報や募集状況などは随時変化します。最新の情報とは異なる場合がありますのでご了承ください
※一戸建ての一覧には弊社が開発した独自のロジックにより建築条件付土地も含まれます