笠利町大字須野の一戸建て相場

参考価格
-
他の種別の参考価格・賃料
中古マンション:
-
土地:
-
賃貸マンション:
-
築10年/70m²を条件にAI査定した参考値

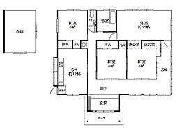
笠利町大字須野の一戸建て

1

おすすめ順
  • おすすめ順
  • 住所順
募集中のみ

※不動産・住宅の詳細情報や募集状況などは随時変化します。最新の情報とは異なる場合がありますのでご了承ください

※一戸建ての一覧には弊社が開発した独自のロジックにより建築条件付土地も含まれます

よくある質問

  1. 笠利町大字須野のある奄美市の出産や子育て、住宅取得や移住支援に関する補助金・助成金を確認できます。詳しくは奄美市の補助金・助成金ページをご覧ください。
  2. 笠利町大字須野のある奄美市の平均年収は366万円です。おうち予算シミュレーションでは年収や年齢、家族構成などを入力するだけで無理なく購入できる住まいの予算が算出できます。笠利町大字須野への住み替え前にチェックすることをおすすめします。