
LIFULL HOME'Sで詳細を見る
募集あり
賃貸
茨城県日立市南高野町3丁目13-7
大甕駅 徒歩29分
掲載賃料
8.0万円
6件
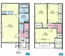
クレスト・ヒル C102

募集あり
賃貸
日立市南高野町

募集あり
購入
南高野町2丁目296番1

募集あり
購入
南高野町3丁目78番1の1

募集あり
購入
南高野町1丁目750番8

募集あり
購入
南高野町3丁目55番1

募集あり
購入
※不動産・住宅の詳細情報や募集状況などは随時変化します。最新の情報とは異なる場合がありますのでご了承ください
※一戸建ての一覧には弊社が開発した独自のロジックにより建築条件付土地も含まれます