
LIFULL HOME'Sで詳細を見る
募集あり
購入
福岡県北九州市八幡西区下上津役3丁目
三ヶ森駅 徒歩19分
掲載価格
2,698~2,898万円
7件
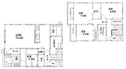
\ CENTURY21 /北九州市八幡西区下上津役3丁目3期 全2棟(三ヶ森駅)

募集あり
購入
下上津役三丁目戸建

募集あり
購入
下上津役三丁目戸建

募集あり
購入
下上津役元町戸建2号地

募集あり
購入
下上津役三丁目新築戸建1号棟 3期

募集あり
購入
下上津役3丁目 新築戸建(2号棟)

募集あり
購入
北九州市八幡西区下上津役3丁目の一戸建て

募集あり
購入
※不動産・住宅の詳細情報や募集状況などは随時変化します。最新の情報とは異なる場合がありますのでご了承ください
※一戸建ての一覧には弊社が開発した独自のロジックにより建築条件付土地も含まれます