
募集あり
賃貸
107件
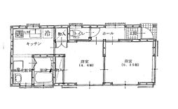
富里市久能戸建て 1

募集あり
賃貸
富里市七栄の一戸建て

募集あり
賃貸
富里市御料 新築戸建 9号棟

募集あり
購入
富里市日吉台4丁目 土地売主

募集あり
購入
富里市御料の一戸建て

募集あり
賃貸
エスハウス 1

募集あり
賃貸
〜LIGNAGE〜富里市七栄1期 新築戸建全1棟

募集あり
購入
12号棟 クレイドルガーデン富里市七栄第33全14棟

募集あり
購入
七栄第33 新築戸建て 6号棟

募集あり
購入
御料 新築戸建て 9号棟

募集あり
購入
御料 新築戸建て 5号棟

募集あり
購入
富里市十倉 中古戸建

募集あり
購入
富里市新橋 中古戸建

募集あり
購入
根木名 中古戸建

募集あり
購入
立沢新田 中古戸建

募集あり
購入
富里市根木名 中古戸建

募集あり
購入
富里市七栄 ザ・ドリームフィールド成田75

募集あり
購入
富里市十倉の一戸建て

募集あり
購入
富里市七栄の一戸建て

募集あり
購入
七栄02期 新築戸建て

募集あり
購入
富里市七栄 新築戸建6号棟

募集あり
購入
富里市七栄第33 新築戸建5号棟

募集あり
購入
富里市七栄第34 新築戸建2号棟

募集あり
購入
~ME Select~ 上部吹抜のあるマイホーム 富里市七栄 新築一戸建て 全1棟

募集あり
購入
~ME Select~ WICのあるマイホーム 富里市御料 1期 新築一戸建て 全3棟

募集あり
購入
富里市十倉363貸家 1

募集あり
賃貸
成田市日吉台4丁目 土地

募集あり
購入
※不動産・住宅の詳細情報や募集状況などは随時変化します。最新の情報とは異なる場合がありますのでご了承ください
※一戸建ての一覧には弊社が開発した独自のロジックにより建築条件付土地も含まれます